Nieuwbouwstudio met Overdekt Terras en Zicht op Schelde
€ 385.000
Een pand van Reant
Overzicht
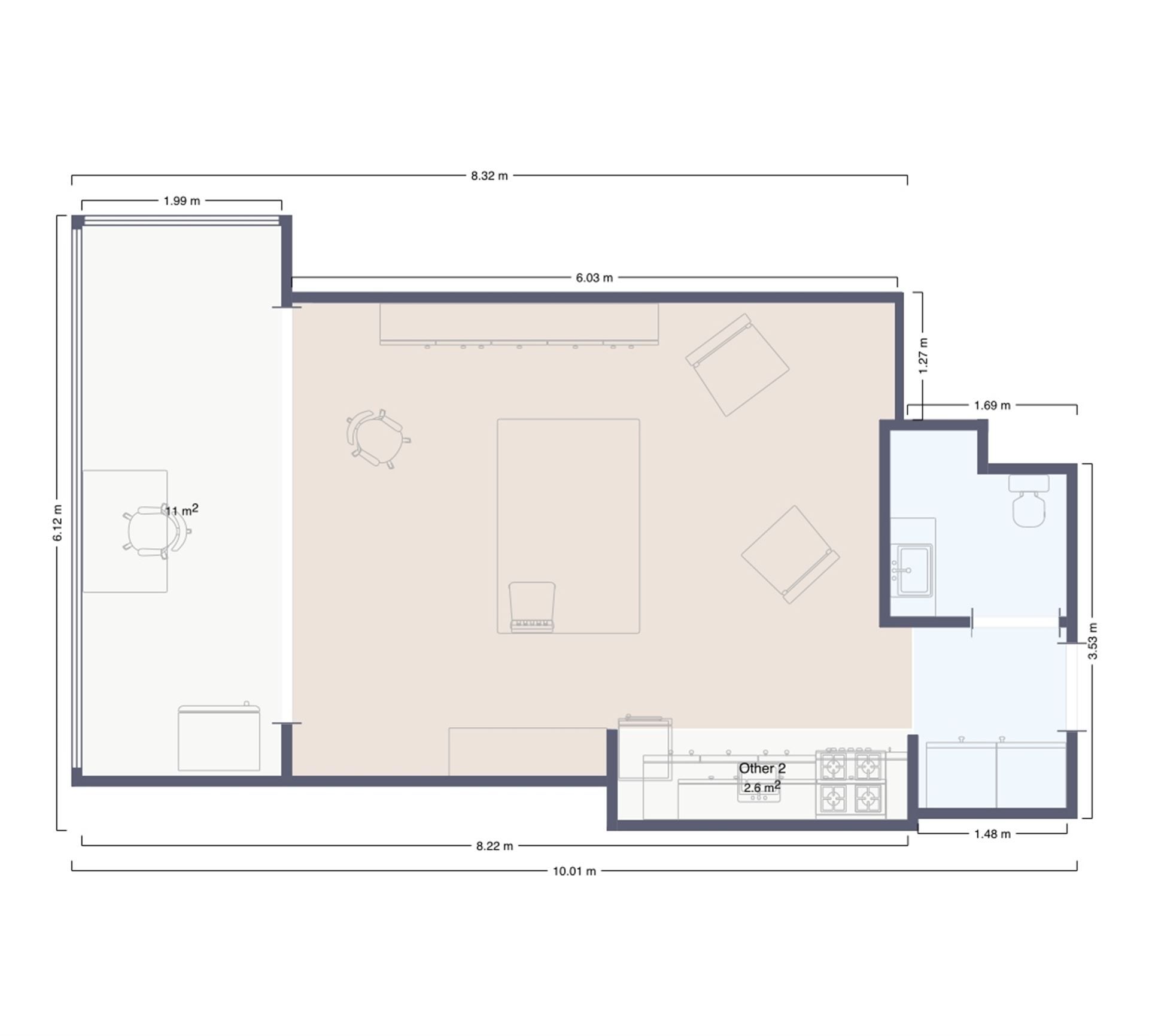
- 52 m² bewoonbaar
- 1 Slaapkamer(s)
- 1 Badkamer(s)
- 1 Toilet(ten)
Beschrijving
Instapklare Nieuwbouwstudio met Overdekt Terras en Zicht op de Schelde
Welkom in deze lichtrijke en recent opgeleverde studio van ca. 52 m², gelegen op de eerste verdieping van een stijlvol nieuwbouwproject in het begeerde Nieuw Zuid. Deze instapklare woonst combineert een hoogwaardige afwerking met een uitstekende ligging en prachtig zicht op de Schelde.
De studio is momenteel ingericht als kantoorruimte, maar biedt eenvoudig de mogelijkheid om een gezellige leefruimte te creëren. De parketvloer, vloerverwarming en grote raampartijen zorgen voor een warm en aangenaam woongevoel.
De open keuken is volledig uitgerust met hedendaagse toestellen, ideaal voor wie comfort en functionaliteit op prijs stelt. Aansluitend bevindt zich een badkamer met douche, lavabomeubel en toilet. In de inkomhal is een praktische ingebouwde kast voorzien met aansluiting voor een wasmachine.
Als extra troef geniet u van een overdekt terras waar u in alle rust kan ontspannen, met zicht op de Schelde.
Verkoop is onder registratierechten, maar ook mogelijkheid onder btw-stelsel.
Ligging
Deze studio is ideaal gelegen in het bruisende Nieuw Zuid, een moderne en groene stadswijk aan de rand van het centrum van Antwerpen. Openbaar vervoer, winkels, horeca, culturele hotspots en uitvalswegen zijn vlot bereikbaar. Tegelijk biedt de nabijheid van de Schelde en het landschap errond een oase van rust. Een perfecte combinatie van levendigheid en sereniteit.
TROEVEN
+ Nieuwbouw (bouwjaar 2024)
+ Overdekt terras met zicht op de Schelde
+ Volledig uitgeruste keuken
+ Vloerverwarming en parketvloer
+ Aansluiting wasmachine in bergkast
+ Instapklaar en polyvalent in te richten
Energie
![]() |
- EPC Certificaat: 3739343
- Energieverbruik: 94 kWh/m²/jaar
- E-peil: E0
- Beglazing: Standaard dubbel
Op de kaart

Downloads
Financieel
| Prijs | |
|---|---|
| Kadastraal inkomen (niet geïndexeerd) | € 724 |
| Kadastraal inkomen (geïndexeerd) | € 0 |
Berekening kosten
Je aankoopkosten? Die heb je snel berekent via de knop hieronder.
Bijkomende info
Gebouw
| Bouwjaar | 2023 |
|---|---|
| Staat | Goed onderhouden |
| Bouwcertificaat | Nee |
| Bewoonbaar (m²) | 52 |
| Verdieping | 1 |
| Badkamers | 1 |
| Slaapkamers | 1 |
| Verdiepingen | 0 |
| Garages | 0 |
| Parkeerplaatsen | 0 |
| Doucheruimtes | 0 |
| Toiletten | 1 |
Faciliteiten
| Keuken uitrusting | Luxueus uitgerust |
|---|---|
| Materiaal ramenomlijstingen | PVC |
| Beglazing | Standaard dubbel |
| Elektrisch keuringsattest | Ja |
Perceel
| Overstromingsgevoelig | Geen |
|---|---|
| P-score | C |
| G-score | C |
| Voorkeurrecht | Nee |
| Bebouwde oppervlakte (m²) | 0 |
| Tuin oppervlakte (m²) | 0 |
| Oppervlakte terras (m²) | 11 |
| Oriëntatie tuin | ZuidOost |
Vergunning
| Vergunning | Vergunning beschikbaar |
|---|---|
| Verkavelingsvergunning | Geen beschikbaar |
Uitrusting
| Investeringspand | Nee |
|---|---|
| Geschikt voor praktijk | Nee |
| Parking | Nee |
| Garage | Nee |
| Thuiskantoor | Nee |
| Kelder | Nee |
| Zolder | Nee |
| Tuin | Nee |
| Terras | Ja |
| Lift | Ja |
| Rioolaansluiting | Ja |
| Gasaansluiting | Ja |
| Wateraansluiting | Ja |
| Elektriciteitsaansluiting | Ja |
| TV aansluiting | Ja |
| Internetaansluiting | Ja |
| Telefoonaansluiting | Nee |
Appartementsblok
| Lift | Ja |
|---|
