uniek gerenoveerde stadswoning met 4 slks en tuin
€ 329.900
Een pand van Home-ID Lauwers
Overzicht
- 120 m² bewoonbaar
- 148 m² grond
- 4 Slaapkamer(s)
- 1 Badkamer(s)
- 2 Toilet(ten)
- 1 Tuin
Beschrijving
Open Huizen Dag – zaterdag 6 december, 12 – 13 uur. Iedereen welkom!
Boven alle verachtingen en werkelijk top verbouwde knappe gezinswoning met 4 slaapkamers en diepe zuid tuin.
Direct beschikbaar en ook instapklaar, want het geheel is volledig opgeschilderd met een hip kleurenpallet, afwerkingsmaterialen waar je direct vrolijk van wordt en zelfs de verlichting is al geplaatst.
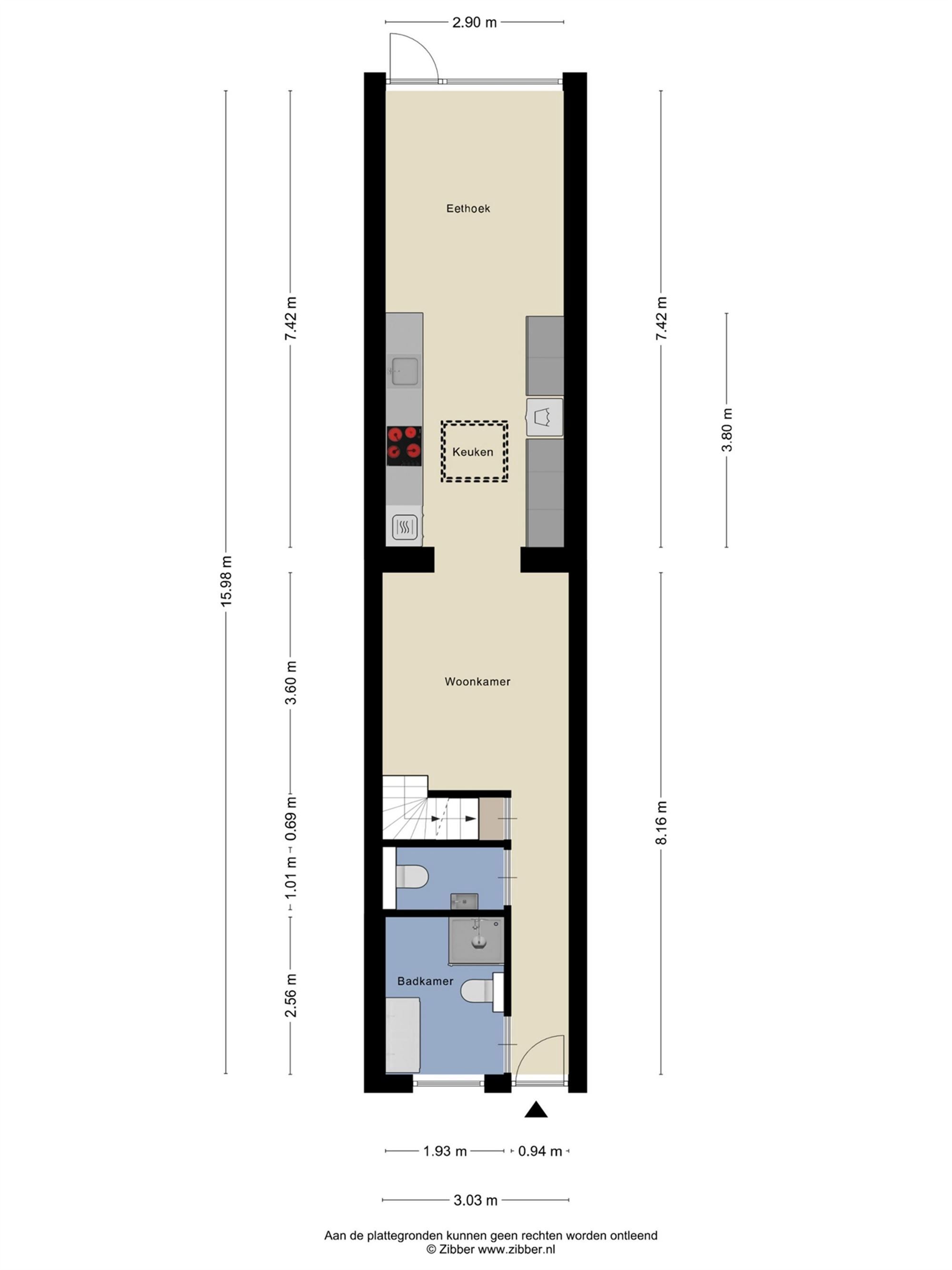
Het wauw-effect komt je direct te gemoed als je binnen komt wandelen in deze discrete woonst, want alles ziet er echt piekfijn uit. de inkomhal heeft een apart gastentoilet met wastafel en ook een berging, vooraan is een praktische badkamer met een inloopdouche, dubbelwastafelmeubel, handdoekdroger en toilet. Achteraan aan de zonkant ligt het echte woongedeelte met een salon waarin ook de open trap is gevestigd, een prachtige op maatgemaakte leefkeuken met echt alles erop en eraan, alsook een ruime eetplaats met zicht op de diepe zuid gerichte tuin en terras.
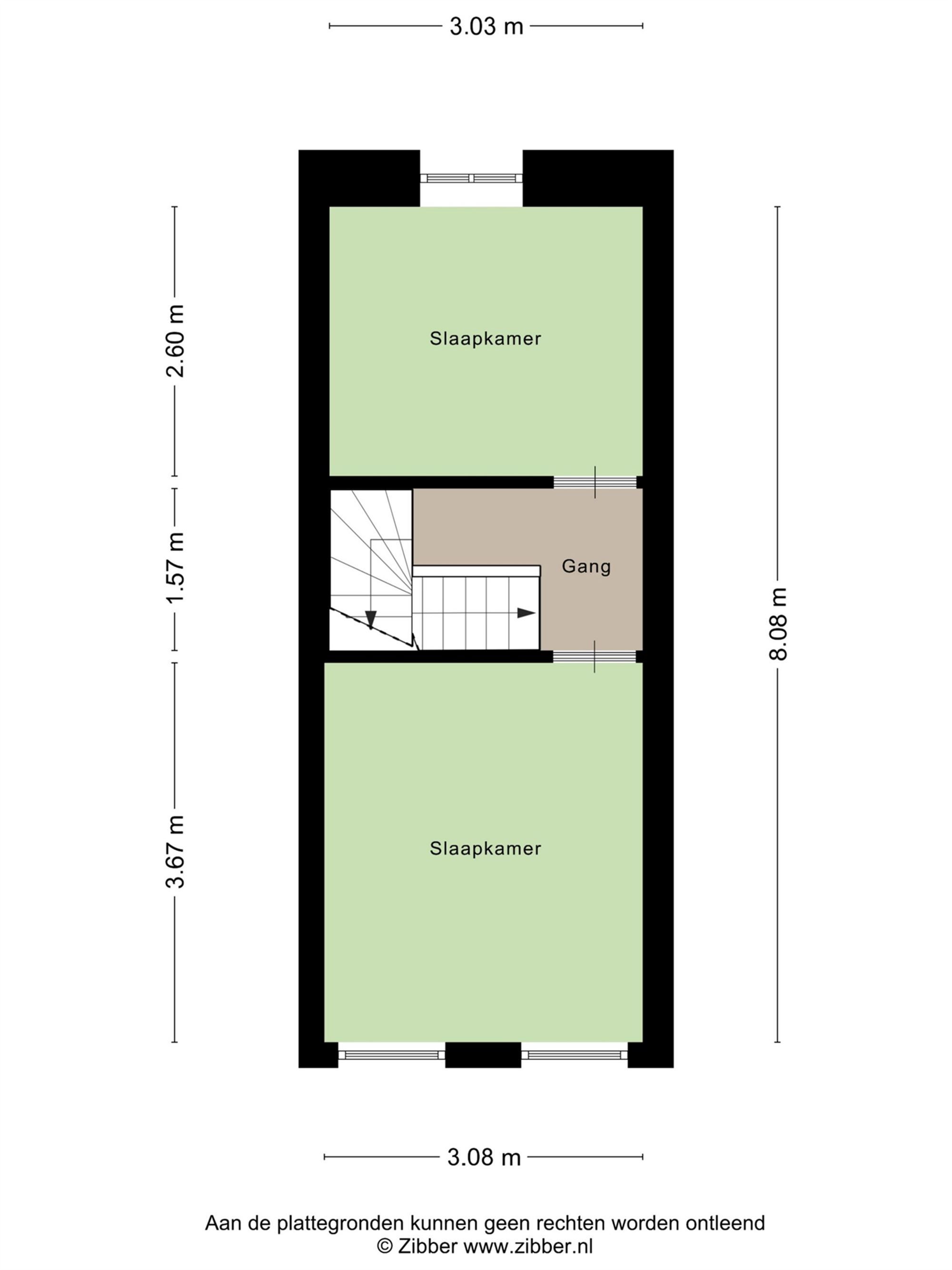
Voor de gezinnen met vele kinderen: boven zijn er 4 slaapkamers, deels met inbouwkasten.
Dit alles met een zeer gunstige EPC label B, zijnde 160 kWh/m², asbestvrij en een conform elektriciteitsattest doet zorgeloos wonen.
Infoplicht: Vg, Wg, Gmo, Gvkr, Gvv, P-score: B, G-score: B
Dit is geen aanbod, alle informatie is onder voorbehoud van materiële vergissingen en/of wijzigingen. De vermelde oppervlaktes zijn louter indicatief.
Energie
![]() |
- Energieverbruik: 160 kWh/m²/jaar
- E-peil: E0
- Verwarming: Gas
- Beglazing: Standaard dubbel
Op de kaart

Financieel
| Prijs | |
|---|---|
| Kadastraal inkomen (niet geïndexeerd) | € 267 |
| Kadastraal inkomen (geïndexeerd) | € 0 |
Berekening kosten
Je aankoopkosten? Die heb je snel berekent via de knop hieronder.
Bijkomende info
Gebouw
| Bouwjaar | 1920 |
|---|---|
| Staat | Goed onderhouden |
| Bouwcertificaat | Nee |
| Bewoonbaar (m²) | 120 |
| Verdieping | 0 |
| Gevelbreedte | 3.5 |
| Badkamers | 1 |
| Slaapkamers | 4 |
| Verdiepingen | 0 |
| Garages | 0 |
| Parkeerplaatsen | 0 |
| Doucheruimtes | 0 |
| Toiletten | 2 |
Faciliteiten
| Keuken uitrusting | Luxueus uitgerust |
|---|---|
| Beglazing | Standaard dubbel |
| Brandstof primaire verwarming | Gas |
| Elektrisch keuringsattest | Ja |
Perceel
| Breedte (m) | 3 |
|---|---|
| Overstromingsgevoelig | Geen |
| P-score | B |
| G-score | B |
| Voorkeurrecht | Nee |
| Totale oppervlakte (m²) | 148 |
| Bebouwde oppervlakte (m²) | 58 |
| Tuin oppervlakte (m²) | 95 |
| Oppervlakte terras (m²) | 90 |
| Oriëntatie tuin | Zuidwest |
Vergunning
| Vergunning | Vergunning beschikbaar |
|---|---|
| Verkavelingsvergunning | Geen beschikbaar |
Uitrusting
| Investeringspand | Nee |
|---|---|
| Geschikt voor praktijk | Nee |
| Parking | Nee |
| Garage | Nee |
| Thuiskantoor | Nee |
| Kelder | Ja |
| Zolder | Ja |
| Tuin | Ja |
| Terras | Ja |
| Lift | Nee |
| Rioolaansluiting | Ja |
| Gasaansluiting | Ja |
| Wateraansluiting | Ja |
| Elektriciteitsaansluiting | Ja |
| TV aansluiting | Ja |
| Internetaansluiting | Ja |
| Telefoonaansluiting | Ja |
