Te renoveren woning met 2 slaapkamers en tuin.
€ 254.000
Een pand van Immo Vivo
Overzicht
- 161 m² bewoonbaar
- 172 m² grond
- 2 Slaapkamer(s)
- 1 Badkamer(s)
- 2 Toilet(ten)
- 1 Tuin
Beschrijving
Charmante woning met potentieel, 2 slaapkamers (mogelijkheid tot 3) en ruime tuin.
Ben je op zoek naar een woning met karakter én toekomstpotentieel? Deze licht te renoveren woning biedt je de ideale kans om jouw woonwensen waar te maken. Deze woonst combineert een solide basis met tal van uitbreidingsmogelijkheden.
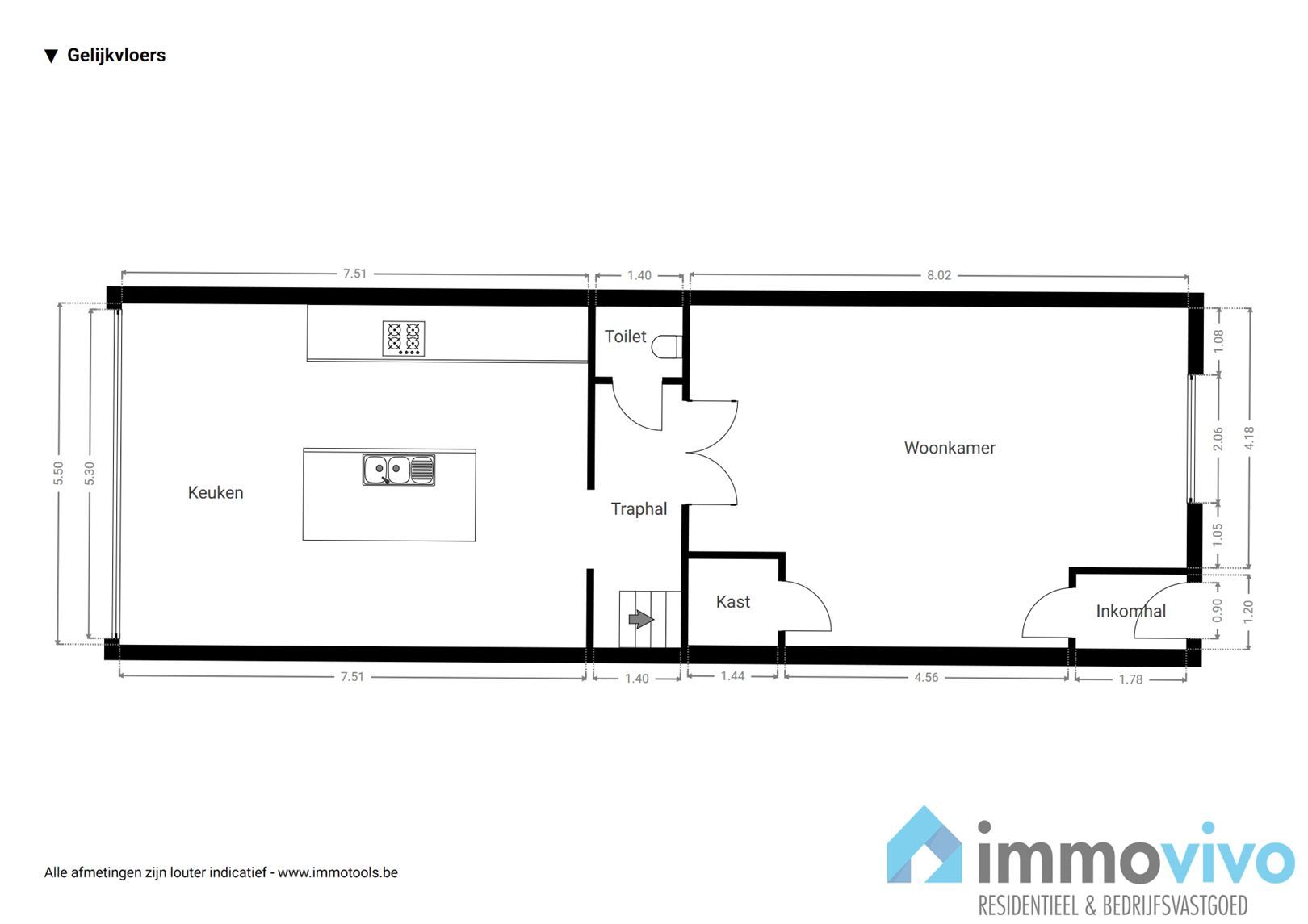
Binnenin vind je een gezellige leefruimte, een praktische keuken en twee volwaardige slaapkamers. Dankzij de slimme indeling is het perfect mogelijk om een derde slaapkamer te creëren, waardoor het huis ook ideaal is voor groeiende gezinnen of wie extra hobby- of werkruimte wenst.
De grote troef van deze woning is ongetwijfeld de ruime, zonnige tuin. Een perfecte plek om te ontspannen, te tuinieren of kinderen veilig te laten spelen. Met wat creativiteit en liefde tover je dit perceel om tot een echt buitenparadijs.
Kortom: ben je handig of droom je ervan een woning volledig naar jouw smaak te vernieuwen? Dan is dit de ideale opportuniteit. Laat je verrassen door de mogelijkheden en maak van deze woning jouw volgende thuis.
Interesse? Wacht niet te lang en plan snel een bezoek.
Energie
![]() |
- EPC Certificaat: 20251128-0003730216-RES-1
- Energieverbruik: 395 kWh/m²/jaar
- E-peil: E0
- Verwarming: Gas
- Beglazing: Standaard dubbel
Extra budget nodig voor je renovatie?

Op de kaart

Downloads
Financieel
| Prijs | |
|---|---|
| Kadastraal inkomen (niet geïndexeerd) | € 542 |
| Kadastraal inkomen (geïndexeerd) | € 0 |
Berekening kosten
Je aankoopkosten? Die heb je snel berekent via de knop hieronder.
Bijkomende info
Gebouw
| Bouwjaar | 1888 |
|---|---|
| Staat | Op te frissen |
| Bouwcertificaat | Nee |
| Bewoonbaar (m²) | 161 |
| Verdieping | 0 |
| Gevelbreedte | 4 |
| Badkamers | 1 |
| Slaapkamers | 2 |
| Verdiepingen | 0 |
| Garages | 0 |
| Parkeerplaatsen | 0 |
| Doucheruimtes | 0 |
| Toiletten | 2 |
Faciliteiten
| Keuken uitrusting | Standaard |
|---|---|
| Materiaal ramenomlijstingen | PVC |
| Beglazing | Standaard dubbel |
| Brandstof primaire verwarming | Gas |
| Elektrisch keuringsattest | Nee |
Perceel
| Diepte (m) | 39 |
|---|---|
| Breedte (m) | 4 |
| Overstromingsgevoelig | Geen |
| P-score | A |
| G-score | A |
| Voorkeurrecht | Ja |
| Totale oppervlakte (m²) | 172 |
| Bebouwde oppervlakte (m²) | 80 |
| Tuin oppervlakte (m²) | 92 |
| Oppervlakte terras (m²) | 0 |
| Oriëntatie tuin | Oost |
Vergunning
| Vergunning | Aanvraag ingediend |
|---|---|
| Verkavelingsvergunning | Aanvraag ingediend |
Uitrusting
| Investeringspand | Nee |
|---|---|
| Geschikt voor praktijk | Nee |
| Parking | Nee |
| Garage | Nee |
| Thuiskantoor | Nee |
| Kelder | Nee |
| Zolder | Nee |
| Tuin | Ja |
| Terras | Nee |
| Lift | Nee |
| Rioolaansluiting | Ja |
| Gasaansluiting | Ja |
| Wateraansluiting | Ja |
| Elektriciteitsaansluiting | Ja |
| TV aansluiting | Ja |
| Internetaansluiting | Ja |
| Telefoonaansluiting | Ja |


