Karaktervol appartement op't Zuid
€ 299.000
Een pand van Immo Vasta
Overzicht
- 83 m² bewoonbaar
- 104 m² grond
- 1 Slaapkamer(s)
- 1 Badkamer(s)
- 1 Toilet(ten)
Beschrijving
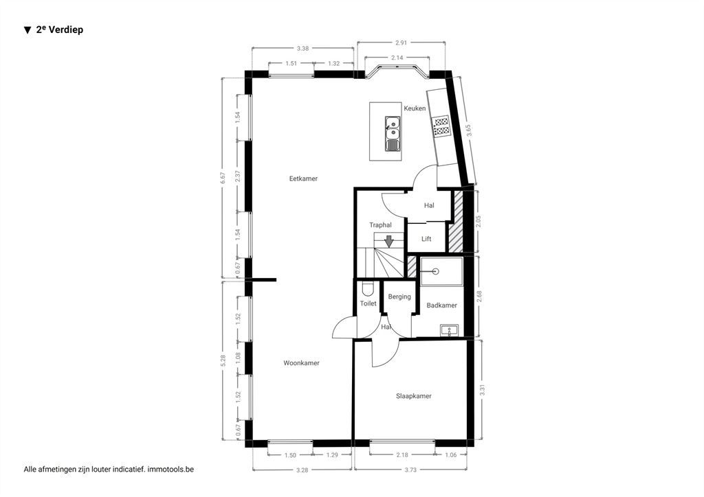
Wonen op een toplocatie met uitzicht op het iconische Justitiepaleis? Dit lichtrijke appartement met charmante erker, hoge plafonds en lift tot in je inkomhal biedt het allemaal. Grote ramen, een open leefruimte en ruime slaapkamer maken dit pand ideaal voor wie houdt van karakter, ruimte en stijl.
In de inkomhal kom je het appartement binnen via de lift of de traphal. De leefruimte strekt zich uit over een open keuken, eetruimte en woonkamer van in totaal ca 56m², allemaal op een planchet. Dankzij de charmante erker en de hoge ramen geniet je hier van een zee aan licht én een zicht op de Bolivarplaats en het Vlinderpaleis. De open keuken met zwart kraanwerk en combi-oven, vaatwasser en 3-pits gasvuur sluit perfect aan bij het eetgedeelte. Het eiland nodigt uit om gezellig aan te schuiven.
Achteraan brengt de nachthal je naar het aparte toilet en een berging waar je een individuele cv-ketel terugvindt en plek voor was-en droogmachine.
Ruime slaapkamer en badkamer
De slaapkamer van 15 m² is voorzien van een parketvloer en uitzonderlijk hoge plafonds van maar liefst 3 meter. Het grote raam zorgt voor veel natuurlijk licht en een aangename sfeer. De badkamer heeft een moderne uitstraling met witte wandtegels, zwarte vloertegels, een inloopdouche op verhoging en een stijlvol zwart badkamermeubel met wit blad.
Leven op 't Zuid
Met het bruisende Zuid als voortuin, leef je hier letterlijk midden in het beste wat Antwerpen te bieden heeft. Gezellige koffiebars, kunstgalerijen, musea en restaurants liggen allemaal op wandelafstand. Tram- en bushalte liggen vlakbij, en via de Leien ben je zo in en uit de stad. Bovendien geniet je hier van het uitzicht op het imposante Justitiepaleis, wat zorgt voor een unieke beleving.
Energie
![]() |
- EPC Certificaat: 20201113-0002339068-RES-1
- Energieverbruik: 224 kWh/m²/jaar
- E-peil: E0
- Verwarming: Gas
- Beglazing: Standaard dubbel
Op de kaart

Downloads
Financieel
Prijs | |
---|---|
Kadastraal inkomen (niet geïndexeerd) | € 702 |
Kadastraal inkomen (geïndexeerd) | € 0 |
Berekening kosten
Je aankoopkosten? Die heb je snel berekent via de knop hieronder.
Bijkomende info
Gebouw
Staat | Goed onderhouden |
---|---|
Bouwcertificaat | Nee |
Bewoonbaar (m²) | 83 |
Verdieping | 1 |
Gevelbreedte | 12 |
Badkamers | 1 |
Slaapkamers | 1 |
Verdiepingen | 4 |
Garages | 0 |
Parkeerplaatsen | 0 |
Doucheruimtes | 0 |
Toiletten | 1 |
Faciliteiten
Keuken uitrusting | Standaard |
---|---|
Materiaal ramenomlijstingen | PVC |
Beglazing | Standaard dubbel |
Brandstof primaire verwarming | Gas |
Elektrisch keuringsattest | Ja |
Perceel
Overstromingsgevoelig | Geen |
---|---|
P-score | C |
G-score | C |
Voorkeurrecht | Nee |
Totale oppervlakte (m²) | 104 |
Bebouwde oppervlakte (m²) | 0 |
Tuin oppervlakte (m²) | 0 |
Oppervlakte terras (m²) | 0 |
Oriëntatie tuin | West |
Uitrusting
Investeringspand | Nee |
---|---|
Geschikt voor praktijk | Nee |
Parking | Nee |
Garage | Nee |
Thuiskantoor | Nee |
Kelder | Ja |
Zolder | Nee |
Tuin | Nee |
Terras | Nee |
Lift | Ja |
Rioolaansluiting | Ja |
Gasaansluiting | Ja |
Wateraansluiting | Ja |
Elektriciteitsaansluiting | Ja |
TV aansluiting | Nee |
Internetaansluiting | Nee |
Telefoonaansluiting | Nee |
Appartementsblok
Aantal verdiepingen | 4 |
---|---|
Lift | Ja |