Lichtrijk Appartement met Panoramisch Uitzicht op Antwerpen
€ 275.000
Een pand van Reant
Overzicht
- 80 m² bewoonbaar
- 2 Slaapkamer(s)
- 1 Badkamer(s)
- 1 Toilet(ten)
Beschrijving
Lichtrijk Appartement met Panoramisch Uitzicht op de Skyline van Antwerpen
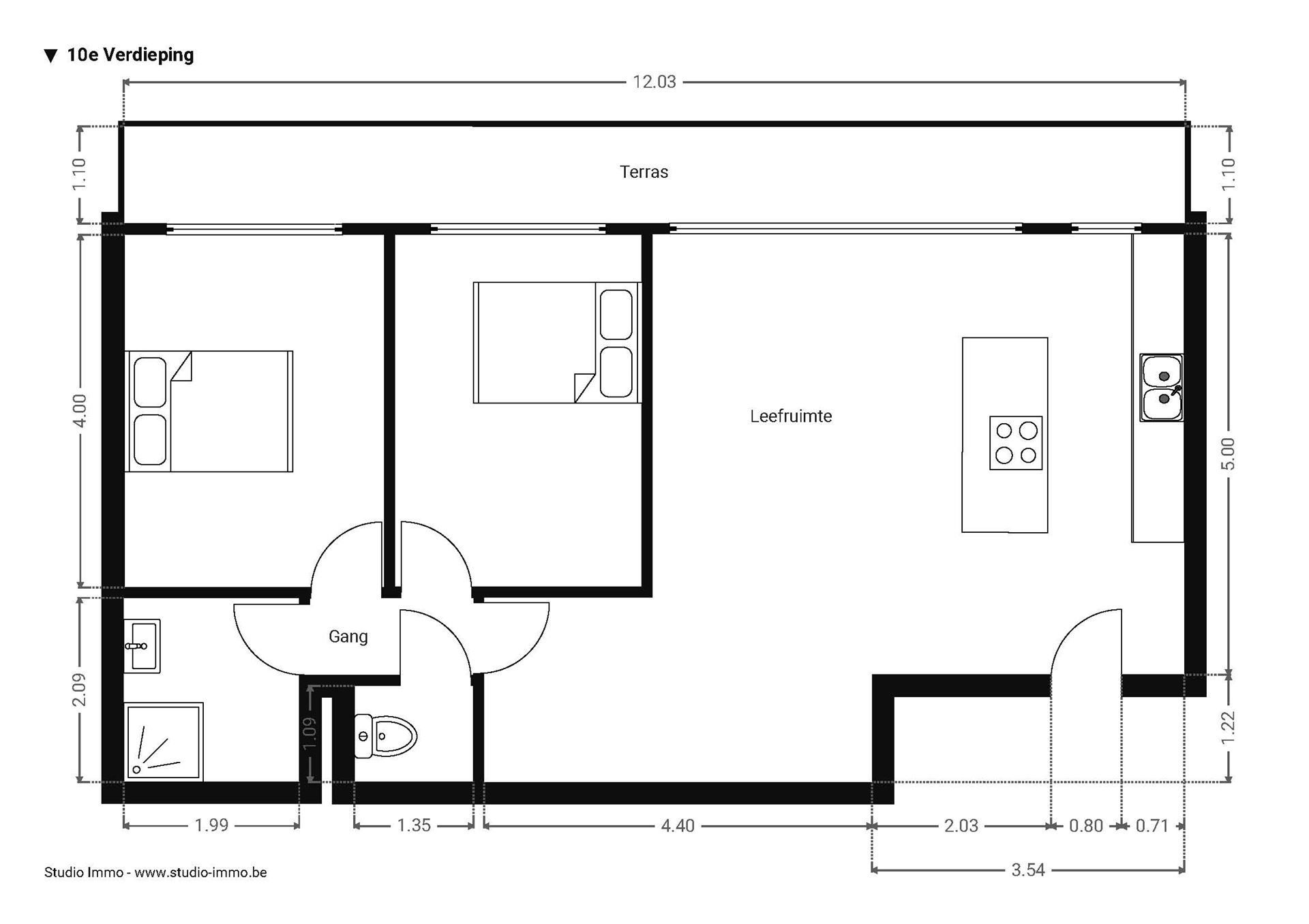
Op de 10e verdieping van een verzorgd gebouw met lift, in de residentiële Fruithoflaan in Berchem, bevindt zich dit instapklaar en energiezuinig appartement met twee slaapkamers en een indrukwekkend uitzicht.
Bij het binnenkomen valt meteen de open leefruimte op, waar grote ramen zorgen voor een overvloed aan natuurlijk licht. De strakke, volledig uitgeruste keuken is niet alleen visueel aantrekkelijk, maar ook bijzonder functioneel dankzij het luxueuze keramisch werkblad en kwalitatieve ingebouwde toestellen.
Achteraan bevinden zich twee slaapkamers (ca. 12 m² en 10 m²), beiden met warme parketvloer en radiatoren. De badkamer is uitgerust met een moderne inloopdouche en een stijlvol wastafelmeubel. Een apart toilet verhoogt het comfort.
Dé eyecatcher van dit appartement is ongetwijfeld het ruime, oostgerichte terras van ca. 17 m². Hier geniet u dagelijks van een rustgevend, groen zicht over het park én een uniek panoramisch uitzicht op de skyline van Antwerpen.
De Fruithoflaan staat bekend als een rustige, residentiële buurt in Berchem, met winkels, scholen, sportfaciliteiten en openbaar vervoer op wandelafstand (350 m). Dankzij de uitstekende verbinding met belangrijke invalswegen is een vlotte bereikbaarheid gegarandeerd. Ideaal voor wie rustig wil wonen met de voordelen van de stad binnen handbereik.
TROEVEN
+ Elektriciteit conform AREI
+ Panoramisch zicht én uitzicht op groen
+ Groot oostgericht terras (ca. 17 m²)
+ Energiezuinig appartement (EPC-label B)
+ Kelder en fietsenberging inbegrepen
Energie
![]() |
- EPC Certificaat: 2736299
- Energieverbruik: 187 kWh/m²/jaar
- E-peil: E0
- Verwarming: Gas
- Beglazing: Standaard dubbel
Op de kaart

Financieel
Prijs | |
---|---|
Kadastraal inkomen (niet geïndexeerd) | € 917 |
Kadastraal inkomen (geïndexeerd) | € 0 |
Berekening kosten
Je aankoopkosten? Die heb je snel berekent via de knop hieronder.
Bijkomende info
Gebouw
Bouwjaar | 1966 |
---|---|
Bouwcertificaat | Nee |
Bewoonbaar (m²) | 80 |
Verdieping | 10 |
Badkamers | 1 |
Slaapkamers | 2 |
Verdiepingen | 12 |
Garages | 0 |
Parkeerplaatsen | 0 |
Doucheruimtes | 0 |
Toiletten | 1 |
Faciliteiten
Keuken uitrusting | Luxueus uitgerust |
---|---|
Materiaal ramenomlijstingen | Hout |
Beglazing | Standaard dubbel |
Brandstof primaire verwarming | Gas |
Elektrisch keuringsattest | Nee |
Perceel
Overstromingsgevoelig | Geen |
---|---|
P-score | A |
G-score | A |
Voorkeurrecht | Nee |
Bebouwde oppervlakte (m²) | 0 |
Tuin oppervlakte (m²) | 0 |
Oppervlakte terras (m²) | 17 |
Oriëntatie tuin | Oost |
Vergunning
Vergunning | Vergunning beschikbaar |
---|---|
Verkavelingsvergunning | Geen beschikbaar |
Uitrusting
Investeringspand | Nee |
---|---|
Geschikt voor praktijk | Nee |
Parking | Nee |
Garage | Nee |
Thuiskantoor | Nee |
Kelder | Ja |
Zolder | Nee |
Tuin | Nee |
Terras | Ja |
Lift | Ja |
Rioolaansluiting | Ja |
Gasaansluiting | Ja |
Wateraansluiting | Ja |
Elektriciteitsaansluiting | Ja |
TV aansluiting | Ja |
Internetaansluiting | Ja |
Telefoonaansluiting | Nee |
Appartementsblok
Aantal verdiepingen | 12 |
---|---|
Lift | Ja |