Te Renoveren Woning
€ 260.000
Een pand van Home4You Real Estate
Overzicht
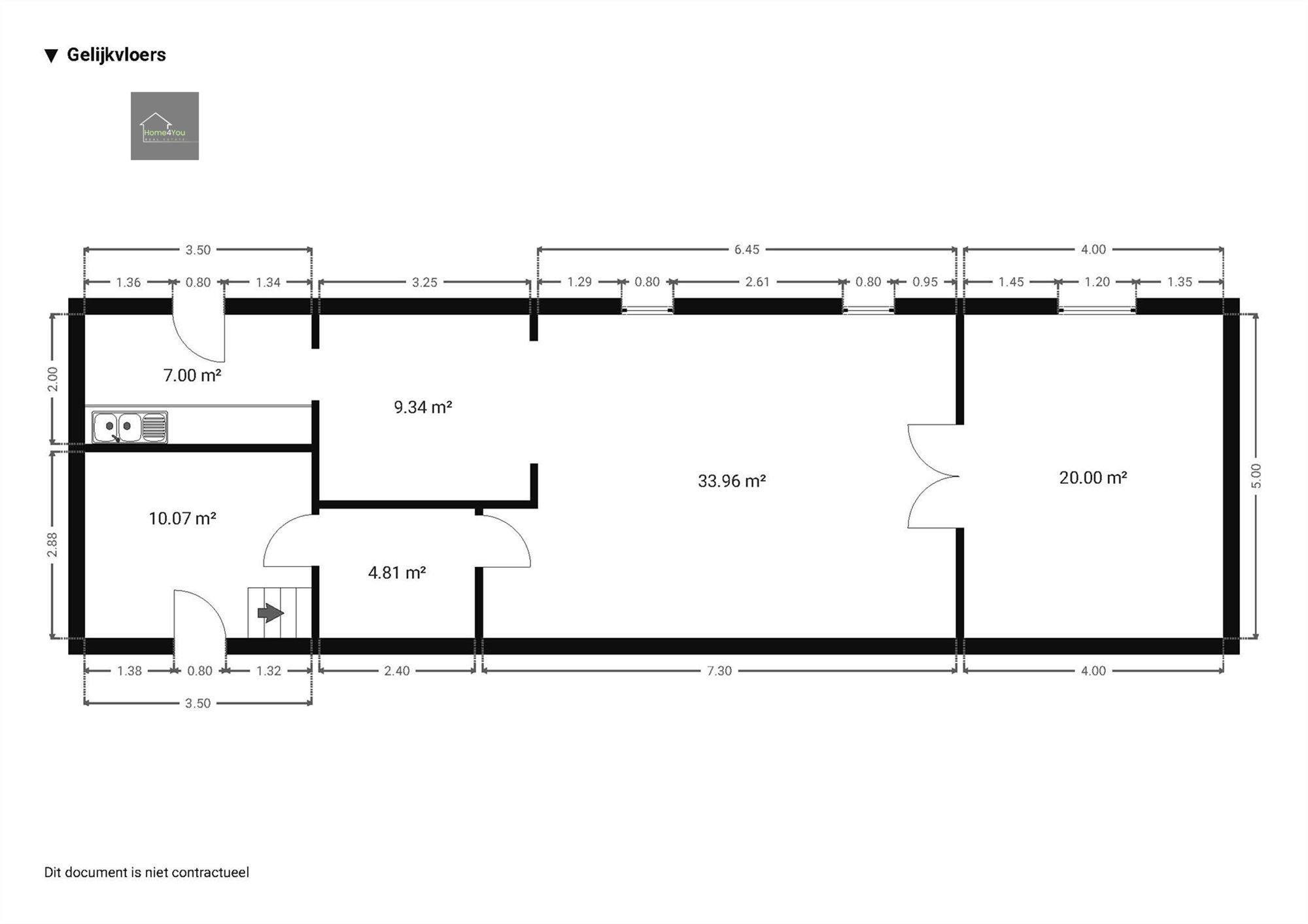
- 205 m² bewoonbaar
- 147 m² grond
- 2 Slaapkamer(s)
- 1 Badkamer(s)
- 1 Toilet(ten)
Beschrijving
🏡 Te Renoveren Woning met Potentieel in het Hart van Mortsel – Drabstraat 6
Bent u op zoek naar een woning die u volledig naar eigen smaak kunt inrichten? Dan is dit pand op de Drabstraat 6 te Mortsel precies wat u zoekt!
Deze te renoveren woning is gelegen op een toplocatie: op wandelafstand van winkels, scholen, openbaar vervoer en met vlotte verbindingen naar Antwerpen en omliggende gemeenten via de nabijgelegen uitvalswegen.
🛠️ Kenmerken van de woning:
- Te renoveren woning – ideaal voor handige harry’s of investeerders
- Bewoonbare opp: ± 205 m²
- Oprit
📍 Troeven van de locatie:
- Gelegen op een toplocatie
- Op wandelafstand van winkels, horeca en scholen
- Openbaar vervoer (tram en bus) vlakbij
🧱 Mogelijkheden:
- Volledige renovatie tot gezinswoning
- Interessant renovatieproject met waard creatie op termijn
🎯 Deze woning biedt een unieke kans voor wie op zoek is naar een project in een uitstekende buurt. Laat uw creativiteit de vrije loop en maak van deze woning een echte thuis!
📞 Contacteer ons vandaag nog voor een bezoek ter plaatse of meer info.
0478240853
7/7 bereikbaar
Energie
![]() |
- EPC Certificaat: 20240619-0003286431-RES-1
- Energieverbruik: 479 kWh/m²/jaar
- E-peil: E0
- Verwarming: Gas
- Beglazing: Enkel
Extra budget nodig voor je renovatie?

Op de kaart

Financieel
| Prijs | |
|---|---|
| Kadastraal inkomen (niet geïndexeerd) | € 810 |
| Kadastraal inkomen (geïndexeerd) | € 0 |
Berekening kosten
Je aankoopkosten? Die heb je snel berekent via de knop hieronder.
Bijkomende info
Gebouw
| Bouwjaar | 1936 |
|---|---|
| Staat | Op te frissen |
| Bouwcertificaat | Nee |
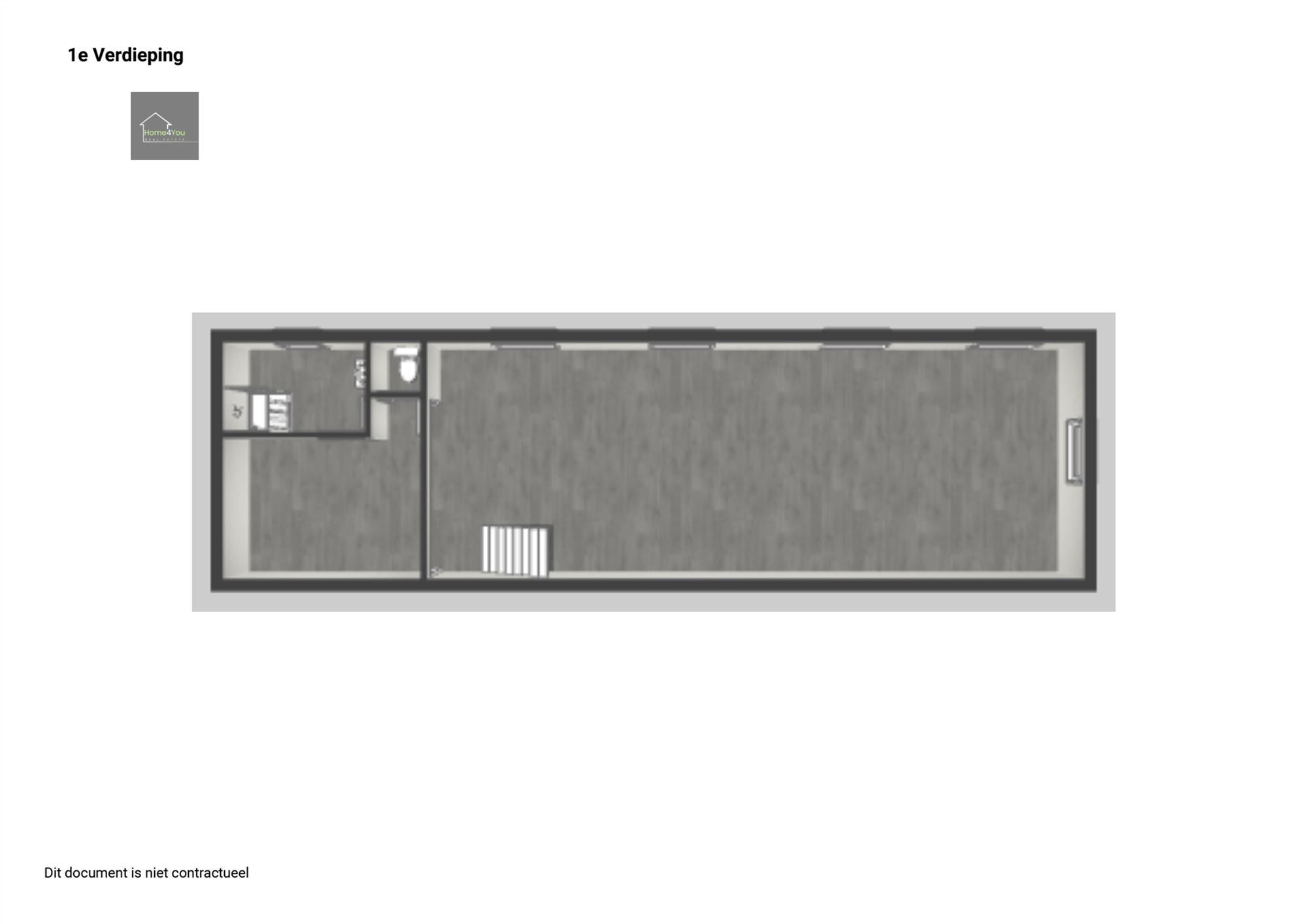
| Bewoonbaar (m²) | 205 |
| Verdieping | 1 |
| Badkamers | 1 |
| Slaapkamers | 2 |
| Verdiepingen | 0 |
| Garages | 0 |
| Parkeerplaatsen | 1 |
| Doucheruimtes | 0 |
| Toiletten | 1 |
Faciliteiten
| Keuken uitrusting | Standaard |
|---|---|
| Materiaal ramenomlijstingen | Hout |
| Beglazing | Enkel |
| Brandstof primaire verwarming | Gas |
| Elektrisch keuringsattest | Nee |
Perceel
| Overstromingsgevoelig | Geen |
|---|---|
| P-score | B |
| G-score | B |
| Voorkeurrecht | Nee |
| Totale oppervlakte (m²) | 147 |
| Bebouwde oppervlakte (m²) | 0 |
| Tuin oppervlakte (m²) | 0 |
| Oppervlakte terras (m²) | 0 |
Vergunning
| Vergunning | Aanvraag ingediend |
|---|---|
| Verkavelingsvergunning | Aanvraag ingediend |
Uitrusting
| Investeringspand | Nee |
|---|---|
| Geschikt voor praktijk | Nee |
| Parking | Ja |
| Garage | Nee |
| Thuiskantoor | Nee |
| Kelder | Nee |
| Zolder | Nee |
| Tuin | Nee |
| Terras | Nee |
| Lift | Nee |
| Rioolaansluiting | Ja |
| Gasaansluiting | Ja |
| Wateraansluiting | Ja |
| Elektriciteitsaansluiting | Ja |
| TV aansluiting | Ja |
| Internetaansluiting | Ja |
| Telefoonaansluiting | Ja |



