Volledig te renoveren woning met potentieel, tuin en mogelijkheid tot extra slaapkamer.
€ 184.000
Een pand van Immo Vivo
Overzicht
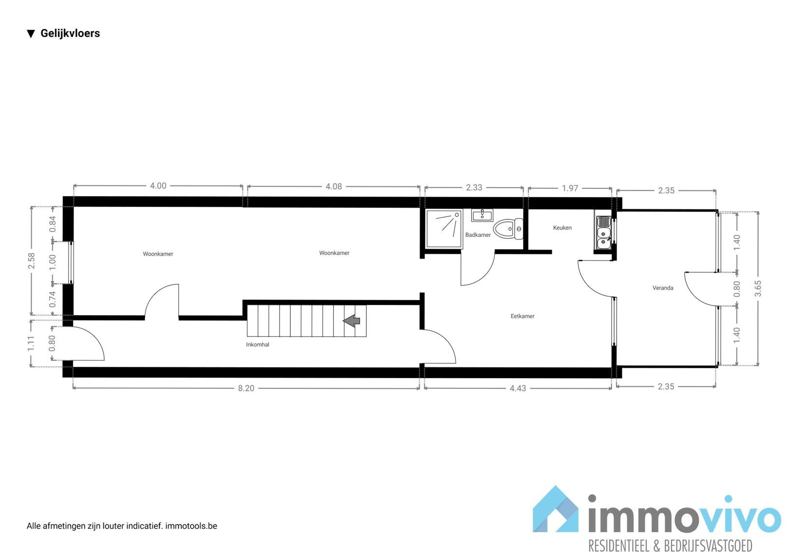
- 103 m² bewoonbaar
- 134 m² grond
- 2 Slaapkamer(s)
- 1 Badkamer(s)
- 1 Toilet(ten)
- 1 Tuin
Beschrijving
Volledig te renoveren woning met potentieel, tuin en mogelijkheid tot extra slaapkamer.
Bent u op zoek naar een woning waar u uw eigen stempel volledig op kunt drukken? Deze charmante woning met 2 slaapkamers en een ruime zolder, perfect in te richten als derde slaapkamer of hobbyruimte, biedt enorm veel mogelijkheden voor handige klussers of investeerders.
De woning beschikt over een aangename tuin, ideaal om na renovatie van te genieten. Dankzij de indeling en de uitbreidingsmogelijkheden kan hier een gezellige gezinswoning worden gecreëerd, volledig naar uw eigen smaak en wensen.
Troeven:
- Twee slaapkamers.
- Zolder met potentieel voor extra kamer.
- Leuke tuin.
- Ideaal project voor wie houdt van renoveren en waarde wil creëren.
Laat deze kans niet liggen en ontdek zelf hoe u van deze woning een warme thuis kunt maken!
Renovatieplicht is van toepassing bij deze woning.
Energie
![]() |
- EPC Certificaat: 20250912-0003684575-RES-1
- Energieverbruik: 827 kWh/m²/jaar
- E-peil: E0
- Verwarming: Elektriciteit
- Beglazing: Enkel
Extra budget nodig voor je renovatie?

Op de kaart

Downloads
Financieel
Prijs | |
---|---|
Kadastraal inkomen (niet geïndexeerd) | € 381 |
Kadastraal inkomen (geïndexeerd) | € 0 |
Berekening kosten
Je aankoopkosten? Die heb je snel berekent via de knop hieronder.
Bijkomende info
Gebouw
Bouwjaar | 1909 |
---|---|
Staat | Op te frissen |
Bouwcertificaat | Nee |
Bewoonbaar (m²) | 103 |
Verdieping | 0 |
Gevelbreedte | 4 |
Badkamers | 1 |
Slaapkamers | 2 |
Verdiepingen | 0 |
Garages | 0 |
Parkeerplaatsen | 0 |
Doucheruimtes | 0 |
Toiletten | 1 |
Faciliteiten
Keuken uitrusting | Standaard |
---|---|
Beglazing | Enkel |
Brandstof primaire verwarming | Elektriciteit |
Elektrisch keuringsattest | Nee |
Perceel
Diepte (m) | 34 |
---|---|
Breedte (m) | 4 |
Overstromingsgevoelig | Geen |
P-score | A |
G-score | A |
Voorkeurrecht | Ja |
Totale oppervlakte (m²) | 134 |
Bebouwde oppervlakte (m²) | 0 |
Tuin oppervlakte (m²) | 71 |
Oppervlakte terras (m²) | 0 |
Oriëntatie tuin | Noordwest |
Vergunning
Vergunning | Aanvraag ingediend |
---|---|
Verkavelingsvergunning | Aanvraag ingediend |
Uitrusting
Investeringspand | Nee |
---|---|
Geschikt voor praktijk | Nee |
Parking | Nee |
Garage | Nee |
Thuiskantoor | Nee |
Kelder | Nee |
Zolder | Ja |
Tuin | Ja |
Terras | Nee |
Lift | Nee |
Rioolaansluiting | Ja |
Gasaansluiting | Ja |
Wateraansluiting | Ja |
Elektriciteitsaansluiting | Ja |
TV aansluiting | Ja |
Internetaansluiting | Ja |
Telefoonaansluiting | Ja |