Handelspand met appartement gelegen op toplocatie in Mechelen
€ 279.000
Een pand van De Makelaardij
Overzicht
- 116 m² bewoonbaar
- 2 Slaapkamer(s)
- 1 Badkamer(s)
- 2 Toilet(ten)
Beschrijving
Handelspand met appartement gelegen op toplocatie in Mechelen
Op zoek naar een pand om jouw zaak uit te baten in combinatie met wonen? Dan is dit, te renoveren, handelspand zeker wat u zoekt.
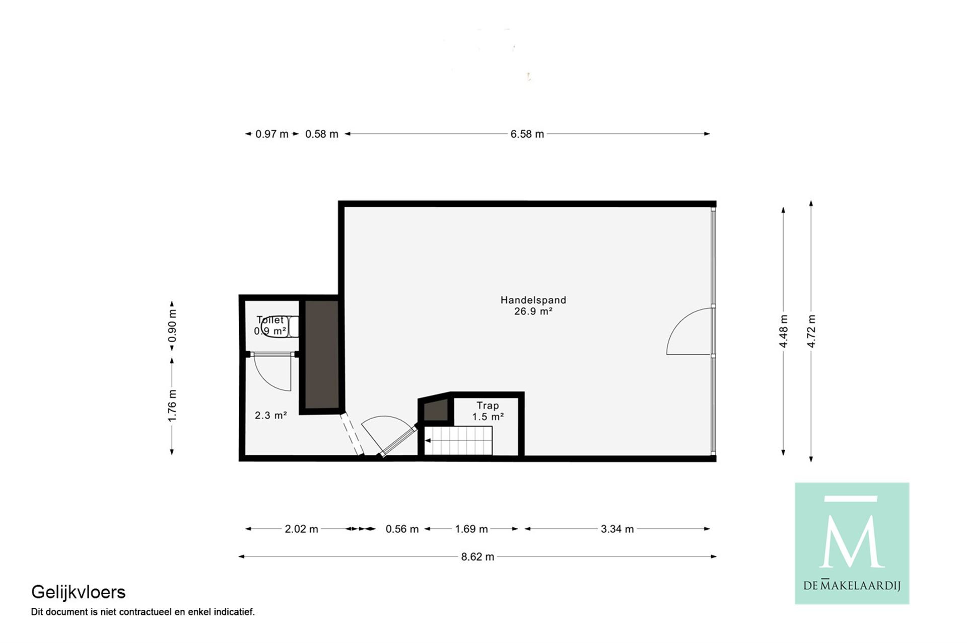
Op de gelijkvloerse verdieping beschikt u over een grote ruimte, die door de grote raampartijen, geniet van zeer veel lichtinval. Er is ook een apart toilet aanwezig.
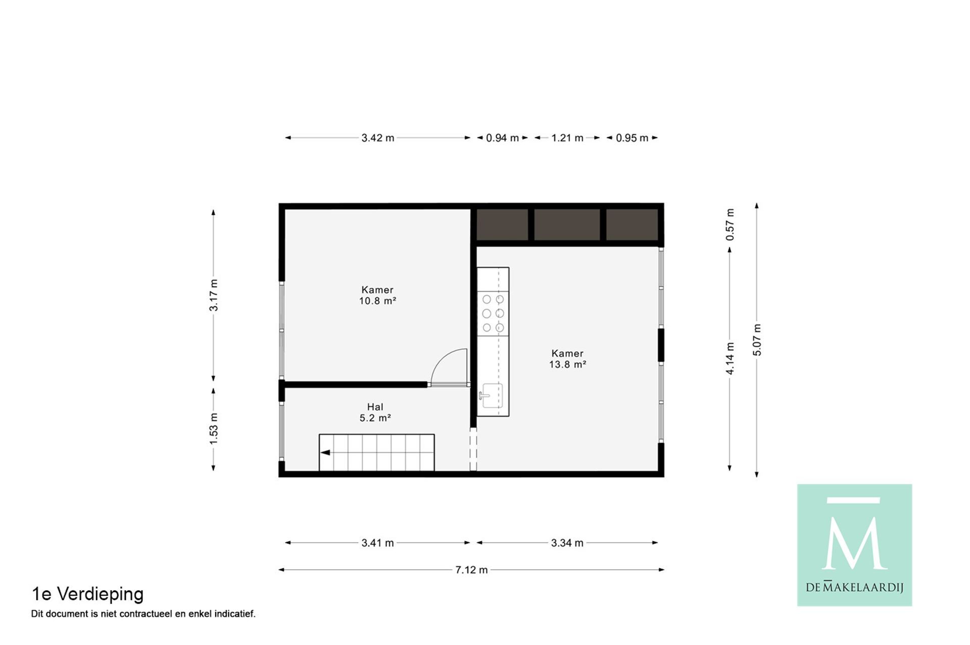
Op de eerste verdieping beschikt u over een woonruimte met open keuken en een aparte kamer.
op de tweede verdieping bevindt zich een polyvalente ruimte, met veel potentieel, een douche en een apart toilet.
Door de ligging bent u in het centrum van bedrijvigheid. Parkeerproblemen zijn er zeker niet, want de LAMOT parking is gelegen op wandelafstand!
Interesse in deze verborgen parel, met zeer veel potentieel? Aarzel niet om ons te contacteren voor meer informatie of een bezoek! (info@demakelaardij.be of 015/20.20.82)
Energie
![]() |
- EPC Certificaat: 20240313-0003175313-RES-1
- Energieverbruik: 379 kWh/m²/jaar
- E-peil: E0
- Verwarming: Gas
- Beglazing: Enkel
Op de kaart

Downloads
Financieel
Prijs | |
---|---|
Kadastraal inkomen (niet geïndexeerd) | € 984 |
Kadastraal inkomen (geïndexeerd) | € 0 |
Berekening kosten
Je aankoopkosten? Die heb je snel berekent via de knop hieronder.
Bijkomende info
Gebouw
Bouwjaar | 1918 |
---|---|
Staat | Op te frissen |
Bouwcertificaat | Nee |
Bewoonbaar (m²) | 116 |
Verdieping | 0 |
Badkamers | 1 |
Slaapkamers | 2 |
Verdiepingen | 0 |
Garages | 0 |
Parkeerplaatsen | 0 |
Doucheruimtes | 0 |
Toiletten | 2 |
Faciliteiten
Keuken uitrusting | Standaard |
---|---|
Materiaal ramenomlijstingen | Aluminium |
Beglazing | Enkel |
Brandstof primaire verwarming | Gas |
Elektrisch keuringsattest | Nee |
Perceel
Overstromingsgevoelig | Geen |
---|---|
P-score | A |
G-score | A |
Voorkeurrecht | Ja |
Bebouwde oppervlakte (m²) | 0 |
Tuin oppervlakte (m²) | 0 |
Oppervlakte terras (m²) | 0 |
Uitrusting
Investeringspand | Nee |
---|---|
Geschikt voor praktijk | Nee |
Parking | Nee |
Garage | Nee |
Thuiskantoor | Nee |
Kelder | Nee |
Zolder | Nee |
Tuin | Nee |
Terras | Nee |
Lift | Nee |
Rioolaansluiting | Nee |
Gasaansluiting | Nee |
Wateraansluiting | Nee |
Elektriciteitsaansluiting | Nee |
TV aansluiting | Nee |
Internetaansluiting | Nee |
Telefoonaansluiting | Nee |
Appartementsblok
Lift | Nee |
---|