MULTIFUNCTIONEEL BEDRIJFSPAND OP STRATEGISCHE LOCATIE IN LUMMEN
€ 2.850.000
Een pand van Vestio
Overzicht
- 2294 m² bewoonbaar
- 5233 m² grond
Beschrijving
Gelegen op een uitstekende locatie aan de Dellestraat 11, Lummen, presenteren wij u dit multifunctionele bedrijfspand van zeer hoge afwerking. Dit pand biedt bedrijven een ideale combinatie van moderne kantoorruimte, flexibele vergaderfaciliteiten en ruime productiehallen, allemaal op een perceel van 52 are 33 centiare. De strategische ligging vlak bij de op- en afritten van het Klaverblad maakt dit pand bijzonder aantrekkelijk voor bedrijven die op zoek zijn naar een centrale en uitstekend bereikbare locatie in België.
Eigenschappen van het bedrijfspand:
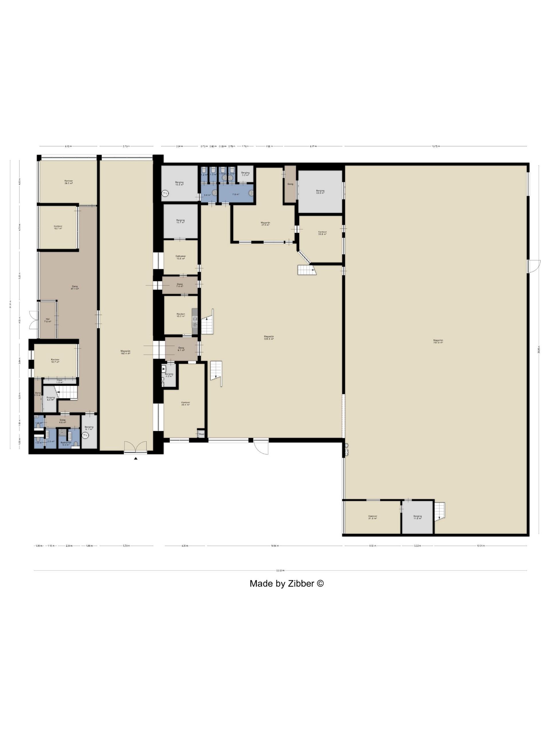
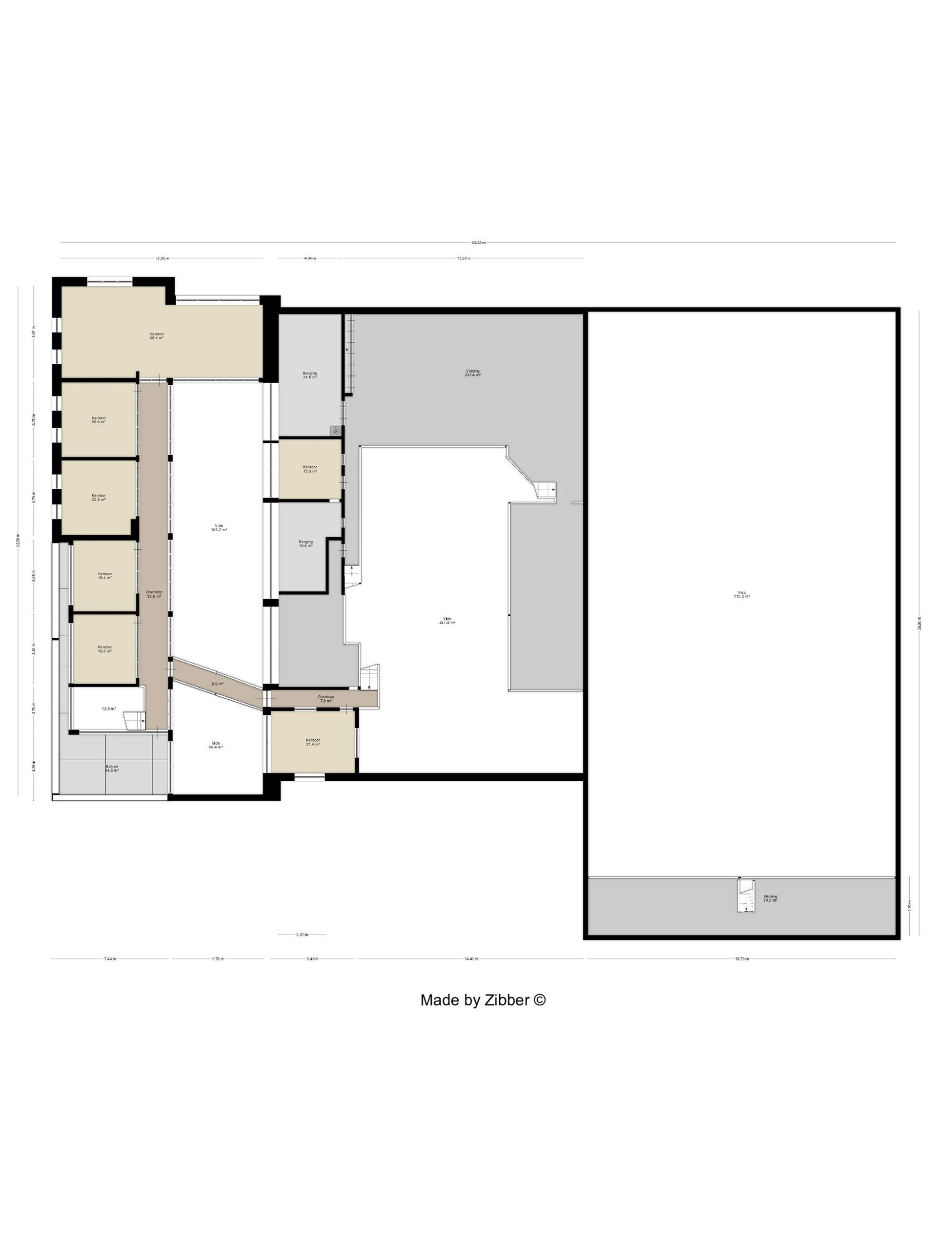
Ruimtelijke Indeling:
Kantoor- en vergaderruimtes:
(Productie)hallen:
Strategische Locatie & Bereikbaarheid:
Documentatie & meer Informatie:
Eigenschappen van het bedrijfspand:
- Adres: Dellestraat 11, 3560 Lummen
- Perceelgrootte: 52 are 33 centiare
- Bruikbare oppervlakte: circa 2.294 m²
- Strategische ligging nabij de op- en afritten van het Klaverblad, met directe toegang tot de E313 en E314
- Hoogwaardige afwerking en moderne voorzieningen (zonnepanelen, ventilatiesysteem,...)
Ruimtelijke Indeling:
Kantoor- en vergaderruimtes:
- Circa 580m²
- Flexibel in te richten naar de behoeften van uw bedrijf
- Moderne faciliteiten
(Productie)hallen:
- Twee ruime hallen met een grondoppervlakte van circa 600 m² en 800 m². Het bruikbare oppervlakte bedraagt circa 854 m² en 860 m².
- Flexibel in gebruik voor productie, opslag of distributie
Strategische Locatie & Bereikbaarheid:
- Uitstekende bereikbaarheid door de nabijheid van het Klaverblad (verbinding E313 en E314)
- Centrale ligging voor zowel nationaal als internationaal verkeer
Documentatie & meer Informatie:
- http://www.vestio.com
- frederik@vestio.com / +32 479 78 17 62
Energie
- EPC Certificaat: 20250128-0020031306-NR-1
- Energieverbruik: 231 kWh/m²/jaar
- E-peil: E0
- Beglazing: Onbekend
Op de kaart

Financieel
Prijs |
---|
Berekening kosten
Je aankoopkosten? Die heb je snel berekent via de knop hieronder.
Bijkomende info
Gebouw
Bouwjaar | 2017 |
---|---|
Staat | Zo goed als nieuw |
Bouwcertificaat | Ja |
Bewoonbaar (m²) | 2294 |
Badkamers | 0 |
Slaapkamers | 0 |
Verdiepingen | 0 |
Garages | 0 |
Parkeerplaatsen | 0 |
Toiletten | 0 |
Faciliteiten
Septische tank | Nee |
---|
Perceel
Overstromingsgevoelig | Geen |
---|---|
G-score | A |
Totale oppervlakte (m²) | 5233 |
Bebouwde oppervlakte (m²) | 0 |
Vergunning
Verkavelingsvergunning | Geen beschikbaar |
---|
Uitrusting
Investeringspand | Nee |
---|---|
Parking | Nee |
Garage | Nee |
Lift | Nee |
Rioolaansluiting | Ja |
Gasaansluiting | Nee |
Wateraansluiting | Ja |
Elektriciteitsaansluiting | Ja |
Internetaansluiting | Ja |
Telefoonaansluiting | Ja |
Zonnepanelen | Ja |
Zonneboiler | Nee |
Alarm | Ja |
Videofoon | Nee |
Grondwaterput | Ja |
Appartementsblok
Lift | Nee |
---|---|
Intercom | Ja |
Een pand van
Vestio
Vangronsveld & Somers, thuis in ontwikkeling
Vestio staat voor 'Vangronsveld & Somers, thuis in ontwikkeling'. Vestio is actief in de realisatie van residentiële vastgoedprojecten op toplocaties in het binnenland en aan de Belgische kust in Knokke. Daarbij hecht de vastgoedspecialist veel belang aan een goede begeleiding. Vestio biedt ook assistentie bij de projectontwikkeling van woningen, appartementen, retail, verkavelingen, woon- en zorgcentra en de koop en verkoop van bestaand vastgoed. Een totaalaanpak die al meer dan 20 jaar werkt en tot heel wat exclusieve woonprojecten heeft geleid.
VKTK0107-FS
Leer meer over vastgoed
05 November 2024
Bedrijfsvastgoed in transitie: ontdek de toekomst van werkplekken
16 October 2024
Opbrengsteigendom: een slim pad naar passief inkomen en vermogensgroei
09 September 2024
Tijdelijk vastgoed: flexibele oplossingen voor een dynamische markt
12 August 2024