NIEUWBOUW DUPLEXAPPARTEMENT (165M²) MET 2 SLAAPKAMERS EN RUIM TERRAS NABIJ BERINGEN CENTRUM
Een pand van Het Vastgoedkantoor
Overzicht
- 165 m² bewoonbaar
- 2 Slaapkamer(s)
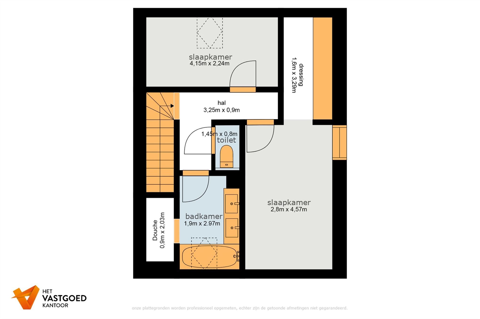
- 1 Badkamer(s)
Overstromingsgevaar perceel
Beschrijving
Nieuwbouw duplexappartement (165m²) met 2 slaapkamers en ruim terras op rustige doch centrale ligging nabij Beringen centrum.
Belangrijkste troeven:
- Centrale ligging
- Kwalitatief afgewerkt, sanitair en keuken volgens budget en naar eigen keuze inbegrepen
- Zeer ruim met veel lichtinval
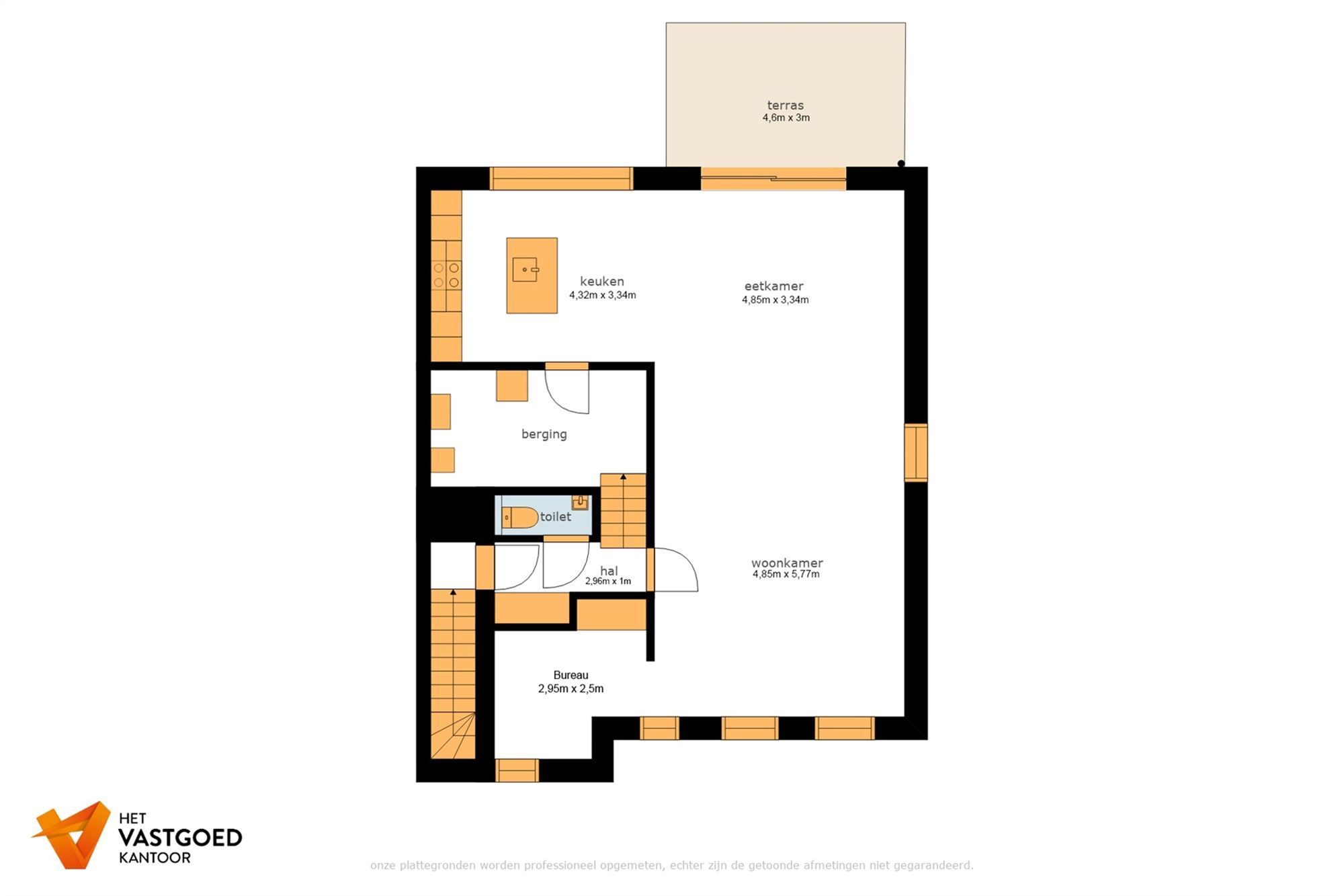
- Ruim terras met omheinde tuin
- pre-Airco voorzieningen
- Vloerverwarming op Warmtepomp
- Carport met laadmogelijkheden en berging
- Extra staanplaats
Bekijk zeker ook de grondplannen met de afmetingen. Zo krijgt u van thuis uit al een perfect beeld van wat dit duplexappertement te bieden heeft!
Wenst u meer info of een vrijblijvende bezichtiging, contacteer dan ons kantoor op het nummer 011 85 15 15 en wij helpen u graag verder.
Energie
- E-peil: E22
- Beglazing: Standaard dubbel
Op de kaart

Financieel
Kadastraal inkomen (niet geïndexeerd) | € 0 |
---|---|
Kadastraal inkomen (geïndexeerd) | € 0 |
Bijkomende info
Gebouw
Bouwjaar | 2025 |
---|---|
Staat | Nieuw |
Bouwcertificaat | Nee |
Bewoonbaar (m²) | 165 |
Verdieping | 2 |
Badkamers | 1 |
Slaapkamers | 2 |
Verdiepingen | 0 |
Garages | 0 |
Parkeerplaatsen | 1 |
Doucheruimtes | 0 |
Toiletten | 0 |
Faciliteiten
Beglazing | Standaard dubbel |
---|---|
Elektrisch keuringsattest | Ja |
Perceel
Overstromingsgevoelig | Geen |
---|---|
P-score | D |
Voorkeurrecht | Nee |
Bebouwde oppervlakte (m²) | 0 |
Tuin oppervlakte (m²) | 0 |
Oppervlakte terras (m²) | 0 |
Vergunning
Vergunning | Vergunning beschikbaar |
---|
Uitrusting
Investeringspand | Nee |
---|---|
Geschikt voor praktijk | Nee |
Parking | Ja |
Garage | Nee |
Thuiskantoor | Nee |
Kelder | Nee |
Zolder | Nee |
Tuin | Nee |
Terras | Nee |
Lift | Nee |
Rioolaansluiting | Ja |
Gasaansluiting | Nee |
Wateraansluiting | Ja |
Elektriciteitsaansluiting | Ja |
TV aansluiting | Ja |
Internetaansluiting | Ja |
Telefoonaansluiting | Ja |
Appartementsblok
Lift | Nee |
---|