Ruime woning op groot perceel in residentiële buurt te Bret (Genk)!
€ 499.000
Een pand van Nina Bruno Vastgoed
Overzicht
- 225 m² bewoonbaar
- 1754 m² grond
- 4 Slaapkamer(s)
- 1 Badkamer(s)
- 2 Toilet(ten)
- 1 Garage(s)
Beschrijving
Deze vrijstaande woning ligt op zuidgericht perceel van 17a54ca in een rustige en gegeerde woonomgeving in Bret, Genk, . De woning heeft een bewoonbare oppervlakte van 225 m² en is omgeven door een verzorgde tuin met mooie, volwassen bomen.
De woning is als volgt ingedeeld:
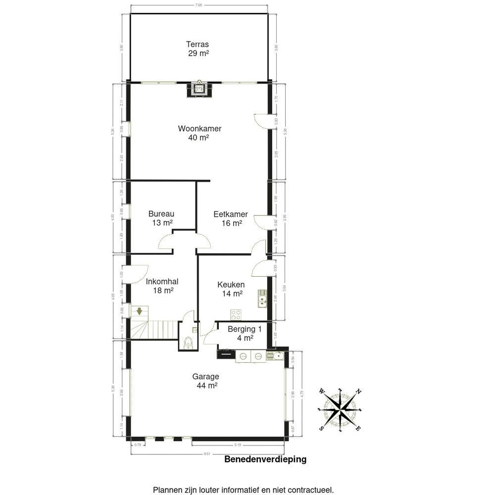
Gelijkvloers:
Inkomhal met aparte bureauruimte
Ruime woonkamer met open haard
Ingerichte keuken met aansluitende berging
Inpandige garage
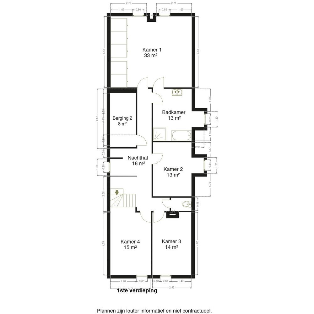
Verdieping:
Vier volwaardige slaapkamers
Een praktische berging
Grote badkamer met ligbad, douche en toilet
De woning werd steeds goed onderhouden, maar is toe aan een grondige opknapbeurt. De zuidgerichte oriëntatie van het perceel zorgt voor veel natuurlijk licht en zon op het terras, met name in de avonduren. De woning beschikt over een EPC-label D.
Troeven op een rij:
✔ Gelegen in een rustige en residentiële buurt
✔ Groot perceel van 17a54ca met zuidgerichte tuin
✔ 225 m² bewoonbare oppervlakte
✔ Inpandige garage en aparte bureauruimte
✔ Veel potentieel na renovatie
Bent u op zoek naar een ruime woning met karakter en mogelijkheden, op een uitstekende locatie in Genk? Neem dan gerust contact met ons op voor meer informatie of een bezichtiging. T: 089/20 34 34 M: info@ninabrunovastgoed.be
De woning is als volgt ingedeeld:
Gelijkvloers:
Inkomhal met aparte bureauruimte
Ruime woonkamer met open haard
Ingerichte keuken met aansluitende berging
Inpandige garage
Verdieping:
Vier volwaardige slaapkamers
Een praktische berging
Grote badkamer met ligbad, douche en toilet
De woning werd steeds goed onderhouden, maar is toe aan een grondige opknapbeurt. De zuidgerichte oriëntatie van het perceel zorgt voor veel natuurlijk licht en zon op het terras, met name in de avonduren. De woning beschikt over een EPC-label D.
Troeven op een rij:
✔ Gelegen in een rustige en residentiële buurt
✔ Groot perceel van 17a54ca met zuidgerichte tuin
✔ 225 m² bewoonbare oppervlakte
✔ Inpandige garage en aparte bureauruimte
✔ Veel potentieel na renovatie
Bent u op zoek naar een ruime woning met karakter en mogelijkheden, op een uitstekende locatie in Genk? Neem dan gerust contact met ons op voor meer informatie of een bezichtiging. T: 089/20 34 34 M: info@ninabrunovastgoed.be
Deze vrijstaande woning ligt op een zuidgericht perceel van 17a54ca in een rustige en gegeerde woonomgeving in Bret, Genk. De woning heeft een bewoonbare oppervlakte van 225 m² en is omgeven door een verzorgde tuin met mooie, volwassen bomen.
De woning is als volgt ingedeeld:
Gelijkvloers:
Inkomhal met aparte bureauruimte
Ruime woonkamer met open haard
Ingerichte keuken met aansluitende berging
Inpandige garage
Verdieping:
Vier volwaardige slaapkamers
Een praktische berging
Grote badkamer met ligbad, douche en toilet
De woning werd steeds goed onderhouden, maar is toe aan een grondige opknapbeurt. De zuidgerichte oriëntatie van het perceel zorgt voor veel natuurlijk licht en zon op het terras, met name in de avonduren. De woning beschikt over een EPC-label D.
Troeven op een rij:
✔ Gelegen in een rustige en residentiële buurt
✔ Groot perceel van 17a54ca met zuidgerichte tuin
✔ 225 m² bewoonbare oppervlakte
✔ Inpandige garage en aparte bureauruimte
✔ Veel potentieel na renovatie
Bent u op zoek naar een ruime woning met karakter en mogelijkheden, op een uitstekende locatie in Genk? Neem dan gerust contact met ons op voor meer informatie of een bezichtiging. T: 089/20 34 34 M: info@ninabrunovastgoed.be
De woning is als volgt ingedeeld:
Gelijkvloers:
Inkomhal met aparte bureauruimte
Ruime woonkamer met open haard
Ingerichte keuken met aansluitende berging
Inpandige garage
Verdieping:
Vier volwaardige slaapkamers
Een praktische berging
Grote badkamer met ligbad, douche en toilet
De woning werd steeds goed onderhouden, maar is toe aan een grondige opknapbeurt. De zuidgerichte oriëntatie van het perceel zorgt voor veel natuurlijk licht en zon op het terras, met name in de avonduren. De woning beschikt over een EPC-label D.
Troeven op een rij:
✔ Gelegen in een rustige en residentiële buurt
✔ Groot perceel van 17a54ca met zuidgerichte tuin
✔ 225 m² bewoonbare oppervlakte
✔ Inpandige garage en aparte bureauruimte
✔ Veel potentieel na renovatie
Bent u op zoek naar een ruime woning met karakter en mogelijkheden, op een uitstekende locatie in Genk? Neem dan gerust contact met ons op voor meer informatie of een bezichtiging. T: 089/20 34 34 M: info@ninabrunovastgoed.be
Energie
![]() |
- Energieverbruik: 394 kWh/m²/jaar
- E-peil: E0
- Verwarming: Elektriciteit
- Beglazing: Standaard dubbel
Extra budget nodig voor je renovatie?
De overheid helpt je dit pand energetisch te renoveren! Hieronder zie je het premiebedrag dat je mogelijks van de overheid krijgt.
Het huidige EPC-label is:

Op de kaart

Financieel
Prijs | |
---|---|
Kadastraal inkomen (niet geïndexeerd) | € 1.224 |
Berekening kosten
Je aankoopkosten? Die heb je snel berekent via de knop hieronder.
Bijkomende info
Gebouw
Bouwjaar | 1976 |
---|---|
Bewoonbaar (m²) | 225 |
Gevelbreedte | 9 |
Badkamers | 1 |
Slaapkamers | 4 |
Verdiepingen | 0 |
Garages | 1 |
Parkeerplaatsen | 0 |
Toiletten | 2 |
Faciliteiten
Keuken uitrusting | Goed uitgerust |
---|---|
Beglazing | Standaard dubbel |
Brandstof primaire verwarming | Elektriciteit |
Septische tank | Nee |
Perceel
Diepte (m) | 95 |
---|---|
Breedte (m) | 20 |
Overstromingsgevoelig | Geen |
P-score | A |
G-score | A |
Totale oppervlakte (m²) | 1754 |
Bebouwde oppervlakte (m²) | 201 |
Oriëntatie tuin | Zuid |
Vergunning
Verkavelingsvergunning | Geen beschikbaar |
---|
Uitrusting
Investeringspand | Nee |
---|---|
Geschikt voor praktijk | Nee |
Parking | Nee |
Garage | Ja |
Thuiskantoor | Ja |
Kelder | Nee |
Zolder | Ja |
Opslagruimte | Ja |
Terras | Nee |
Lift | Nee |
Rioolaansluiting | Ja |
Gasaansluiting | Nee |
Wateraansluiting | Ja |
Elektriciteitsaansluiting | Ja |
Internetaansluiting | Ja |
Telefoonaansluiting | Ja |
Zonnepanelen | Nee |
Zonneboiler | Nee |
Alarm | Nee |
Videofoon | Nee |
Grondwaterput | Nee |
Een pand van
Nina Bruno Vastgoed
Nina Bruno Vastgoed - Uw (T)huis is onze zorg
Hulp nodig bij de zoektocht naar een nieuwe woning? Of zoek je begeleiding bij de verkoop van je woning? Het Nina Bruno Vastgoed team begeleidt jou met uitgebreide kennis van zaken in de complexe wereld van het vastgoed. Als kandidaat koper of verkoper staan we je graag met professioneel advies bij.
Graag meer informatie over al onze diensten?
GDH26CC
Leer meer over vastgoed
17 June 2025
De gesplitste aankoop
11 June 2025
Huis kopen met bouwovertreding? Dit moet je weten
11 May 2025
Renoveren? Vraag je Mijn VerbouwPremie aan
22 April 2025