Nieuw
Unieke kans aan de rand van Gent!
€ 750.000
Een pand van Altro Vastgoed Dendermonde
Overzicht
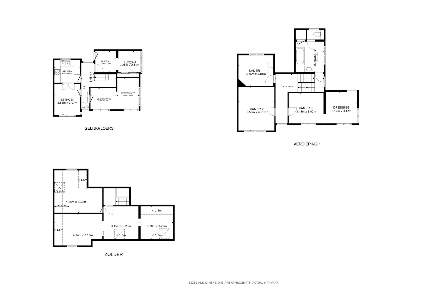
- 193 m² bewoonbaar
- 1929 m² grond
- 3 Slaapkamer(s)
- 1 Badkamer(s)
- 2 Toilet(ten)
- 1 Tuin
Beschrijving
Dit uitzonderlijk perceel van maar liefst 1929 m² in Mariakerke, op een toplocatie langs de vaart en vlakbij het centrum van Gent, biedt eindeloze mogelijkheden voor wonen én werken. Het domein bestaat uit twee kadastrale nummers, goed voor twee huisnummers, en combineert een bestaande woning met bijgebouwen en een voormalig magazijn/garage.
De huidige woning is steeds met zorg onderhouden en kan perfect gerenoveerd worden tot een charmante gezinswoning met veel buitenruimte. Het bijhorende magazijn biedt tal van opportuniteiten: opslagruimte, atelier, showroom of kantoor. Dankzij de bestaande handelsfunctie is een commerciële invulling steeds mogelijk.
Daarnaast is dit perceel ook bijzonder interessant als projectgrond. Uit een eerdere studie blijkt het potentieel voor de realisatie van 6 ruime appartementen met een mooie ligging nabij het water. Dankzij de oppervlakte en de dubbele kadastrale indeling kan dit perceel eveneens worden opgesplitst in twee afzonderlijke bouwgronden.
De ligging is een absolute troef: op een belangrijke invalsweg naar Gent, met vlotte verbindingen naar de R4, E40 en E17, en toch op fietsafstand van het historische centrum. Alle voorzieningen zoals scholen, winkels, openbaar vervoer en recreatie bevinden zich in de onmiddellijke omgeving.
Of u nu kiest voor renovatie, herbestemming of een volledig nieuw project: dit eigendom vormt de perfecte basis om uw plannen waar te maken.
Contacteer ons vandaag nog voor meer informatie of een bezoek!
De huidige woning is steeds met zorg onderhouden en kan perfect gerenoveerd worden tot een charmante gezinswoning met veel buitenruimte. Het bijhorende magazijn biedt tal van opportuniteiten: opslagruimte, atelier, showroom of kantoor. Dankzij de bestaande handelsfunctie is een commerciële invulling steeds mogelijk.
Daarnaast is dit perceel ook bijzonder interessant als projectgrond. Uit een eerdere studie blijkt het potentieel voor de realisatie van 6 ruime appartementen met een mooie ligging nabij het water. Dankzij de oppervlakte en de dubbele kadastrale indeling kan dit perceel eveneens worden opgesplitst in twee afzonderlijke bouwgronden.
De ligging is een absolute troef: op een belangrijke invalsweg naar Gent, met vlotte verbindingen naar de R4, E40 en E17, en toch op fietsafstand van het historische centrum. Alle voorzieningen zoals scholen, winkels, openbaar vervoer en recreatie bevinden zich in de onmiddellijke omgeving.
Of u nu kiest voor renovatie, herbestemming of een volledig nieuw project: dit eigendom vormt de perfecte basis om uw plannen waar te maken.
Contacteer ons vandaag nog voor meer informatie of een bezoek!
Dit uitzonderlijk perceel van maar liefst 1929 m² in Mariakerke, op een toplocatie langs de vaart en vlakbij het centrum van Gent, biedt eindeloze mogelijkheden voor wonen én werken. Het domein bestaat uit twee kadastrale nummers, goed voor twee huisnummers, en combineert een bestaande woning met bijgebouwen en een voormalig magazijn/garage.
De huidige woning is steeds met zorg onderhouden en kan perfect gerenoveerd worden tot een charmante gezinswoning met veel buitenruimte. Het bijhorende magazijn biedt tal van opportuniteiten: opslagruimte, atelier, showroom of kantoor. Dankzij de bestaande handelsfunctie is een commerciële invulling steeds mogelijk.
Daarnaast is dit perceel ook bijzonder interessant als projectgrond. Uit een eerdere studie blijkt het potentieel voor de realisatie van 6 ruime appartementen met een mooie ligging nabij het water. Dankzij de oppervlakte en de dubbele kadastrale indeling kan dit perceel eveneens worden opgesplitst in twee afzonderlijke bouwgronden.
De ligging is een absolute troef: op een belangrijke invalsweg naar Gent, met vlotte verbindingen naar de R4, E40 en E17, en toch op fietsafstand van het historische centrum. Alle voorzieningen zoals scholen, winkels, openbaar vervoer en recreatie bevinden zich in de onmiddellijke omgeving.
Of u nu kiest voor renovatie, herbestemming of een volledig nieuw project: dit eigendom vormt de perfecte basis om uw plannen waar te maken.
Contacteer ons vandaag nog voor meer informatie of een bezoek!
De huidige woning is steeds met zorg onderhouden en kan perfect gerenoveerd worden tot een charmante gezinswoning met veel buitenruimte. Het bijhorende magazijn biedt tal van opportuniteiten: opslagruimte, atelier, showroom of kantoor. Dankzij de bestaande handelsfunctie is een commerciële invulling steeds mogelijk.
Daarnaast is dit perceel ook bijzonder interessant als projectgrond. Uit een eerdere studie blijkt het potentieel voor de realisatie van 6 ruime appartementen met een mooie ligging nabij het water. Dankzij de oppervlakte en de dubbele kadastrale indeling kan dit perceel eveneens worden opgesplitst in twee afzonderlijke bouwgronden.
De ligging is een absolute troef: op een belangrijke invalsweg naar Gent, met vlotte verbindingen naar de R4, E40 en E17, en toch op fietsafstand van het historische centrum. Alle voorzieningen zoals scholen, winkels, openbaar vervoer en recreatie bevinden zich in de onmiddellijke omgeving.
Of u nu kiest voor renovatie, herbestemming of een volledig nieuw project: dit eigendom vormt de perfecte basis om uw plannen waar te maken.
Contacteer ons vandaag nog voor meer informatie of een bezoek!
Energie
![]() |
- EPC Certificaat: 20251001-0003699392-RES-1
- Energieverbruik: 742 kWh/m²/jaar
Let op, de renovatieverplichting in Vlaanderen verplicht de koper om deze woning na aankoop te renoveren tot een betere energieprestatie. Lees er alles over in dit artikel
Extra budget nodig voor je renovatie?
De overheid helpt je dit pand energetisch te renoveren! Hieronder zie je het premiebedrag dat je mogelijks van de overheid krijgt.
Het huidige EPC-label is:

Op de kaart

Financieel
Prijs | |
---|---|
Kadastraal inkomen (niet geïndexeerd) | € 2.009 |
Berekening kosten
Je aankoopkosten? Die heb je snel berekent via de knop hieronder.
Bijkomende info
Gebouw
Bouwjaar | 1900 |
---|---|
Staat | Goed onderhouden |
Bewoonbaar (m²) | 193 |
Gevels | 4 |
Badkamers | 1 |
Slaapkamers | 3 |
Verdiepingen | 3 |
Parkeerplaatsen | 0 |
Doucheruimtes | 1 |
Toiletten | 2 |
Faciliteiten
Type vloer | |
---|---|
Keuken uitrusting | Goed uitgerust |
Elektrisch keuringsattest | Nee |
Perceel
Overstromingsgevoelig | Geen |
---|---|
P-score | A |
G-score | A |
Totale oppervlakte (m²) | 1929 |
Tuin oppervlakte (m²) | 1929 |
Vergunning
Vergunning | Geen beschikbaar |
---|---|
Verkavelingsvergunning | Geen beschikbaar |
Uitrusting
Geschikt voor rolstoelgebruikers | Nee |
---|---|
Parking | Ja |
Garage | Ja |
Thuiskantoor | Ja |
Tuin | Ja |
Terras | Ja |
Lift | Nee |
Wateraansluiting | Ja |
Elektriciteitsaansluiting | Ja |
TV aansluiting | Ja |
Telefoonaansluiting | Ja |
Zwembad | Nee |
Zwemvijver | Nee |
Een pand van
Altro Vastgoed Dendermonde
Wij verkopen uw vastgoed, anders én beter!
Bij Altro Vastgoed vinden we een persoonlijke aanpak erg belangrijk, hierbij stellen we de klant steeds centraal en staan we hem/haar bij in het complexe proces van verkopen, aankopen, verhuren en huren van vastgoed. We beschikken over een kwalitatief kantorennetwerk in Vlaanderen en Brussel met een sterke, lokale verankering.
7180010
Leer meer over vastgoed
11 June 2025
Huis kopen met bouwovertreding? Dit moet je weten
11 May 2025
Renoveren? Vraag je Mijn VerbouwPremie aan
22 April 2025
Je allereerste renovatieproject selecteren én budgetteren: met de praktische hulp van Spotto
17 February 2025