Nieuw
Ruime gezinswoning met tuin in Sint-Amandsberg
Een pand van Altro Vastgoed Gent
Overzicht
- 134 m² bewoonbaar
- 152 m² grond
- 3 Slaapkamer(s)
- 1 Badkamer(s)
- 1 Toilet(ten)
- 1 Tuin
Beschrijving
Altro Vastgoed verkoopt : eerste bezoekmoment op zaterdag 11 oktober - enkel op afspraak
Deze verrassend ruime rijwoning in de Gentbruggestraat biedt tal van mogelijkheden. De woning is vandaag perfect bewoonbaar, maar kan na wat opfriswerk omgetoverd worden tot een eigentijdse, gezellige gezinswoning. Dankzij de lichtrijke leefruimtes, de praktische indeling en de aangename stadstuin is dit zowel voor eigen bewoning als voor investering een uitstekende keuze.
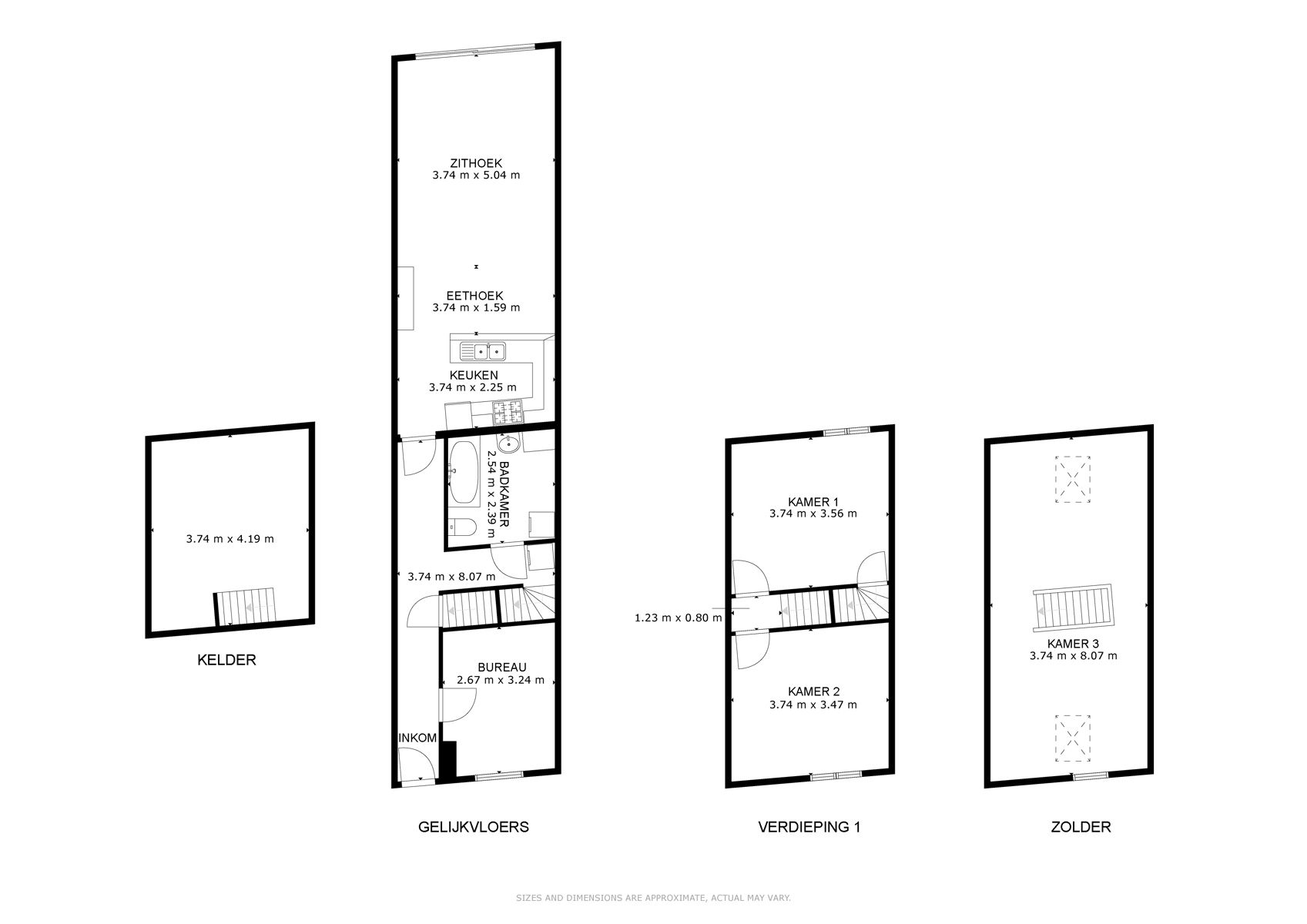
Indeling
Gelijkvloers: inkomhal, bureau/slaapkamer, badkamer met ligbad, lavabo en toilet, leefruimte met open keuken en toegang tot terras en tuin.
Tuin: ruime oostgerichte stadstuin met terras, ideaal om te genieten van de ochtend- en middagzon.
1e verdieping: 2 ruime slaapkamers, waarvan 1 toegang biedt tot een ingerichte zolderkamer (extra slaapkamer, speelkamer of hobbyruimte).
Kelder: aanwezig, ideaal als berging.
Troeven
Verrassend veel woonruimte
Oostgerichte tuin
EPC-score: C (215 kWh/m² jaar)
Centrale ligging nabij winkels, scholen, openbaar vervoer en invalswegen
Momenteel verhuurd aan €1.200/maand → interessant als investering - vrij vanaf 1 november 2025
Perfect bewoonbaar, met opfrismogelijkheden naar eigen smaak
Voor meer inlichtingen of een bezoek, contacteer Ellen :
0475.400.770 - ellen@altro-vastgoed.be
Deze verrassend ruime rijwoning in de Gentbruggestraat biedt tal van mogelijkheden. De woning is vandaag perfect bewoonbaar, maar kan na wat opfriswerk omgetoverd worden tot een eigentijdse, gezellige gezinswoning. Dankzij de lichtrijke leefruimtes, de praktische indeling en de aangename stadstuin is dit zowel voor eigen bewoning als voor investering een uitstekende keuze.
Indeling
Gelijkvloers: inkomhal, bureau/slaapkamer, badkamer met ligbad, lavabo en toilet, leefruimte met open keuken en toegang tot terras en tuin.
Tuin: ruime oostgerichte stadstuin met terras, ideaal om te genieten van de ochtend- en middagzon.
1e verdieping: 2 ruime slaapkamers, waarvan 1 toegang biedt tot een ingerichte zolderkamer (extra slaapkamer, speelkamer of hobbyruimte).
Kelder: aanwezig, ideaal als berging.
Troeven
Verrassend veel woonruimte
Oostgerichte tuin
EPC-score: C (215 kWh/m² jaar)
Centrale ligging nabij winkels, scholen, openbaar vervoer en invalswegen
Momenteel verhuurd aan €1.200/maand → interessant als investering - vrij vanaf 1 november 2025
Perfect bewoonbaar, met opfrismogelijkheden naar eigen smaak
Voor meer inlichtingen of een bezoek, contacteer Ellen :
0475.400.770 - ellen@altro-vastgoed.be
Altro Vastgoed verkoopt : eerste bezoekmoment op zaterdag 11 oktober - enkel op afspraak
Deze verrassend ruime rijwoning in de Gentbruggestraat biedt tal van mogelijkheden. De woning is vandaag perfect bewoonbaar, maar kan na wat opfriswerk omgetoverd worden tot een eigentijdse, gezellige gezinswoning. Dankzij de lichtrijke leefruimtes, de praktische indeling en de aangename stadstuin is dit zowel voor eigen bewoning als voor investering een uitstekende keuze.
Indeling
Gelijkvloers: inkomhal, bureau/slaapkamer, badkamer met ligbad, lavabo en toilet, leefruimte met open keuken en toegang tot terras en tuin.
Tuin: ruime oostgerichte stadstuin met terras, ideaal om te genieten van de ochtend- en middagzon.
1e verdieping: 2 ruime slaapkamers, waarvan 1 toegang biedt tot een ingerichte zolderkamer (extra slaapkamer, speelkamer of hobbyruimte).
Kelder: aanwezig, ideaal als berging.
Troeven
Verrassend veel woonruimte
Oostgerichte tuin
EPC-score: C (215 kWh/m² jaar)
Centrale ligging nabij winkels, scholen, openbaar vervoer en invalswegen
Momenteel verhuurd aan €1.200/maand → interessant als investering - vrij vanaf 1 november 2025
Perfect bewoonbaar, met opfrismogelijkheden naar eigen smaak
Voor meer inlichtingen of een bezoek, contacteer Ellen :
0475.400.770 - ellen@altro-vastgoed.be
Deze verrassend ruime rijwoning in de Gentbruggestraat biedt tal van mogelijkheden. De woning is vandaag perfect bewoonbaar, maar kan na wat opfriswerk omgetoverd worden tot een eigentijdse, gezellige gezinswoning. Dankzij de lichtrijke leefruimtes, de praktische indeling en de aangename stadstuin is dit zowel voor eigen bewoning als voor investering een uitstekende keuze.
Indeling
Gelijkvloers: inkomhal, bureau/slaapkamer, badkamer met ligbad, lavabo en toilet, leefruimte met open keuken en toegang tot terras en tuin.
Tuin: ruime oostgerichte stadstuin met terras, ideaal om te genieten van de ochtend- en middagzon.
1e verdieping: 2 ruime slaapkamers, waarvan 1 toegang biedt tot een ingerichte zolderkamer (extra slaapkamer, speelkamer of hobbyruimte).
Kelder: aanwezig, ideaal als berging.
Troeven
Verrassend veel woonruimte
Oostgerichte tuin
EPC-score: C (215 kWh/m² jaar)
Centrale ligging nabij winkels, scholen, openbaar vervoer en invalswegen
Momenteel verhuurd aan €1.200/maand → interessant als investering - vrij vanaf 1 november 2025
Perfect bewoonbaar, met opfrismogelijkheden naar eigen smaak
Voor meer inlichtingen of een bezoek, contacteer Ellen :
0475.400.770 - ellen@altro-vastgoed.be
Energie
![]() |
- EPC Certificaat: 20250623-0003631367-RES-1
- Energieverbruik: 215 kWh/m²/jaar
Op de kaart

Financieel
Prijs |
---|
Berekening kosten
Je aankoopkosten? Die heb je snel berekent via de knop hieronder.
Bijkomende info
Gebouw
Bouwjaar | 1880 |
---|---|
Renovatie jaar | 2004 |
Staat | Goed onderhouden |
Bewoonbaar (m²) | 134 |
Verdieping | 3 |
Gevels | 2 |
Badkamers | 1 |
Slaapkamers | 3 |
Verdiepingen | 3 |
Parkeerplaatsen | 0 |
Doucheruimtes | 1 |
Toiletten | 1 |
Faciliteiten
Type vloer | |
---|---|
Keuken uitrusting | Standaard |
Elektrisch keuringsattest | Ja |
Perceel
Overstromingsgevoelig | Geen |
---|---|
P-score | A |
G-score | A |
Voorkeurrecht | Ja |
Totale oppervlakte (m²) | 152 |
Tuin oppervlakte (m²) | 69 |
Vergunning
Vergunning | Vergunning beschikbaar |
---|---|
Verkavelingsvergunning | Geen beschikbaar |
Bouwovertreding | Geen |
Bouwovertreding dagvaardiging | Geen |
Uitrusting
Geschikt voor rolstoelgebruikers | Nee |
---|---|
Parking | Nee |
Garage | Nee |
Thuiskantoor | Ja |
Kelder | Ja |
Zolder | Ja |
Tuin | Ja |
Terras | Ja |
Lift | Nee |
Gasaansluiting | Ja |
Wateraansluiting | Ja |
Elektriciteitsaansluiting | Ja |
TV aansluiting | Ja |
Telefoonaansluiting | Ja |
Zwembad | Nee |
Zwemvijver | Nee |
Een pand van
Altro Vastgoed Gent
Wij verkopen uw vastgoed, anders én beter!
Bij Altro Vastgoed vinden we een persoonlijke aanpak erg belangrijk, hierbij stellen we de klant steeds centraal en staan we hem/haar bij in het complexe proces van verkopen, aankopen, verhuren en huren van vastgoed. We beschikken over een kwalitatief kantorennetwerk in Vlaanderen en Brussel met een sterke, lokale verankering.
Leer meer over vastgoed
17 June 2025
De gesplitste aankoop
11 June 2025
Huis kopen met bouwovertreding? Dit moet je weten
11 May 2025
Renoveren? Vraag je Mijn VerbouwPremie aan
22 April 2025