418 m² nstapklare kantooretage te koop – Sint-Denijs-Westrem
Een pand van Altro Vastgoed Brugge
Overzicht
- 418 m² bewoonbaar
- 418 m² grond
Beschrijving
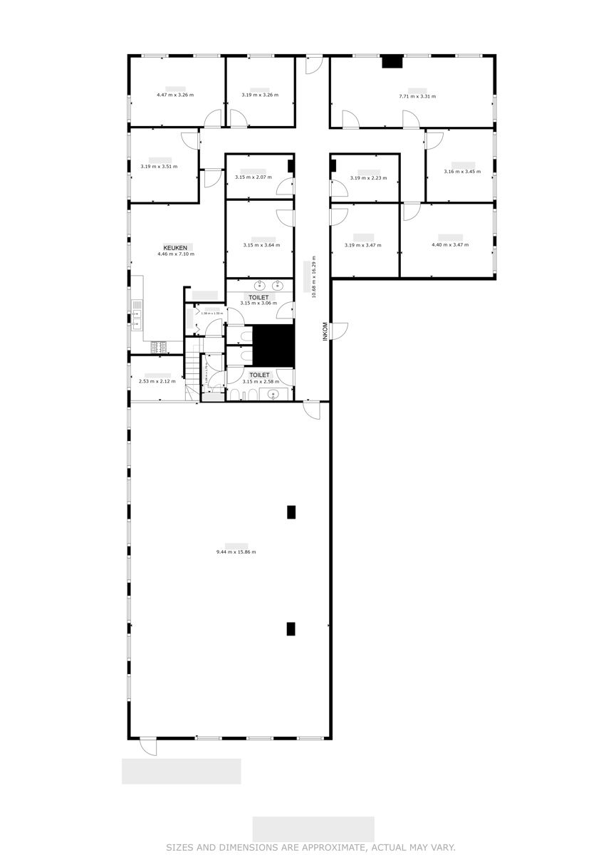
Instapklare kantooretage te koop – Kortrijksesteenweg 1060, Gent (Sint-Denijs-Westrem).
Op een zichtlocatie langs een van de belangrijkste invalswegen van Gent en vlak bij de E40 vindt u deze representatieve kantoorverdieping van ca. 418 m² met 5 privatieve parkeerplaatsen. De ligging combineert maximale bereikbaarheid met zichtbaarheid: de tram en Park+Ride zijn op wandelafstand, station Gent-Sint-Pieters ligt op enkele minuten.
Het gebouw (1981) werd in 2015 grondig gerenoveerd. De indeling biedt een royale centrale zaal met hoogcapaciteitsventilatie, meerdere lichtvriendelijke kantoren en vergaderruimtes, multifunctionele lokalen, een volwaardige keuken en een verzorgd sanitair blok. Dankzij de flexibele structuur is de ruimte inzetbaar als kantooromgeving, diensten- of vergaderlocatie, maar ook voor sociaal-culturele bijeenkomsten.
De afwerking omvat parketvloeren, verlaagde plafonds met geïntegreerde verlichting, databekabeling, ingemaakte kasten en aluminium ramen met dubbele beglazing. Toegang en veiligheid zijn voorzien via videofoon, alarmsysteem en gepantserde inkomdeur.
Troeven:
• 418 m² kantoorruimte, instapklaar
• 5 toegewezen parkeerplaatsen
• Renovatie 2015 met hoogwaardig comfort
• Zichtlocatie met snelle aansluiting E40
• Tram en Park+Ride op wandelafstand
Ontdek de mogelijkheden en plan uw bezoek via vastgoedmakelaar Wim Gevaert via 0473 70 40 71 (7/7) of wim@altro-vastgoed.be
Instapklare kantooretage te koop – Kortrijksesteenweg 1060, Gent (Sint-Denijs-Westrem).
Op een zichtlocatie langs een van de belangrijkste invalswegen van Gent en vlak bij de E40 vindt u deze representatieve kantoorverdieping van ca. 418 m² met 5 privatieve parkeerplaatsen. De ligging combineert maximale bereikbaarheid met zichtbaarheid: de tram en Park+Ride zijn op wandelafstand, station Gent-Sint-Pieters ligt op enkele minuten.
Het gebouw (1981) werd in 2015 grondig gerenoveerd. De indeling biedt een royale centrale zaal met hoogcapaciteitsventilatie, meerdere lichtvriendelijke kantoren en vergaderruimtes, multifunctionele lokalen, een volwaardige keuken en een verzorgd sanitair blok. Dankzij de flexibele structuur is de ruimte inzetbaar als kantooromgeving, diensten- of vergaderlocatie, maar ook voor sociaal-culturele bijeenkomsten.
De afwerking omvat parketvloeren, verlaagde plafonds met geïntegreerde verlichting, databekabeling, ingemaakte kasten en aluminium ramen met dubbele beglazing. Toegang en veiligheid zijn voorzien via videofoon, alarmsysteem en gepantserde inkomdeur.
Ontdek de mogelijkheden en plan uw bezoek.
Energie
![]() |
- EPC Certificaat: 20250930-0003698386-KNR-1
- Energieverbruik: 184 kWh/m²/jaar
Op de kaart

Downloads
- basisakte ELYSIUM(57953130.1).pdf (pdf)
- ActaMaps_Risicozones_Overstroming_ Ghent Meetinghouse 5217520 - Kortrijksesteenweg.pdf (pdf)
- The Church - Gent - Stedenbouwkundige inlichtingen.pdf (pdf)
- wijzigende basisakte ELYSIUM dd. 23-06-1980(57953129.1).pdf (pdf)
- 1.6. Gent - Bijlagen bij reglement van mede-eigendom.pdf (pdf)
- Asbestattest.pdf (pdf)
- EK - report_202509009597_nl.pdf (pdf)
- EPC Certificaat-20250930-0003698386-KNR-1.pdf (pdf)
- parkeerplaatsen.pdf (pdf)
Financieel
Prijs | |
---|---|
Kadastraal inkomen (niet geïndexeerd) | € 2.602 |
Kadastraal inkomen (geïndexeerd) | € 2.602 |
Berekening kosten
Je aankoopkosten? Die heb je snel berekent via de knop hieronder.
Bijkomende info
Gebouw
Bouwjaar | 1981 |
---|---|
Renovatie jaar | 2015 |
Staat | Zo goed als nieuw |
Bewoonbaar (m²) | 418 |
Verdieping | 2 |
Gevels | 3 |
Badkamers | 0 |
Slaapkamers | 0 |
Verdiepingen | 4 |
Parkeerplaatsen | 5 |
Faciliteiten
Type vloer | |
---|---|
Elektrisch keuringsattest | Nee |
Perceel
Overstromingsgevoelig | Geen |
---|---|
P-score | A |
G-score | A |
Voorkeurrecht | Nee |
Totale oppervlakte (m²) | 418 |
Bebouwde oppervlakte (m²) | 390 |
Tuin oppervlakte (m²) | 0 |
Vergunning
Vergunning | Vergunning beschikbaar |
---|---|
Verkavelingsvergunning | Geen beschikbaar |
Bouwovertreding | Geen |
Bouwovertreding dagvaardiging | Geen |
Uitrusting
Geschikt voor rolstoelgebruikers | Ja |
---|---|
Geschikt voor praktijk | Ja |
Parking | Ja |
Garage | Nee |
Thuiskantoor | Ja |
Tuin | Nee |
Terras | Nee |
Lift | Ja |
Gasaansluiting | Ja |
Wateraansluiting | Ja |
Elektriciteitsaansluiting | Ja |
Telefoonaansluiting | Ja |
Alarm | Ja |