> Te koop > Lochristi > Appartement > Gelijkvloers appartement te koop met terras in Lochristi!
Nieuw

Gelijkvloers appartement te koop met terras in Lochristi!

Overzicht


  • 2 Slaapkamer(s)
  • 1 Badkamer(s)
  • 2 Toilet(ten)

Beschrijving


Het appartement is gelegen in een moderne, tijdloze blok rechtover een grote supermarkt en bushalte. Alle voorzieningen zijn aanwezig op fietsafstand en er is een vlotte verbinding naar de grootsteden.

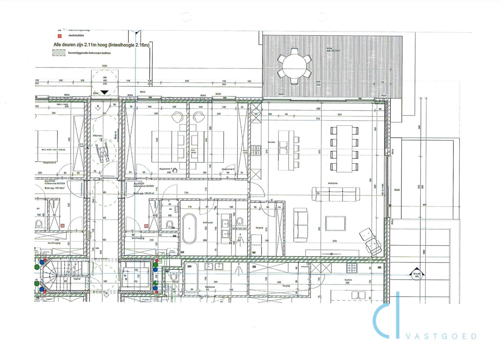
Het pand situeert zich achteraan het appartementsblok op het gelijkvloers. De woonst wordt betreden via een lange inkomhal, praktisch afgewerkt met ingemaakte kasten en ruimte voor vestiaire. De gietijzeren deur zorgt voor een verbinding met de woonkamer en creëert een ruim, lichtrijk gevoel in de hal. De open leefruimte heeft zeer grote raampartijen die zorgen voor een flinke dosis aan natuurlijk lichtinval alsook een direct zicht op het gezellig terras met tuintje. Verder vindt u een berging volledig ingericht met ingemaakte kasten en spoelbak. De ruime badkamer is uitgerust met een ligbad, inloopdouche, afgezonderd toilet en dubbel lavabomeubel. Ook de 2 slaapkamers zijn voorzien van dressingkasten en ramen tot op de grond. Tot slot is er een apart toilet en een wasplaats in combinatie met technische ruimte aanwezig. De aansluitingen voor de keuken zijn voorzien. 

Het appartementsgebouw heeft een gemeenschappelijke tuin met onderhouden wandelpaden, toffe stapstenen en vijvertje. Zo kan u zich samen met medebewoners vermaken in het groen. Toch liever alleen genieten van de buitenlucht? Daar is het privé terras met tuintje aan het appartement perfect voor! Op het perceel is een gemeenschappelijke fietsenstalling aanwezig én een vaste parkeerplaats toebehorend aan de eigenaar-bewoner!

Een grote troef is de energiezuinigheid van het pand, e-peil 47 (EPC A).

De verkoopprijs bedraagt 575.000 euro, exclusief registratierechten (parkeerplaats inbegrepen).

Bent u geïnteresseerd in dit tijdloze appartement op een perfecte locatie te Lochristi? Maak nu uw afspraak via hendrik@vastgoed-dc.be of de website. 

Energie


Epc A
  • Energieverbruik: 81 kWh/m²/jaar
  • E-peil: E47
  • Verwarming: Gas
  • Beglazing: Hoog efficient driedubbel

Op de kaart


map placeholder

Financieel


Prijs € 575.000
Kadastraal inkomen (niet geïndexeerd) € 1.120
Kadastraal inkomen (geïndexeerd) € 0

Berekening kosten


Je aankoopkosten? Die heb je snel berekent via de knop hieronder.

Bijkomende info


Gebouw
Bouwjaar 2018
Staat Goed onderhouden
Bouwcertificaat Nee
Verdieping 0
Badkamers 1
Slaapkamers 2
Verdiepingen 1
Garages 0
Parkeerplaatsen 1
Doucheruimtes 0
Toiletten 2
Faciliteiten
Keuken uitrusting Standaard
Materiaal ramenomlijstingen PVC
Beglazing Hoog efficient driedubbel
Brandstof primaire verwarming Gas
Elektrisch keuringsattest Ja
Perceel
Overstromingsgevoelig Geen
P-score B
G-score A
Voorkeurrecht Nee
Bebouwde oppervlakte (m²) 146
Tuin oppervlakte (m²) 0
Oppervlakte terras (m²) 29
Vergunning
Vergunning Vergunning beschikbaar
Verkavelingsvergunning Vergunning beschikbaar
Uitrusting
Investeringspand Nee
Geschikt voor praktijk Nee
Parking Ja
Garage Nee
Thuiskantoor Nee
Kelder Nee
Zolder Nee
Tuin Nee
Terras Ja
Lift Nee
Rioolaansluiting Nee
Gasaansluiting Nee
Wateraansluiting Nee
Elektriciteitsaansluiting Nee
TV aansluiting Nee
Internetaansluiting Nee
Telefoonaansluiting Nee
Appartementsblok
Naam residentie Schoonjans
Aantal verdiepingen 1
Lift Nee
Gelijkvloers appartement te koop met terras in Lochristi! foto {{pictureIndex}}

Gelijkvloers appartement te koop met terras in Lochristi!

€ 575.000

Dorp-Oost 45/0001 - 9080 Lochristi

Bezoek het pand

Vul jouw contactgegevens hieronder in en de makelaar contacteert je.

Leer meer over vastgoed

11 June 2025
Huis kopen met bouwovertreding? Dit moet je weten
11 May 2025
Renoveren? Vraag je Mijn VerbouwPremie aan
22 April 2025
Je allereerste renovatieproject selecteren én budgetteren: met de praktische hulp van Spotto
17 February 2025
Levenslang wonen: slaapkamer inrichten voor nieuwe invulling