KUNST/ ARTS 19 A/D: vanaf 250m²
Een pand van CEUSTERS
Overzicht
- 195 m² bewoonbaar
Beschrijving
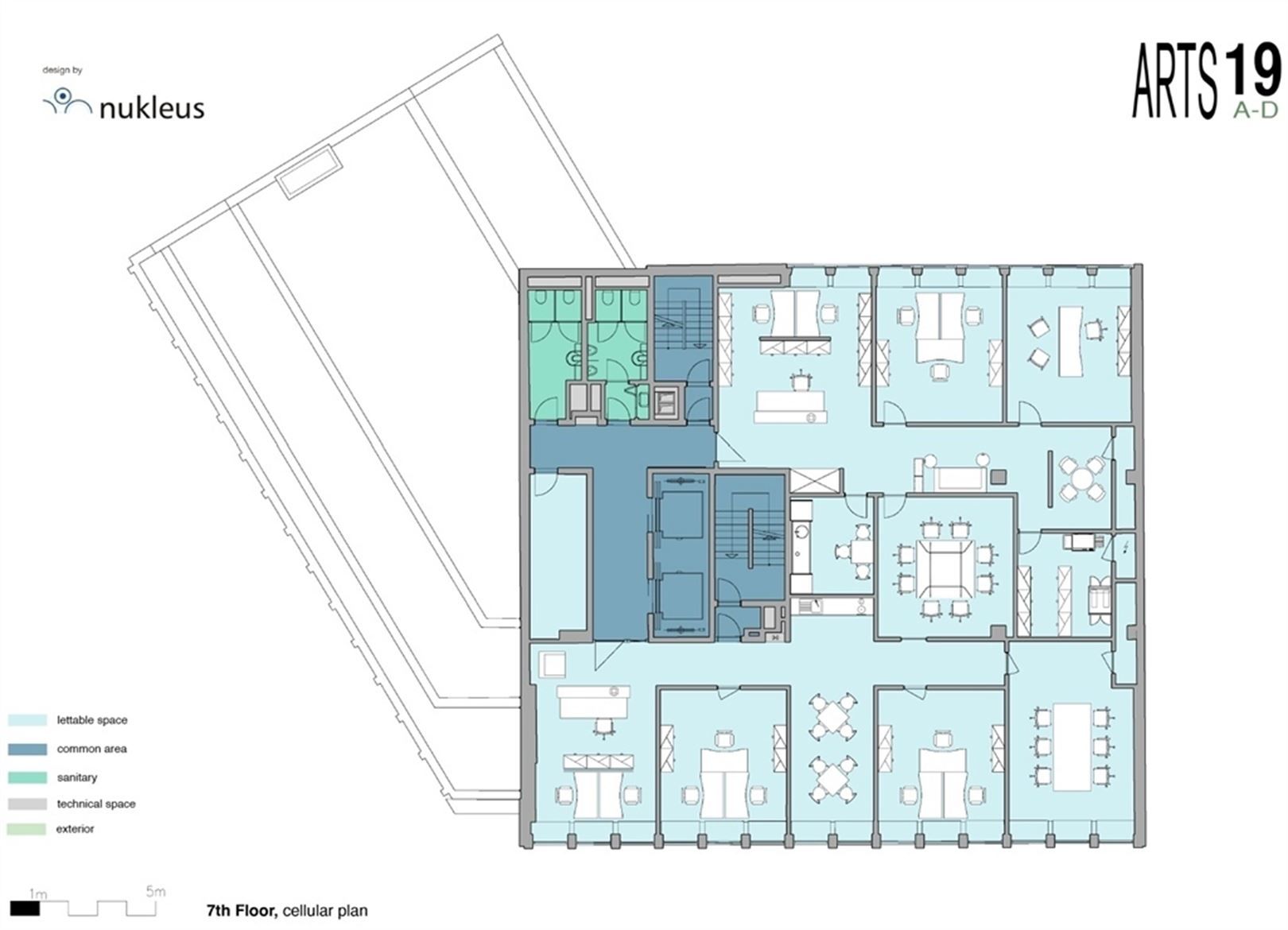
ARTS 19 AD
Het pand is gelegen tussen de Place Madou en de Rue de la Loi en bestaat uit een gebouw gelegen op de hoek van de Avenue des Arts 19AD en de Rue du Marteau.
Het gebouw biedt een zeer aantrekkelijke locatie voor Belgische administratieve organisaties, Europese vertegenwoordigingen, lobbyisten en andere partijen die verbonden zijn met de EU, omdat het zich bevindt tussen de belangrijkste Belgische overheidsinstellingen, Europese instellingen en de Place Madou, een centrum van de Europese Unie.
Het gebouw aan de Avenue des Arts 19AD omvat 9 verdiepingen met kantoren, een parkeergarage en een technische verdieping. Het zijgedeelte van het gebouw bestaat uit 4 verdiepingen met kantoren.
Een oppervlakte van 252m² is momenteel beschikbaar op de 5e verdieping.
Kenmerken
Toegangscontrole met badges
Videobewaking bij de hoofdingang en garage (2 liften)
Efficiënte en lichte ruimte
Metalen plafonds
Ruime ondergrondse parking
Locatie en toegankelijkheid:
Het Arts 19 AD gebouw is gelegen in de Leopoldwijk (Europese wijk) aan de kleine ring van Brussel, met de Avenue des Arts als de buitenring.
Het Arts 19 AD gebouw ligt dicht bij de Place Madou, de Chaussée de Louvain en de Avenue des Arts en biedt directe toegang tot het stadscentrum.
De Avenue des Arts is een van de sterkste kantoormarkten in Brussel, met verschillende hoogprofiel huurders, waaronder de Amerikaanse ambassade, de Bank of New York en verschillende federale en regionale Belgische administraties. Het herbergt ook tal van bedrijven en vertegenwoordigers van de verschillende instellingen van de Europese Unie die zich in de Leopoldwijk bevinden.
Aangezien de Avenue des Arts en de Boulevard du Régent tot de belangrijkste verkeersaders in Brussel behoren, heeft het gebouw een uitstekende zichtbaarheid.
Vanuit het oogpunt van rijtoegankelijkheid is het Arts 19 AD gebouw zeer goed gelegen. Toegang is gegarandeerd via de Rue de la Loi en de E40 snelweg vanuit de Ring, de luchthaven en het oosten van het land.
De verbindingen met het openbaar vervoer zijn zeer goed, met het metrostation op korte afstand bij de Place Madou. Het centraal station ligt op 15 minuten wandelen.
*********
Voldoet dit pand niet aan uw wensen?
Bezoek onze website: www.ceusters.be of neem rechtstreeks contact met ons op voor een op maat gemaakte selectie: office@ceusters.be
*********
Energie
![]() |
- E-peil: E0
- Beglazing: Onbekend
Op de kaart

Financieel
| Maandelijkse kosten | € 0 |
|---|---|
| Kadastraal inkomen (niet geïndexeerd) | € 0 |
| Kadastraal inkomen (geïndexeerd) | € 0 |
Bijkomende info
Gebouw
| Bouwcertificaat | Nee |
|---|---|
| Bewoonbaar (m²) | 195 |
| Verdieping | 0 |
| Badkamers | 0 |
| Slaapkamers | 0 |
| Verdiepingen | 0 |
| Garages | 0 |
| Parkeerplaatsen | 0 |
| Doucheruimtes | 0 |
| Toiletten | 0 |
Faciliteiten
| Elektrisch keuringsattest | Ja |
|---|
Perceel
| Overstromingsgevoelig | Geen |
|---|---|
| Voorkeurrecht | Nee |
| Bebouwde oppervlakte (m²) | 0 |
| Tuin oppervlakte (m²) | 0 |
| Oppervlakte terras (m²) | 0 |
Uitrusting
| Investeringspand | Nee |
|---|---|
| Geschikt voor praktijk | Nee |
| Parking | Nee |
| Garage | Nee |
| Thuiskantoor | Nee |
| Kelder | Nee |
| Zolder | Nee |
| Tuin | Nee |
| Terras | Nee |
| Lift | Nee |
| Rioolaansluiting | Nee |
| Gasaansluiting | Nee |
| Wateraansluiting | Nee |
| Elektriciteitsaansluiting | Nee |
| TV aansluiting | Nee |
| Internetaansluiting | Nee |
| Telefoonaansluiting | Nee |
Appartementsblok
| Naam residentie | KUNST/ ARTS 19 A/D |
|---|---|
| Lift | Nee |
