CITY CENTER: kantoren te huur vanaf 978m²
Een pand van CEUSTERS
Overzicht
- 2242 m² bewoonbaar
Beschrijving
CITY CENTER
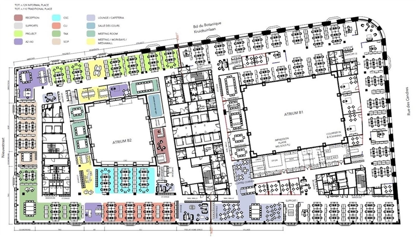
Het City Center heeft een uitgesproken, algemeen bekende identiteit. Dit is de voormalige "Bon Marché" die een zware renovatie onderging om het om te vormen tot een kantoorgebouw.
De oorspronkelijke gevel is bewaard gebleven en uitgebreid in dezelfde Art-Deco stijl. Er werd een groot koepelvormig dak geïnstalleerd op 3 niveaus. Dit werk is uitgevoerd door het Atelier d'Art Urbain en is typerend voor deze periode, die werd beïnvloed door het actieplan in het kader van de wederopbouw van Brussel. 3
Het City Center ligt aan de Kruidtuinlaan en de Nieuwstraat, in 1000 Brussel. De hoofdingang in het midden van de noordelijke gevel van het gebouw kijkt uit op het Rogierplein. Het gebouw heeft een optimale ligging, in het epicentrum van Brussel, met meerdere toegangen tot de verschillende faciliteiten.
Een laaddock in de Cendresstraat maakt de bevoorrading van deze grote ruimten mogelijk zonder het verkeer in de straat te hinderen. De ingang van de openbare parking City2 bevindt zich ook in deze straat.
Er is onlangs een grote renovatie uitgevoerd aan het dak, de entreehal, de kozijnen, de liften en de belangrijkste technieken van het City Center.
Bereikbaarheid:
Het gebouw biedt een directe toegang tot het winkelcentrum City2 en ook een directe toegang tot het metrostation " Rogier " (tram/metro) via de eerste kelder. Deze nieuwe verbinding rapporteert over de verbeteringen met betrekking tot de renovatie van de City2. Personen met beperkte mobiliteit hebben toegang tot de lift van het metrostation Rogier, die zich op 10 meter van de hoofdingang van het gebouw bevindt.
Twee treinstations bevinden zich in de onmiddellijke omgeving van het gebouw. De stations 'Brussel-Congres' en 'Brussel-Noord', respectievelijk op 240 meter en 550 meter van het gebouw.
De buslijnen 2/3/74/6/25/32/55/61 stoppen aan het busstation van het Rogierplein, tegenover het gebouw.
Het gebouw ligt aan de rand van de 'Petite Ceinture' en op gelijke afstand van de verschillende wegen vanaf alle kardinale punten, wat de toegang tot de verschillende wegen vergemakkelijkt. Het City Center heeft ook directe verbindingen met de openbare parkeergarages City2 en Botanique. Deze bieden meer dan 700 parkeerplaatsen voor werknemers en bezoekers.
Er komt een ruime fietsenstalling met oplaadpunten, kluisjes en douches in de kelder. Daarnaast zijn er openbare voorzieningen zoals fiets hoepels voor de hoofdingang van het gebouw en een Villo station.
Kenmerken:
- Vrije hoogte 2,70m
- 9 liften & 4 goederenliften
- HVAC
- Natuurlijk licht dankzij de 2 atria en de 4 gevels
- Zonwering op de bovenste verdieping
- Nieuwe toegangscontrole en videobewaking
- Badge systeem
- Duurzaam: Uitstekend BREAAM-certificaat
- Zonnepanelen
- Tal van diensten en faciliteiten in de directe omgeving
- Yoga, Fitness, Douches
- Directe toegang tot het voedseldistrict en shopping centers
*********
Niet wat je zoekt ?
Bezoek op onze website: www.ceusters.be of contacteer ons onmiddellijk om een gepersonaliseerde selectie te ontvangen: office@ceusters.be
*********
Energie
![]() |
- EPC Certificaat: 1111111111
- Energieverbruik: 120 kWh/m²/jaar
- E-peil: E0
- Beglazing: Onbekend
Op de kaart

Financieel
| Maandelijkse kosten | € 0 |
|---|---|
| Kadastraal inkomen (niet geïndexeerd) | € 0 |
| Kadastraal inkomen (geïndexeerd) | € 0 |
Bijkomende info
Gebouw
| Bouwcertificaat | Nee |
|---|---|
| Bewoonbaar (m²) | 2242 |
| Verdieping | 0 |
| Badkamers | 0 |
| Slaapkamers | 0 |
| Verdiepingen | 0 |
| Garages | 0 |
| Parkeerplaatsen | 0 |
| Doucheruimtes | 0 |
| Toiletten | 0 |
Faciliteiten
| Elektrisch keuringsattest | Ja |
|---|
Perceel
| Overstromingsgevoelig | Geen |
|---|---|
| Voorkeurrecht | Nee |
| Bebouwde oppervlakte (m²) | 0 |
| Tuin oppervlakte (m²) | 0 |
| Oppervlakte terras (m²) | 0 |
Uitrusting
| Investeringspand | Nee |
|---|---|
| Geschikt voor praktijk | Nee |
| Parking | Nee |
| Garage | Nee |
| Thuiskantoor | Nee |
| Kelder | Nee |
| Zolder | Nee |
| Tuin | Nee |
| Terras | Nee |
| Lift | Nee |
| Rioolaansluiting | Nee |
| Gasaansluiting | Nee |
| Wateraansluiting | Nee |
| Elektriciteitsaansluiting | Nee |
| TV aansluiting | Nee |
| Internetaansluiting | Nee |
| Telefoonaansluiting | Nee |
Appartementsblok
| Naam residentie | CITY CENTER |
|---|---|
| Lift | Nee |
