ALHAMBRA: +/- 10,500m² kantoren
Prijs op aanvraag
Een pand van CEUSTERS
Overzicht
- 1329 m² bewoonbaar
Beschrijving
ALHAMBRA
Het Alhambra-gebouw biedt +/- 10.500m² kantoorruimte en is ideaal gelegen nabij de Place de Brouckère, aan het begin van de Boulevard Emiel Jacqmain.
Het is omgeven door talrijke winkels, restaurants, banken, bioscopen, openbare parkeerplaatsen en een postkantoor.
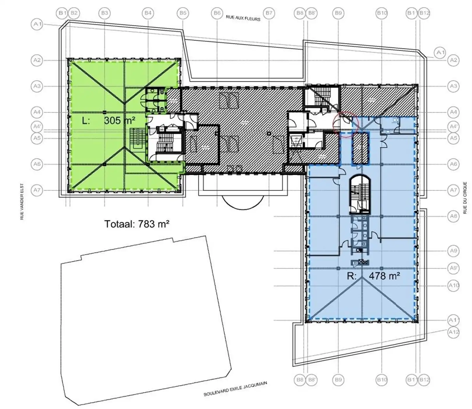
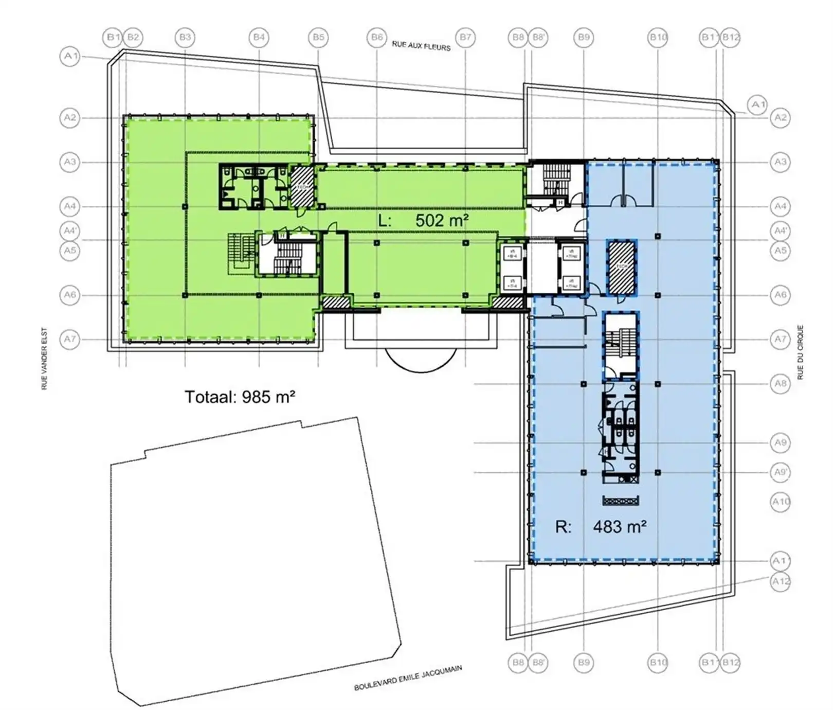
Ruimtes zijn momenteel beschikbaar vanaf 305m² tot +/- 1.329m² (typische verdieping)
De parking wordt beheerd door Interparking. Er zijn geen parkeerplaatsen met elektrische oplaadpunten, maar deze kunnen in overleg met Interparking worden voorzien.
Beschikbaarheid van fietsenstallingen.
Kenmerken:
- Bouwjaar: 1997, gerenoveerd in 2016
- Verhoogde vloer
- Vals plafond
- Receptionist (G4S)
- Vrije hoogte: 3,32m
- Plafondhoogte: 2.60m
- Aanwezigheid van glasvezel
- Airconditioning
- LED-verlichting met bewegingsdetectie
- Energieprestatie: 114 kWhPE/m²/jaar
- CO2-uitstoot: 21 kgCO2/m²/jaar
*********
Bezoek onze website: www.ceusters.be of contacteer ons onmiddellijk voor meer informatie : office@ceusters.be
*********
Energie
- E-peil: E0
- Beglazing: Onbekend
Op de kaart

Financieel
| Maandelijkse kosten | € 0 |
|---|---|
| Kadastraal inkomen (niet geïndexeerd) | € 0 |
| Kadastraal inkomen (geïndexeerd) | € 0 |
Bijkomende info
Gebouw
| Bouwcertificaat | Nee |
|---|---|
| Bewoonbaar (m²) | 1329 |
| Verdieping | 0 |
| Badkamers | 0 |
| Slaapkamers | 0 |
| Verdiepingen | 0 |
| Garages | 0 |
| Parkeerplaatsen | 0 |
| Doucheruimtes | 0 |
| Toiletten | 0 |
Faciliteiten
| Elektrisch keuringsattest | Ja |
|---|
Perceel
| Overstromingsgevoelig | Geen |
|---|---|
| Voorkeurrecht | Nee |
| Bebouwde oppervlakte (m²) | 0 |
| Tuin oppervlakte (m²) | 0 |
| Oppervlakte terras (m²) | 0 |
Uitrusting
| Investeringspand | Nee |
|---|---|
| Geschikt voor praktijk | Nee |
| Parking | Nee |
| Garage | Nee |
| Thuiskantoor | Nee |
| Kelder | Nee |
| Zolder | Nee |
| Tuin | Nee |
| Terras | Nee |
| Lift | Nee |
| Rioolaansluiting | Nee |
| Gasaansluiting | Nee |
| Wateraansluiting | Nee |
| Elektriciteitsaansluiting | Nee |
| TV aansluiting | Nee |
| Internetaansluiting | Nee |
| Telefoonaansluiting | Nee |
Appartementsblok
| Naam residentie | EMILE JACQMAIN 12-22 - ALHAMBRA |
|---|---|
| Lift | Nee |
Een pand van
CEUSTERS
CEUSTERS
Onze experts in property management en vastgoedadvies stellen een kwalitatieve dienstverlening voorop. Creatief en flexibel gaat ons team op zoek naar kansen en oplossingen voor elke klant. Telkens een stapje verder. Naast onze kantoren in Antwerpen, Gent, Brussel, Hasselt en Rotterdam (Nederland), opereert CEUSTERS vanuit zes andere vestigingen verspreid over heel België. In deze snel veranderende wereld staat ons sterk inzicht in de lokale markt garant voor continuïteit.
EMILE JACQMAIN 12-22 - ALHAMBRA
Leer meer over vastgoed
04 January 2026
Zoek je een kantoor, een magazijn of… iets ertussenin? Bedrijfsvastgoed uitgelegd
05 November 2024
Bedrijfsvastgoed in transitie: ontdek de toekomst van werkplekken
16 October 2024
Opbrengsteigendom: een slim pad naar passief inkomen en vermogensgroei
09 September 2024