HÔTEL DES DOUANES: vanaf 2.200m²
€ 43.083,34
Een pand van CEUSTERS
Overzicht
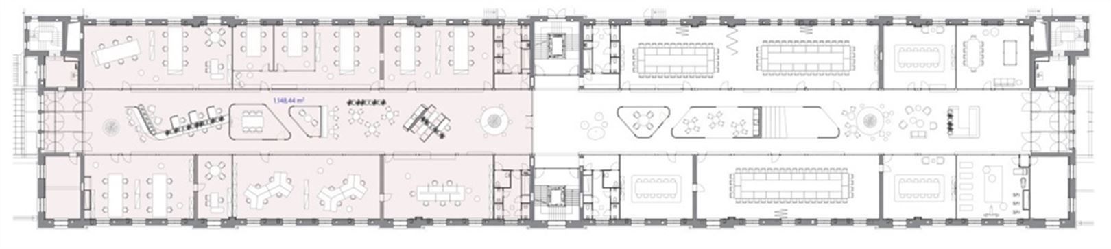
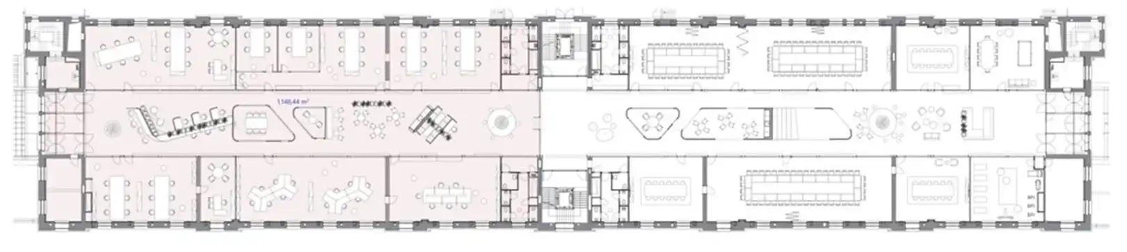
- 2200 m² bewoonbaar
Beschrijving
HÔTEL DES DOUANES
Hôtel des Douanes heeft een fascinerend industrieel erfgoed. Het werd ontworpen door de beroemde Belgische architect Ernest Van Humbeek en voltooid in 1907. Het was oorspronkelijk bedoeld als administratief centrum voor alle douanezaken bij Tour & Taxis. De langwerpige vorm, die lijkt op het Koninklijk Pakhuis, was gebouwd rond een bankhal van twee verdiepingen hoog. De structuur is bewaard gebleven, samen met originele elementen zoals de stalen kolommen, betonnen dakconstructie, metalen structuren die het glazen dak ondersteunen, lambrisering op de muren en massief granieten trappen.
Hôtel des Douanes ligt op een steenworp afstand van het treinstation Brussel-Noord, het belangrijkste pendelknooppunt in Brussel en België. Met de fiets, te voet of met de pendelbus, hoe je jou ook verplaatst, er geraken is een koud kunstje.
Kantoorkenmerken en troeven:
- Duurzaam
- nieuwste hernieuwbare technologieën
- milieuvriendelijke materialen
- geothermische verwarming en koeling
- zonnepanelen
- slim systeem voor waterterugwinning
- Designkantoren
- Aparte werkvloeren
- Natuurlijk licht door het atrium
Diensten:
- Maison de la Poste: evenementenlocatie en conferentiecentrum
- Voedingsmarkt Gare Maritime
- Gedeelde lounges
- Moderne vergaderzalen
- Twee kinderdagverblijven (een Franse en een Nederlandse)
- Gastvrijheid en facilitair management op locatie
- Kapper
- Hamam, gezondheids- en fitnessdiensten
- Winkels
- Douches en kluisjes
- Beveiliging en conciërgediensten
- Laadstations voor elektrische voertuigen
*********
Niet wat je zoekt ?
Bezoek onze website: www.ceusters.be of contacteer ons onmiddellijk om een gepersonaliseerde selectie te ontvangen: office@ceusters.be
*********
Energie
- E-peil: E0
- Beglazing: Onbekend
Op de kaart

Financieel
| Prijs | |
|---|---|
| Maandelijkse kosten | € 0 |
| Kadastraal inkomen (niet geïndexeerd) | € 0 |
| Kadastraal inkomen (geïndexeerd) | € 0 |
Bijkomende info
Gebouw
| Bouwcertificaat | Nee |
|---|---|
| Bewoonbaar (m²) | 2200 |
| Verdieping | 0 |
| Badkamers | 0 |
| Slaapkamers | 0 |
| Verdiepingen | 0 |
| Garages | 0 |
| Parkeerplaatsen | 0 |
| Doucheruimtes | 0 |
| Toiletten | 0 |
Faciliteiten
| Elektrisch keuringsattest | Nee |
|---|
Perceel
| Overstromingsgevoelig | Geen |
|---|---|
| Voorkeurrecht | Ja |
| Bebouwde oppervlakte (m²) | 0 |
| Tuin oppervlakte (m²) | 0 |
| Oppervlakte terras (m²) | 0 |
Vergunning
| Vergunning | Geen beschikbaar |
|---|---|
| Verkavelingsvergunning | Geen beschikbaar |
Uitrusting
| Investeringspand | Nee |
|---|---|
| Geschikt voor praktijk | Nee |
| Parking | Nee |
| Garage | Nee |
| Thuiskantoor | Nee |
| Kelder | Nee |
| Zolder | Nee |
| Tuin | Nee |
| Terras | Nee |
| Lift | Nee |
| Rioolaansluiting | Nee |
| Gasaansluiting | Nee |
| Wateraansluiting | Nee |
| Elektriciteitsaansluiting | Nee |
| TV aansluiting | Nee |
| Internetaansluiting | Nee |
| Telefoonaansluiting | Nee |
Appartementsblok
| Naam residentie | HÔTEL DES DOUANES |
|---|---|
| Lift | Nee |