GREENYARD: vanaf 107m²
Prijs op aanvraag
Een pand van CEUSTERS
Overzicht
- 464 m² bewoonbaar
Beschrijving
GREENYARD
Twee Kerkenstraat 26 / Maria-Theresiastraat 21 - 1000 Brussel
Onlangs gerenoveerd kantoorgebouw (2021), gelegen in de Leopold wijk, dichtbij de Europese Instellingen, de Wetstraat en de Madou toren.
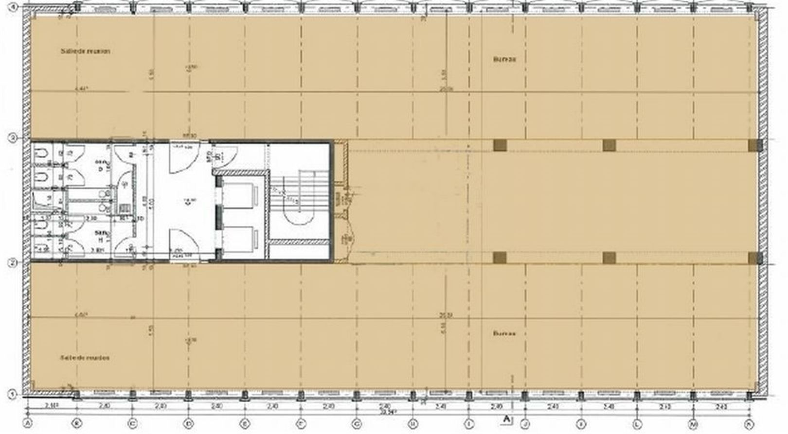
De Greenyard bestaat uit 2 gebouwen met gescheiden toegangen en die door een tuin verbonden. De parking is eveneens gemeenschappelijk en verbonden aan de 2 gebouwen.
- Veiligheid : camerabeveiliging
- Inrichting van de kantoren : open space
- Liften : 2
- Type verwarming : gasverwarming
- Airconditioning : ventilo-convectoren
- Vensters : dubbele beglazing
- Verlaagd plafonds
- Toegankelijk voor mindervaliden
- Vloer kantoren : vast tapijt
- Toiletten : 2 toiletten
- Zonneschermen : Ja
Ruimtes beschikbaar vanaf 107m². 400m² met een aparte ingang zijn ook beschikbaar op de begane grond van het gebouw.
Taksen (O.V., gewestelijk en gemeentelijke): 43,75€/m²/jaar
*********
Niet wat je zoekt ?
Bezoek onze website: www.ceusters.be of contacteer ons onmiddellijk om een gepersonaliseerde selectie te ontvangen: office@ceusters.be
*********
Energie
- E-peil: E0
- Beglazing: Onbekend
Op de kaart

Financieel
| Maandelijkse kosten | € 0 |
|---|---|
| Kadastraal inkomen (niet geïndexeerd) | € 0 |
| Kadastraal inkomen (geïndexeerd) | € 0 |
Bijkomende info
Gebouw
| Bouwcertificaat | Nee |
|---|---|
| Bewoonbaar (m²) | 464 |
| Verdieping | 0 |
| Badkamers | 0 |
| Slaapkamers | 0 |
| Verdiepingen | 0 |
| Garages | 0 |
| Parkeerplaatsen | 0 |
| Doucheruimtes | 0 |
| Toiletten | 0 |
Faciliteiten
| Elektrisch keuringsattest | Ja |
|---|
Perceel
| Overstromingsgevoelig | Geen |
|---|---|
| Voorkeurrecht | Nee |
| Bebouwde oppervlakte (m²) | 0 |
| Tuin oppervlakte (m²) | 0 |
| Oppervlakte terras (m²) | 0 |
Vergunning
| Vergunning | Vergunning beschikbaar |
|---|
Uitrusting
| Investeringspand | Nee |
|---|---|
| Geschikt voor praktijk | Nee |
| Parking | Nee |
| Garage | Nee |
| Thuiskantoor | Nee |
| Kelder | Nee |
| Zolder | Nee |
| Tuin | Nee |
| Terras | Nee |
| Lift | Nee |
| Rioolaansluiting | Ja |
| Gasaansluiting | Ja |
| Wateraansluiting | Ja |
| Elektriciteitsaansluiting | Ja |
| TV aansluiting | Ja |
| Internetaansluiting | Ja |
| Telefoonaansluiting | Ja |
Appartementsblok
| Naam residentie | GREENYARD |
|---|---|
| Lift | Nee |