WETENSCHAP/ SCIENCE 14: vanaf 184m²
Een pand van CEUSTERS
Overzicht
- 387 m² bewoonbaar
Beschrijving
SCIENCE 14
Het pand is gelegen in het hart van de Leopoldwijk tussen het Europees Parlement en de Europese Commissie.
Het gebouw biedt een zeer aantrekkelijke locatie voor zowel Belgische administratieve organisaties als Europese vertegenwoordigingen, lobbyisten en andere aan de EU gelieerde partijen aangezien het gelegen is tussen de belangrijkste Belgische overheidsinstellingen en de Europese instellingen.
De Leopoldwijk is een van de sterkste kantoormarkten in Brussel met een aantal referentiegebruikers, waaronder de ambassade van de VS, de Bank of New York en verschillende Belgische federale en regionale overheidsinstanties.
Het gebouw aan de Wetenschapsstraat 14 bestaat uit 8 bovenste kantoorverdiepingen, een parkeergarage en een technische verdieping.
Het Science 14-gebouw ligt vlakbij het Schuman-rondpunt, de Belliardstraat en de Wetstraat en biedt onmiddellijke toegang tot het stadscentrum.
Het 19e-eeuwse Mansion House is een iconisch gebouw aan de Square Frère Orban, naast de St Joseph-kerk.
Bereikbaarheid:
- Twee treinstations op minder dan 600 meter van het gebouw (Luxemburg en Schuman)
- TGV, Thalys en Eurostar op een paar haltes afstand met de metro
- 10 buslijnen binnen 600m
- Twee metrolijnen, drie stations op minder dan 500m (Kunst-Wet, Troon, Maelbeek)
- Verbinding tussen Schuman en Brussels Airport
- Gemakkelijke toegang tot het gebouw en parking met de wagen
Kenmerken:
- Toegang badge
- LED-verlichting
- Verwarming, koeling en ventilatie door het hele gebouw
- Openslaande ramen met dubbele beglazing
- Lift
- Fantastische ruimtes met hoge plafonds
- Gerenoveerd in 2023
- Enorme verscheidenheid aan voorzieningen in de buurt
- Mogelijkheid om meer parkeerplaatsen te huren bij het THON hotel
- Wetenschap 14A:
- Opsplitsbaar vanaf 250m² en de verdeling kan worden overgenomen
- Bemande receptie
- 2 liften
- Gedeelde vergaderzalen
- Koffiebar/restaurant op de begane grond
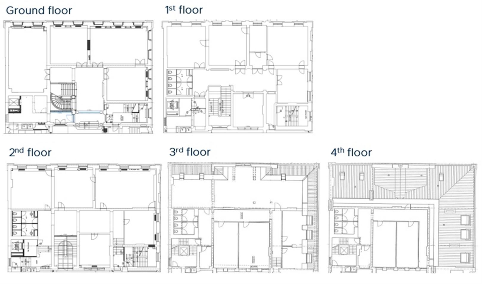
De volgende verdiepingen van het Mansion House moeten samen gehuurd worden:
- -1, 0, 1 en 2: totaal => 1.559m².
- 3 + 4: totaal => 547m².
Kosten herenhuis:
- Onroerende voorheffing: 16€/m²
- Huurkosten: 36€/m² (waarvan verbruiksgoederen: 11€/m²)
- Regionale belastingen: 8,1€/m²
- Gemeentelijke belastingen: 15€/m²
Frère Orban Mansion House: unieke kans om het hele gebouw te huren (2.106m²)!
*********
Niet wat je zoekt ?
Bezoek onze website: www.ceusters.be of contacteer ons onmiddellijk om een gepersonaliseerde selectie te ontvangen: office@ceusters.be
*********
Energie
![]() |
- E-peil: E0
- Beglazing: Onbekend
Op de kaart

Financieel
| Maandelijkse kosten | € 0 |
|---|---|
| Kadastraal inkomen (niet geïndexeerd) | € 0 |
| Kadastraal inkomen (geïndexeerd) | € 0 |
Bijkomende info
Gebouw
| Bouwcertificaat | Nee |
|---|---|
| Bewoonbaar (m²) | 387 |
| Verdieping | 0 |
| Badkamers | 0 |
| Slaapkamers | 0 |
| Verdiepingen | 0 |
| Garages | 0 |
| Parkeerplaatsen | 0 |
| Doucheruimtes | 0 |
| Toiletten | 0 |
Faciliteiten
| Elektrisch keuringsattest | Ja |
|---|
Perceel
| Overstromingsgevoelig | Geen |
|---|---|
| Voorkeurrecht | Nee |
| Bebouwde oppervlakte (m²) | 0 |
| Tuin oppervlakte (m²) | 0 |
| Oppervlakte terras (m²) | 0 |
Vergunning
| Vergunning | Vergunning beschikbaar |
|---|
Uitrusting
| Investeringspand | Nee |
|---|---|
| Geschikt voor praktijk | Nee |
| Parking | Nee |
| Garage | Nee |
| Thuiskantoor | Nee |
| Kelder | Nee |
| Zolder | Nee |
| Tuin | Nee |
| Terras | Nee |
| Lift | Nee |
| Rioolaansluiting | Ja |
| Gasaansluiting | Ja |
| Wateraansluiting | Ja |
| Elektriciteitsaansluiting | Ja |
| TV aansluiting | Ja |
| Internetaansluiting | Ja |
| Telefoonaansluiting | Ja |
Appartementsblok
| Naam residentie | WETENSCHAP/ SCIENCE 14 |
|---|---|
| Lift | Nee |
