BELLIARD 12: 329m² beschikbaar
Prijs op aanvraag
Een pand van CEUSTERS
Favoriet
Jouw zoektocht
Jouw scoretabel voor dit pand
Aan het laden...
Jouw geplande bezichtigingen
Aan het laden...
Overzicht
- 329 m² bewoonbaar
Beschrijving
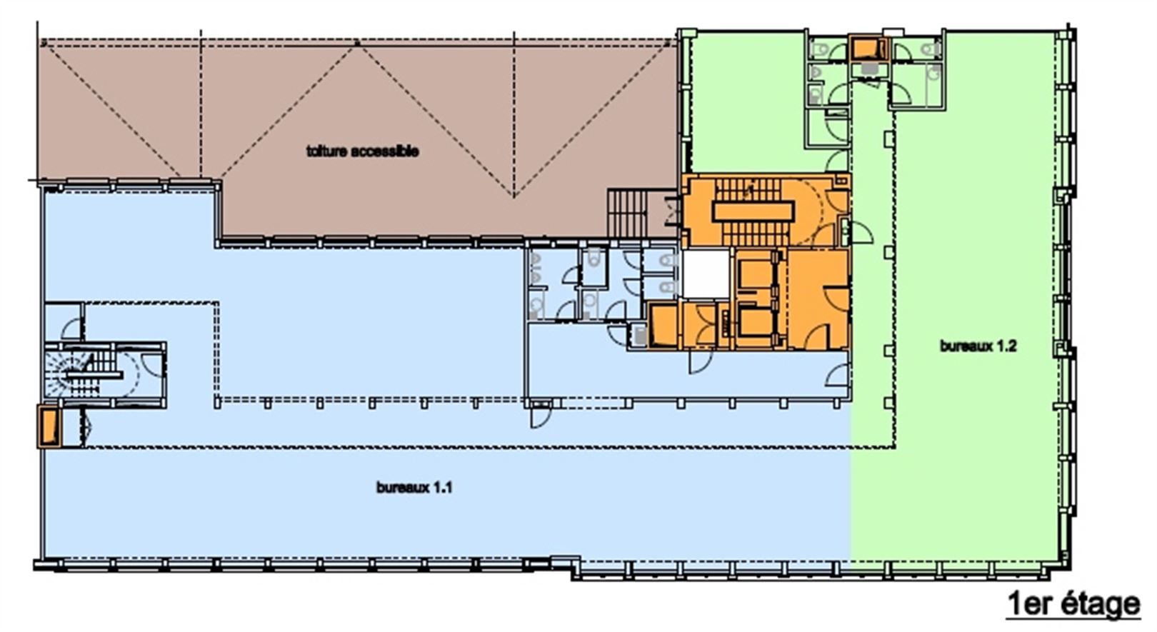
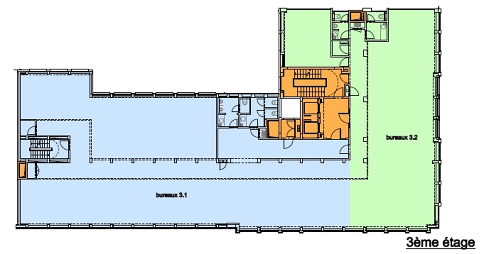
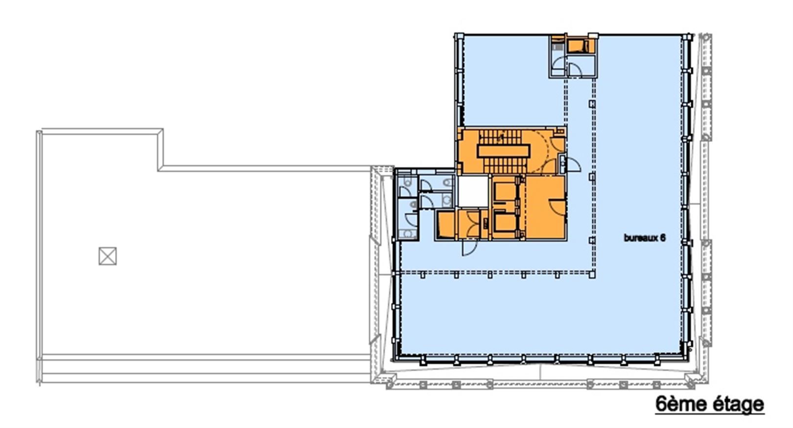
BELLIARD 12
Belliard 12 is gelegen op een uitzonderlijke locatie in het hart van de Leopoldwijk in Brussel en werd gerenoveerd in 2002.
Makkelijk bereikbaar in de nabijheid van de Ring en met openbaar vervoer, trein tram en luchthaven op wandelafstand bereikbaar.
329m² is beschikbaar op het 6e verdiep en beschikt over alle modern comfort.
Kenmerken:
Liften
Ingangscontrole
Terras
Air conditioning
Dubbele beglazing
Luchtkoel-/verwarmingsunits
Fitness, restaurant en supermarkt zijn op wandelafstand.
**********
Bezoek onze website: www.ceusters.be of contacteer ons rechtstreeks voor meer informatie: office@ceusters.be
**********
Energie
![]() |
- E-peil: E0
- Beglazing: Onbekend
Op de kaart

Financieel
| Maandelijkse kosten | € 0 |
|---|---|
| Kadastraal inkomen (niet geïndexeerd) | € 0 |
| Kadastraal inkomen (geïndexeerd) | € 0 |
Bijkomende info
Gebouw
| Bouwcertificaat | Nee |
|---|---|
| Bewoonbaar (m²) | 329 |
| Verdieping | 0 |
| Badkamers | 0 |
| Slaapkamers | 0 |
| Verdiepingen | 0 |
| Garages | 0 |
| Parkeerplaatsen | 0 |
| Doucheruimtes | 0 |
| Toiletten | 0 |
Faciliteiten
| Elektrisch keuringsattest | Ja |
|---|
Perceel
| Overstromingsgevoelig | Geen |
|---|---|
| Voorkeurrecht | Nee |
| Bebouwde oppervlakte (m²) | 0 |
| Tuin oppervlakte (m²) | 0 |
| Oppervlakte terras (m²) | 0 |
Uitrusting
| Investeringspand | Nee |
|---|---|
| Geschikt voor praktijk | Nee |
| Parking | Nee |
| Garage | Nee |
| Thuiskantoor | Nee |
| Kelder | Nee |
| Zolder | Nee |
| Tuin | Nee |
| Terras | Nee |
| Lift | Nee |
| Rioolaansluiting | Nee |
| Gasaansluiting | Nee |
| Wateraansluiting | Nee |
| Elektriciteitsaansluiting | Nee |
| TV aansluiting | Nee |
| Internetaansluiting | Nee |
| Telefoonaansluiting | Nee |
Appartementsblok
| Naam residentie | B12 |
|---|---|
| Lift | Nee |
Een pand van
CEUSTERS
CEUSTERS
Onze experts in property management en vastgoedadvies stellen een kwalitatieve dienstverlening voorop. Creatief en flexibel gaat ons team op zoek naar kansen en oplossingen voor elke klant. Telkens een stapje verder. Naast onze kantoren in Antwerpen, Gent, Brussel, Hasselt en Rotterdam (Nederland), opereert CEUSTERS vanuit zes andere vestigingen verspreid over heel België. In deze snel veranderende wereld staat ons sterk inzicht in de lokale markt garant voor continuïteit.
BELLIARD 12 - B12
Leer meer over vastgoed
04 January 2026
Zoek je een kantoor, een magazijn of… iets ertussenin? Bedrijfsvastgoed uitgelegd
05 November 2024
Bedrijfsvastgoed in transitie: ontdek de toekomst van werkplekken
16 October 2024
Opbrengsteigendom: een slim pad naar passief inkomen en vermogensgroei
09 September 2024
