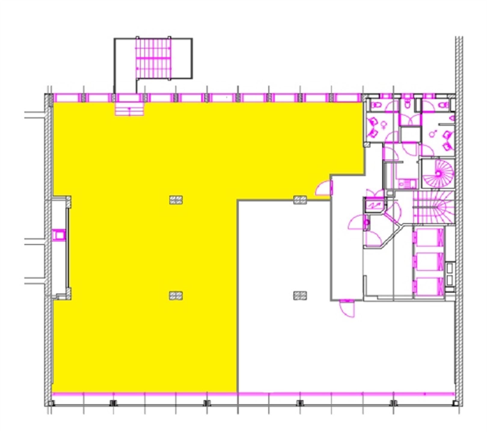
LOUIZA/ LOUISE 140: 465m² op 3e en 4e verdiep
Prijs op aanvraag
Een pand van CEUSTERS
Favoriet
Jouw zoektocht
Jouw scoretabel voor dit pand
Aan het laden...
Jouw geplande bezichtigingen
Aan het laden...
Overzicht
- 465 m² bewoonbaar
Beschrijving
THE LOUISE 140
Kantoorgebouw gelegen aan een van de meest prestigieuze straten van de stad, in het hart van het Louise-district, omringd door advocatenkantoren, consultants en lobbyisten
Technische informatie:
- Airconditioning : verwarming en koeling via perimeter fan-coil units - samen met ventilatie in het verlaagde plafond
- Vrije hoogte : 2m60 vrije hoogte in kantoorruimtes
- Verhoogde vloer : met hoogwaardige antistatische tapijttegels
- Toiletten : moderne heren-/dames toiletvoorzieningen op elke verdieping
- Kenmerken : uitstekende natuurlijke verlichting in het hele kantoor
- Toegangsbeheer : badge toegang & videobewaking vanaf parkeerplaats en ingangen
- Modules : 90 – 1.80 – 2.70
- Liften : 2 Schindler liften met toegang voor rolstoelen
Gemakkelijke toegang per auto vanuit het zuiden van Brussel. EV oplaadpunten in de parkeergarage.
Thalys, Eurostar en nationale spoorwegdiensten 3 haltes verder met de metro.
Metrohalte op 10 minuten lopen (Louise)
Tramhalte voor het gebouw (Defacqz)
Vele bushaltes binnen 600m naar alle delen van de stad en de voorsteden
*********
Bezoek onze website: www.ceusters.be of neem meteen contact op om meer informatie te ontvangen office@ceusters.be
*********
Energie
- E-peil: E0
- Beglazing: Onbekend
Op de kaart

Financieel
| Maandelijkse kosten | € 0 |
|---|---|
| Kadastraal inkomen (niet geïndexeerd) | € 0 |
| Kadastraal inkomen (geïndexeerd) | € 0 |
Bijkomende info
Gebouw
| Bouwcertificaat | Nee |
|---|---|
| Bewoonbaar (m²) | 465 |
| Verdieping | 0 |
| Badkamers | 0 |
| Slaapkamers | 0 |
| Verdiepingen | 0 |
| Garages | 0 |
| Parkeerplaatsen | 0 |
| Doucheruimtes | 0 |
| Toiletten | 0 |
Faciliteiten
| Elektrisch keuringsattest | Ja |
|---|
Perceel
| Overstromingsgevoelig | Geen |
|---|---|
| Voorkeurrecht | Nee |
| Bebouwde oppervlakte (m²) | 0 |
| Tuin oppervlakte (m²) | 0 |
| Oppervlakte terras (m²) | 0 |
Uitrusting
| Investeringspand | Nee |
|---|---|
| Geschikt voor praktijk | Nee |
| Parking | Nee |
| Garage | Nee |
| Thuiskantoor | Nee |
| Kelder | Nee |
| Zolder | Nee |
| Tuin | Nee |
| Terras | Nee |
| Lift | Nee |
| Rioolaansluiting | Nee |
| Gasaansluiting | Nee |
| Wateraansluiting | Nee |
| Elektriciteitsaansluiting | Nee |
| TV aansluiting | Nee |
| Internetaansluiting | Nee |
| Telefoonaansluiting | Nee |
Appartementsblok
| Naam residentie | LOUIZA/ LOUISE 140 |
|---|---|
| Lift | Nee |
Een pand van
CEUSTERS
CEUSTERS
Onze experts in property management en vastgoedadvies stellen een kwalitatieve dienstverlening voorop. Creatief en flexibel gaat ons team op zoek naar kansen en oplossingen voor elke klant. Telkens een stapje verder. Naast onze kantoren in Antwerpen, Gent, Brussel, Hasselt en Rotterdam (Nederland), opereert CEUSTERS vanuit zes andere vestigingen verspreid over heel België. In deze snel veranderende wereld staat ons sterk inzicht in de lokale markt garant voor continuïteit.
LOUIZA/ LOUISE 140
Leer meer over vastgoed
04 January 2026
Zoek je een kantoor, een magazijn of… iets ertussenin? Bedrijfsvastgoed uitgelegd
05 November 2024
Bedrijfsvastgoed in transitie: ontdek de toekomst van werkplekken
16 October 2024
Opbrengsteigendom: een slim pad naar passief inkomen en vermogensgroei
09 September 2024