IT TOWER: kantoren te huur vanaf 150m²
Prijs op aanvraag
Een pand van CEUSTERS
Overzicht
- 562 m² bewoonbaar
Beschrijving
IT TOWER
Prestigieus gebouw ontwikkeld door architect Walter Bresseleers.
Het bestaat uit 2 gelinkte torens, waarvan 1 toren bestaat uit alleen kantoren en het andere uit technische diensten (sanitair, liften, trappen).
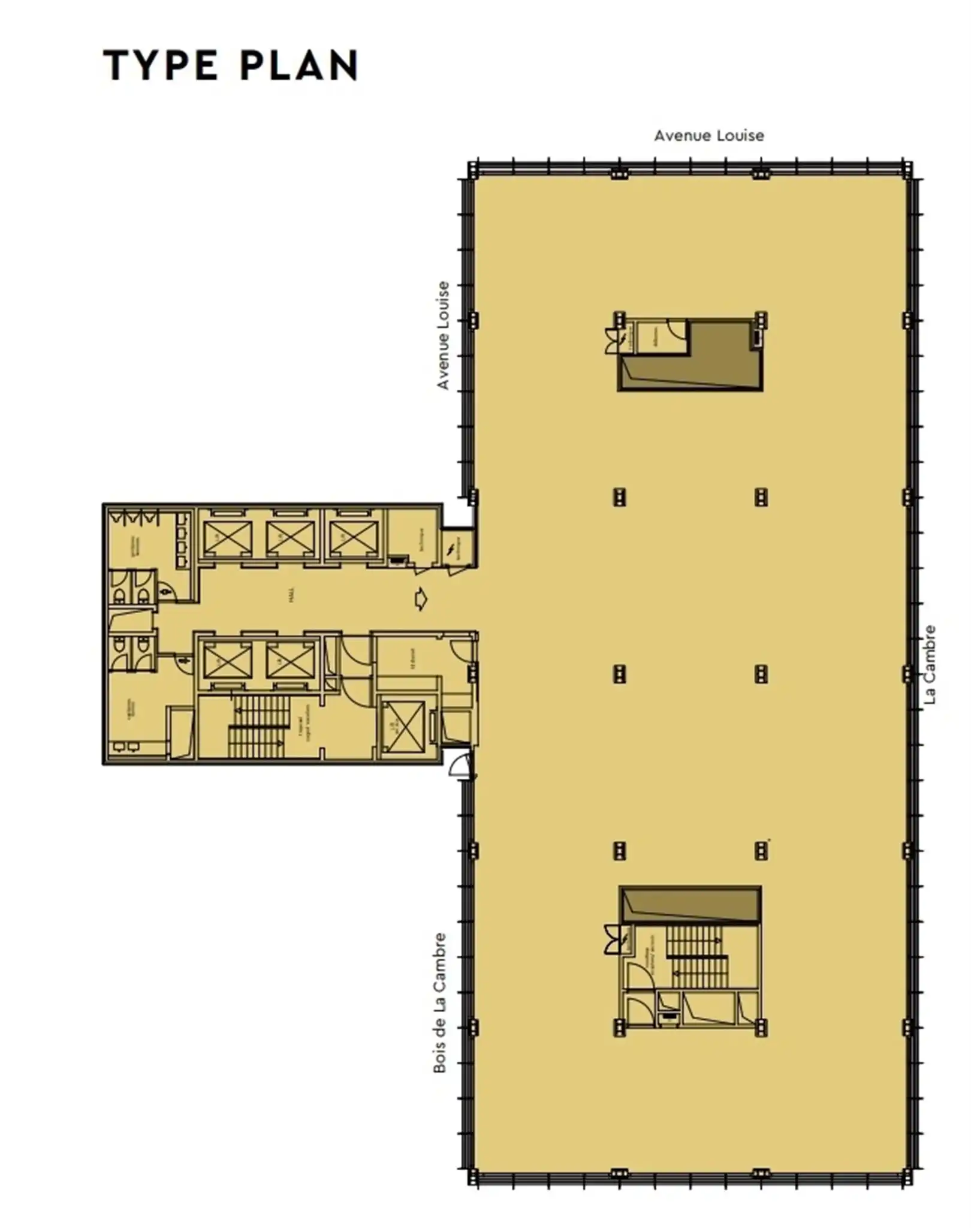
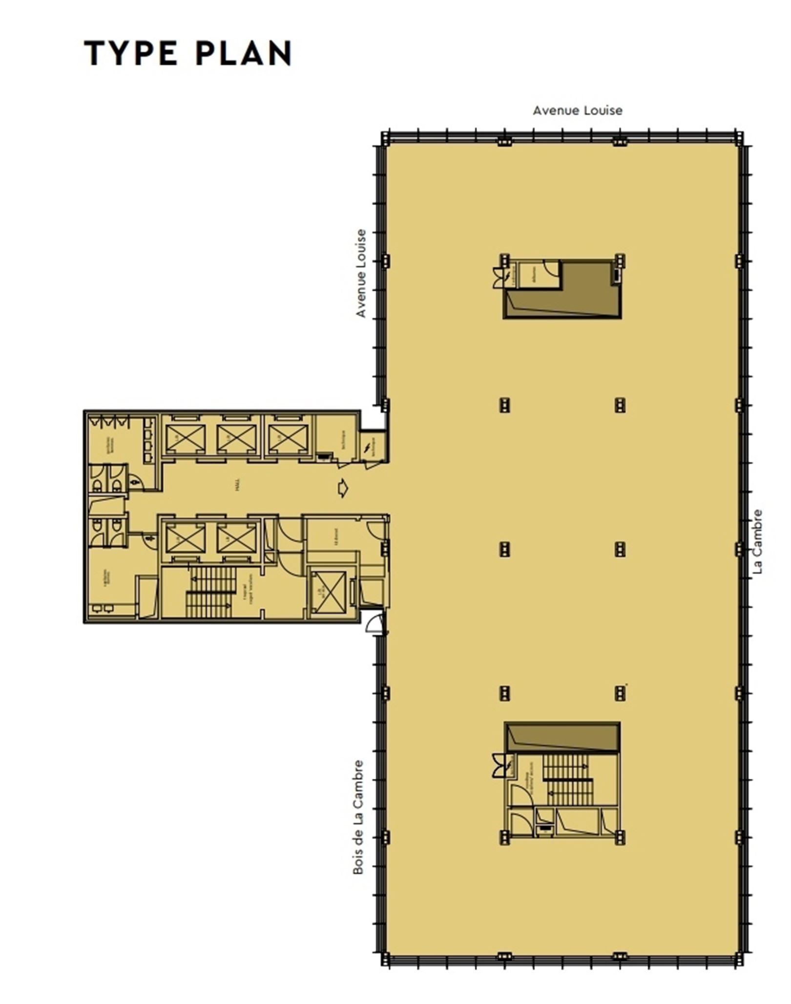
Het gebouw telt 25 verdiepingen van ong. 1.000m² met 5 extra ondergrondse verdiepingen als parkeerruimte. Het gelijkvloers heeft een grote ontvangsthal met een aantal zithoekjes en verschillende vergaderzalen.
Op -1 ligt een Fitness met mogelijkheid tot een persoonlijke coach (extra kosten).
Ruimtes vanaf +/- 150m² zijn momenteel beschikbaar.
De eigenaars van het gebouw streven ook naar het BREEAM IN-USE 'Very Good' certificaat.
Kenmerken:
- Receptie met dubbele hoogte en 'glazen box'-ingang boven het wateroppervlak
- Extra vergaderzalen en conferentiefaciliteiten op de begane grond
- Hoofdingang naar verhoogde begane grond met receptiebalie en grote ontvangstruimten (pc's, televisie, bureaus, grote wachtruimten)
- Verlaagd plafond (metaal op dakspanten) met geïntegreerde verlichting
- Ramen van vloer tot plafond (niet opengaand)
- Modulaire raammaat van ca. 1,50m
- Vrije hoogte van ca. 2,70m op de typische kantoorverdiepingen
- Open kantoorverdiepingen met twee ondersteunende en navigerende interne structuren
- Servicepunten (vloerdoos) met kabelgootsysteem voor bekabeling
- Twee noodtrappenhuizen naar de bovenste verdieping, één in de kantoortoren en één in de technische toren
- Privétoegang tot de fitnessruimte in -1 voor alle huurders
- 8 liften
- Verwarming: gedistribueerd door statische verwarmingsunits, ejecto & ventiloconvectoren en luchtbehandelingsunits
- Volledig geklimatiseerd gebouw
- Ventilatie: luchtafvoer via plafond & terugvoer van verse lucht via vloer
- Receptie op de begane grond van 8u tot 16u30
- 24-uurs beveiliging
De gemeenschappelijke kosten omvatten:
- Receptiediensten tijdens kantooruren + telefoon & internet
- Onderhoud en schoonmaak van parkeerplaatsen en van de gemeenschappelijke delen van het gebouw + controle
- Sneeuwruimen
- Onderhoud groenvoorzieningen in en rond het gebouw en op het gemeenschappelijke terras
- Schoonmaken van de ramen (buiten 3x/jaar) en onderhoud van de gevel
- Onderhoud van de technische installaties (liften, HVAC-installatie, elektrische installaties, toegangsdeuren, ...) inclusief data/telecom technische alarmen
- Wettelijke inspecties van gemeenschappelijke installaties en brandbeveiligingsmiddelen
- Ophalen van vuilnis
- Energieverbruik gemeenschappelijke ruimtes/installaties
- Verzekering gebouw
- Sportschool
- Onderhoudscontrole
- Beveiliging tijdens kantooruren en nachtelijke patrouilles
**********
Niet wat u zoekt?
Bezoek onze website: www.ceusters.be of contacteer ons onmiddellijk om een gepersonaliseerde selectie te ontvangen: 02/511.05.60 - office@ceusters.be
**********
Energie
![]() |
- E-peil: E0
- Beglazing: Onbekend
Op de kaart

Financieel
| Maandelijkse kosten | € 0 |
|---|---|
| Kadastraal inkomen (niet geïndexeerd) | € 0 |
| Kadastraal inkomen (geïndexeerd) | € 0 |
Bijkomende info
Gebouw
| Bouwcertificaat | Nee |
|---|---|
| Bewoonbaar (m²) | 562 |
| Verdieping | 0 |
| Badkamers | 0 |
| Slaapkamers | 0 |
| Verdiepingen | 0 |
| Garages | 0 |
| Parkeerplaatsen | 0 |
| Doucheruimtes | 0 |
| Toiletten | 0 |
Faciliteiten
| Elektrisch keuringsattest | Ja |
|---|
Perceel
| Overstromingsgevoelig | Geen |
|---|---|
| Voorkeurrecht | Nee |
| Bebouwde oppervlakte (m²) | 0 |
| Tuin oppervlakte (m²) | 0 |
| Oppervlakte terras (m²) | 0 |
Uitrusting
| Investeringspand | Nee |
|---|---|
| Geschikt voor praktijk | Nee |
| Parking | Nee |
| Garage | Nee |
| Thuiskantoor | Nee |
| Kelder | Nee |
| Zolder | Nee |
| Tuin | Nee |
| Terras | Nee |
| Lift | Nee |
| Rioolaansluiting | Nee |
| Gasaansluiting | Nee |
| Wateraansluiting | Nee |
| Elektriciteitsaansluiting | Nee |
| TV aansluiting | Nee |
| Internetaansluiting | Nee |
| Telefoonaansluiting | Nee |
Appartementsblok
| Naam residentie | IT TOWER |
|---|---|
| Lift | Nee |
