Dejonckerstraat 46, 1060 Sint-Gillis
Een pand van DGI
Jouw zoektocht
Overzicht
Beschrijving
--------
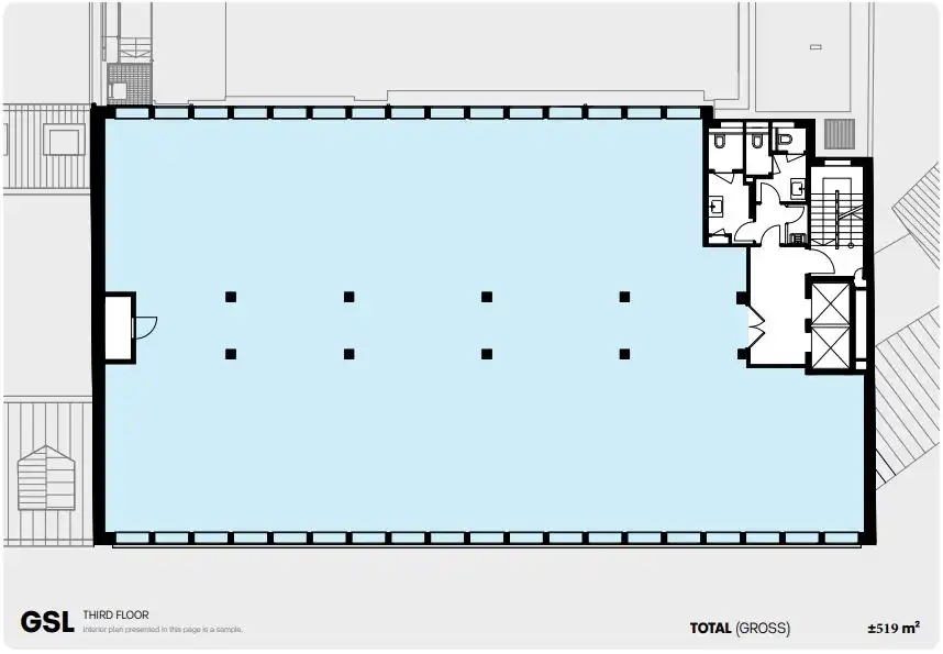
te huur - kantoor (3 units, 482 - 1536 m²) - parking (1 unit, 1 pl)
--------
Dit gerenoveerde kantoorgebouw in Brussel maakt een professionele en eigentijdse setting mogelijk voor je onderneming. De centrale ligging nabij de Louizalaan zorgt voor een vlot bereikbare uitvalsbasis waar kwaliteit en technologie centraal staan. Je vindt hier de ruimte om medewerkers en klanten te ontvangen in een omgeving die rust en efficiëntie uitstraalt. Door de directe nabijheid van diverse stedelijke voorzieningen combineert deze locatie moeiteloos werk met het stadsleven.
Hoogtepunten
- Volledig gerenoveerd met de nieuwste technologieën;
- Uitstekende bereikbaarheid met metro en tram op wandelafstand;
- Parkeergelegenheid op eigen terrein aanwezig;
- Gelegen in een levendige omgeving met horeca en winkels;
- Professionele uitstraling met hoogwaardige afwerkingsgraad.
Locatie & Bereikbaarheid
Het pand bevindt zich in een dynamische zone nabij de Louizalaan en het Justitiepaleis in Sint-Gillis. Deze locatie kenmerkt zich door een mix van professionele dienstverlening, prestigieuze kantoren en commerciële faciliteiten.
Nabije voorzieningen
- Vlotte verbinding via de gewestelijke fietsroutes richting Brussel-Centrum en de zuidrand;
- Auto R0 (Ring Brussel) afrit: 7,5 km (15 min);
- Kleine Ring (R20): 0,5 km;
- Station Brussel-Zuid: 1,6 km (6 min);
- Metrostation Louiza: 250 meter;
- Brussels Airport (BRU): 15,3 km;
- Luik Airport (LGG): 91,2 km.
Het Gebouw
Dit kantoorgebouw is recent volledig vernieuwd. Het concept focust op een zakelijke uitstraling met veel aandacht voor natuurlijk licht en technologisch comfort. Het gebouw is ontworpen om een inspirerende werkplek te bieden in het hart van de hoofdstad.
Gemeenschappelijke Voorzieningen
- Parking: 1 plaats beschikbaar;
- Beveiliging: Toegangscontrole.
Kantoor
De kantoorruimtes zijn verdeeld over verschillende verdiepingen en genieten van een overvloedige natuurlijke lichtinval door de grote raampartijen. De indeling is flexibel en biedt mogelijkheden voor zowel open-plan inrichtingen als individuele werkplekken.
Kenmerken
- Moderne luchtbehandeling;
- Internet: Fiber aanwezig;
- Sanitair: Per verdieping aanwezig.
Technisch
- Centrale verwarming op aardgas;
- Airco: Aanwezig in de kantoorruimtes;
- Ventilatie: Mechanisch beschikbaar;
- Toiletten: Meerdere per verdieping
- Internet: Fiber beschikbaar.
Interesse ?
Dit kantoorpand combineert een centrale ligging nabij de Louizalaan met moderne technologische voorzieningen en een hoogwaardige afwerking. De uitstekende bereikbaarheid via het openbaar vervoer en de nabijheid van het Justitiepaleis maken dit een strategische keuze voor je kantoorvestiging. Of je nu op zoek bent naar een volledige verdieping of een groter volume in Brussel, dit gebouw biedt de nodige flexibiliteit en professionele uitstraling.
Neem contact op met DGI voor een bezichtiging.
Energie
Op de kaart

Financieel
| Prijs |
|---|