Nieuw
Prachtig appartement met 3 slaapkamers – Wijk Gare Maritime
€ 1.750 (+€ 150)
Drève du Parc 26/10 - App : I3.1 - 1080 Molenbeek-Saint-Jean
Een pand van TREVI GROUP
Favoriet
Jouw zoektocht
Jouw scoretabel voor dit pand
Aan het laden...
Jouw geplande bezichtigingen
Aan het laden...
Overzicht
- 125 m² bewoonbaar
- 3 Slaapkamer(s)
- 2 Badkamer(s)
- 2 Toilet(ten)
Beschrijving
BRUSSEL CENTRUM – (I3.1) Ontdek een prachtig appartement in de bloeiende wijk van het Maritiem Station. Gelegen in het prestigieuze project „Imperial“, dat elegantie en uitzonderlijk comfort combineert in het hart van Brussel. U profiteert van snelle toegang tot het openbaar vervoer, een ideale ligging vlakbij het Tour & Taxis-park en talrijke winkels en voorzieningen op een steenworp afstand. Ontsnap aan de drukte in het comfort van uw eigen huis en geniet tegelijkertijd ten volle van de dynamiek van uw wijk.
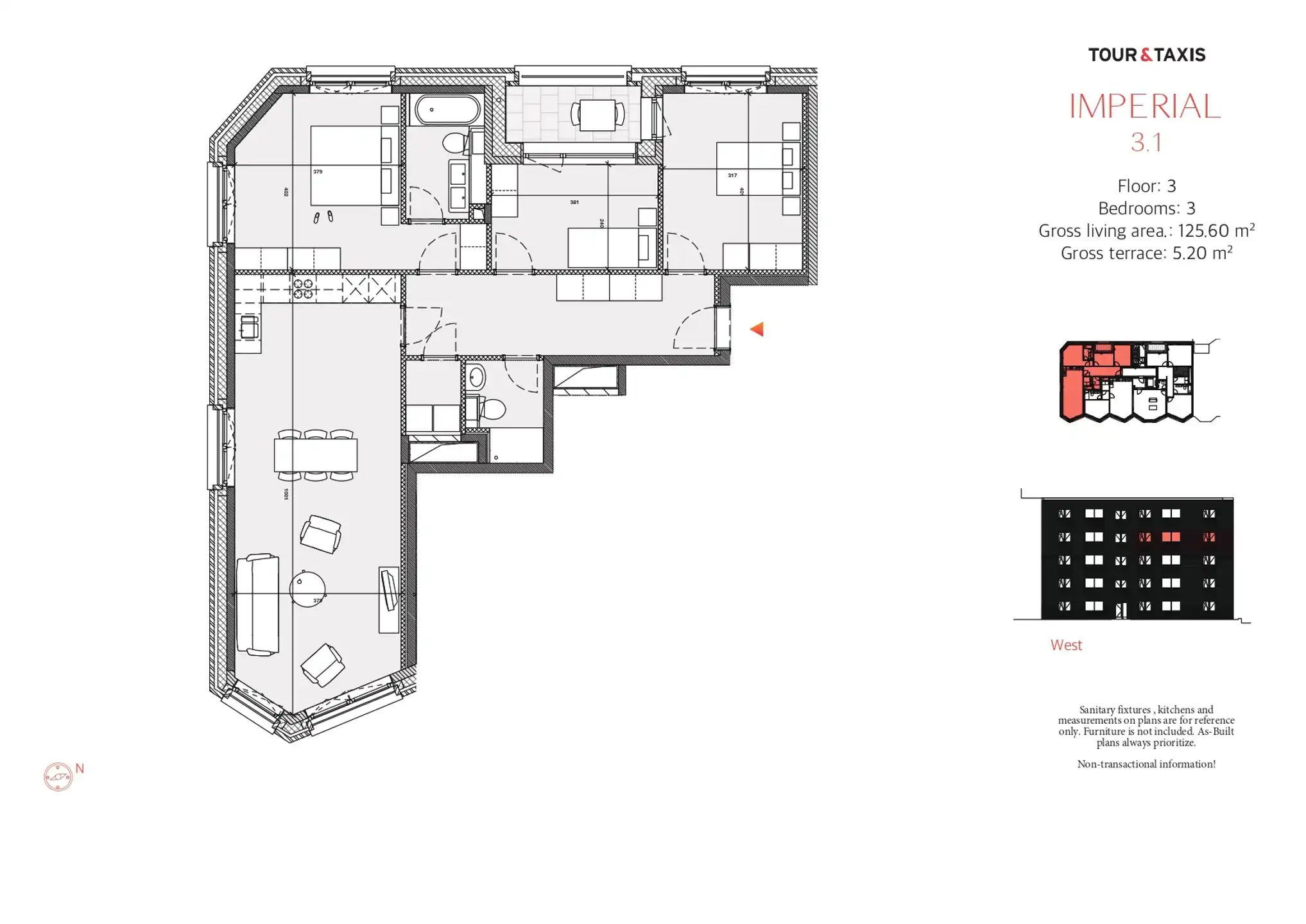
Dit lichte en ruime driekamerappartement van ±125 m², beschikbaar voor eerste bewoning, is gelegen in een modern gebouw met lift. Het appartement biedt royale en gezellige ruimtes en bestaat uit een inkomhal die leidt naar een ruime woonkamer van ±38 m², een volledig uitgeruste open keuken, een master bedroom van ±15 m² met aangrenzende badkamer, 2 slaapkamers van ±12 m² en 9 m² met toegang tot het terras, een doucheruimte en een technische ruimte met wasruimte.
Naast deze voorzieningen beschikt het appartement over een eigen kelder en een gemeenschappelijke fietsenstalling. Technisch gezien is het uitgerust met een dubbelstroomventilatiesysteem en dubbele beglazing, wat een laag energieverbruik garandeert.
Kosten: voorschot van 150 €/maand (verwarming - gemeenschappelijke kosten)
Beschikbaar vanaf 01/07/2026
Geschatte EPC: A
Afmetingen ter indicatie.
Vertaald met DeepL.com (gratis versie)
Dit lichte en ruime driekamerappartement van ±125 m², beschikbaar voor eerste bewoning, is gelegen in een modern gebouw met lift. Het appartement biedt royale en gezellige ruimtes en bestaat uit een inkomhal die leidt naar een ruime woonkamer van ±38 m², een volledig uitgeruste open keuken, een master bedroom van ±15 m² met aangrenzende badkamer, 2 slaapkamers van ±12 m² en 9 m² met toegang tot het terras, een doucheruimte en een technische ruimte met wasruimte.
Naast deze voorzieningen beschikt het appartement over een eigen kelder en een gemeenschappelijke fietsenstalling. Technisch gezien is het uitgerust met een dubbelstroomventilatiesysteem en dubbele beglazing, wat een laag energieverbruik garandeert.
Kosten: voorschot van 150 €/maand (verwarming - gemeenschappelijke kosten)
Beschikbaar vanaf 01/07/2026
Geschatte EPC: A
Afmetingen ter indicatie.
Vertaald met DeepL.com (gratis versie)
BRUSSEL CENTRUM – Ontdek een prachtig appartement in de bloeiende wijk van het Maritiem Station. Gelegen in het prestigieuze project „Imperial“, dat elegantie en uitzonderlijk comfort combineert in het hart van Brussel. U profiteert van snelle toegang tot het openbaar vervoer, een ideale ligging vlakbij het Tour & Taxis-park en talrijke winkels en voorzieningen op een steenworp afstand. Ontsnap naar het comfort van uw eigen thuis terwijl u ten volle geniet van de dynamiek van uw wijk.
Dit lichte en ruime appartement met 3 slaapkamers van ±125 m² is als volgt ingedeeld:
Op de 3e verdieping – I3.1
Inkomhal
Doucheruimte (douche, wastafel, toilet)
Technische ruimte met wasruimte
Woonkamer van ±38 m²
Volledig ingerichte open keuken
Ouderslaapkamer met een slaapkamer van ±15 m² en badkamer (bad, dubbele wastafel, toilet)
2 slaapkamers van ±12 m² en ±9 m² met toegang tot het terras
Kelder nr. C12
Gemeenschappelijke fietsenstalling
Tweezijdige ventilatie en dubbele beglazing
Kosten: voorschot van 150 €/maand (verwarming - gemeenschappelijke kosten)
Beschikbaar vanaf 01/07/2026
Geschatte EPC-score A
Dit lichte en ruime appartement met 3 slaapkamers van ±125 m² is als volgt ingedeeld:
Op de 3e verdieping – I3.1
Inkomhal
Doucheruimte (douche, wastafel, toilet)
Technische ruimte met wasruimte
Woonkamer van ±38 m²
Volledig ingerichte open keuken
Ouderslaapkamer met een slaapkamer van ±15 m² en badkamer (bad, dubbele wastafel, toilet)
2 slaapkamers van ±12 m² en ±9 m² met toegang tot het terras
Kelder nr. C12
Gemeenschappelijke fietsenstalling
Tweezijdige ventilatie en dubbele beglazing
Kosten: voorschot van 150 €/maand (verwarming - gemeenschappelijke kosten)
Beschikbaar vanaf 01/07/2026
Geschatte EPC-score A
Energie
Zelfcheck
Op de kaart

Financieel
| Prijs | |
|---|---|
| Maandelijkse kosten | € 150 |
Bijkomende info
Gebouw
| Bouwjaar | 2024 |
|---|---|
| Staat | Nieuw |
| Bewoonbaar (m²) | 125 |
| Verdieping | 3 |
| Gevels | 3 |
| Gevelbreedte | 19 |
| Badkamers | 2 |
| Slaapkamers | 3 |
| Verdiepingen | 4 |
| Parkeerplaatsen | 0 |
| Doucheruimtes | 1 |
| Toiletten | 2 |
Faciliteiten
| Type vloer | |
|---|---|
| Keuken uitrusting | Luxueus uitgerust |
| Elektrisch keuringsattest | Ja |
Perceel
| Overstromingsgevoelig | Geen |
|---|---|
| Tuin oppervlakte (m²) | 0 |
| Oriëntatie voorgevel | Oost |
Vergunning
| Vergunning | Geen beschikbaar |
|---|---|
| Verkavelingsvergunning | Geen beschikbaar |
Uitrusting
| Geschikt voor rolstoelgebruikers | Ja |
|---|---|
| Parking | Nee |
| Garage | Nee |
| Kelder | Ja |
| Tuin | Nee |
| Terras | Ja |
| Lift | Ja |
| Wateraansluiting | Ja |
| Elektriciteitsaansluiting | Ja |
| Zwembad | Nee |
| Zwemvijver | Nee |
| Videofoon | Ja |
Een pand van
TREVI GROUP
Snelheid en zekerheid: een professional tot uw dienst
Als geïntegreerde groep actief op de residentiële en bedrijfsvastgoedmarkt biedt Groep TREVI een volledig dienstenpakket aan, gaande van verkoop of verhuur over privatief beheer tot syndicusdiensten, property management of vastgoedexpertise. Gesterkt door zijn 250 medewerkers en 33 TREVI Partners, biedt Groep TREVI zijn diensten aan in heel Belgïe!
6277122
Leer meer over vastgoed
23 March 2026
Op Spotto zoeken als een pro: 10 slimme tips
26 October 2025
Fake huuradvertenties op Facebook
06 July 2025
Wie betaalt herstellingen aan de huurwoning?
01 July 2025