WOLUWE GATE: kantoren te huur vanaf 452m²
Een pand van CEUSTERS
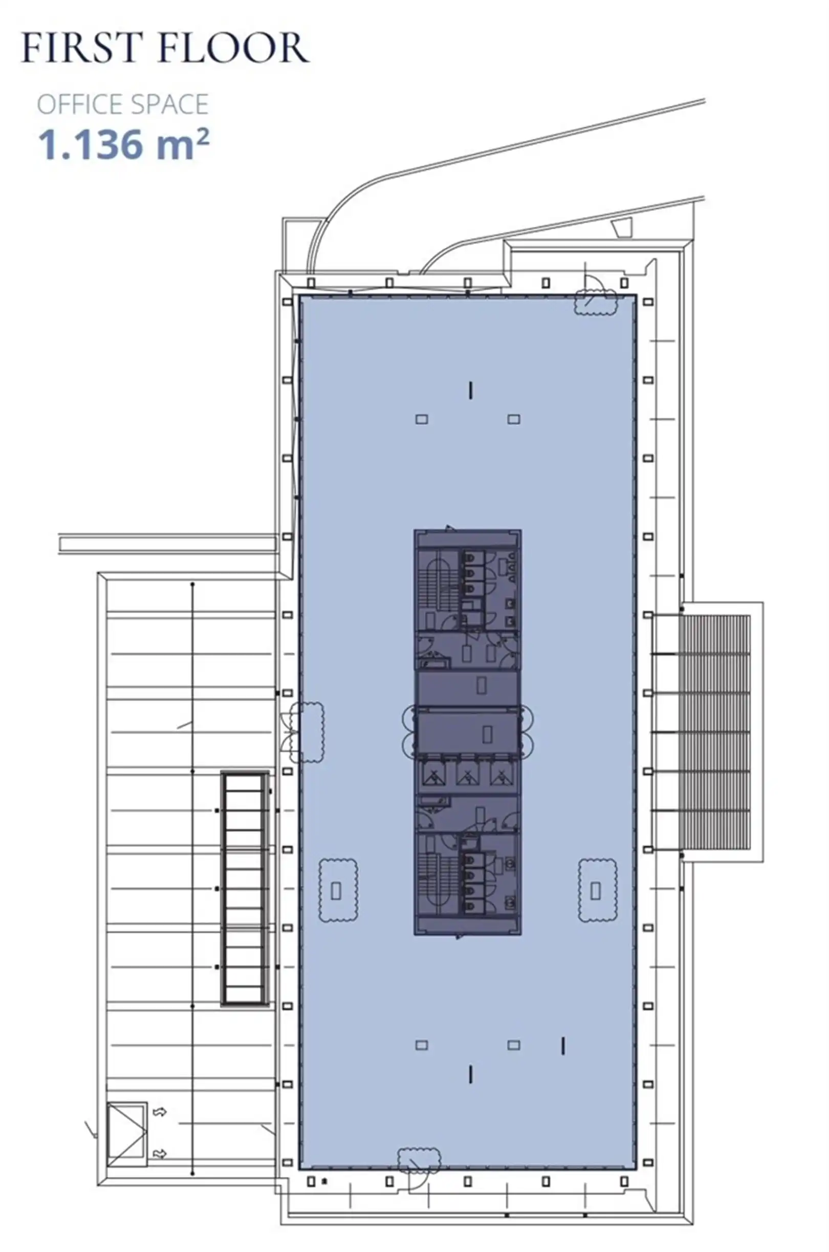
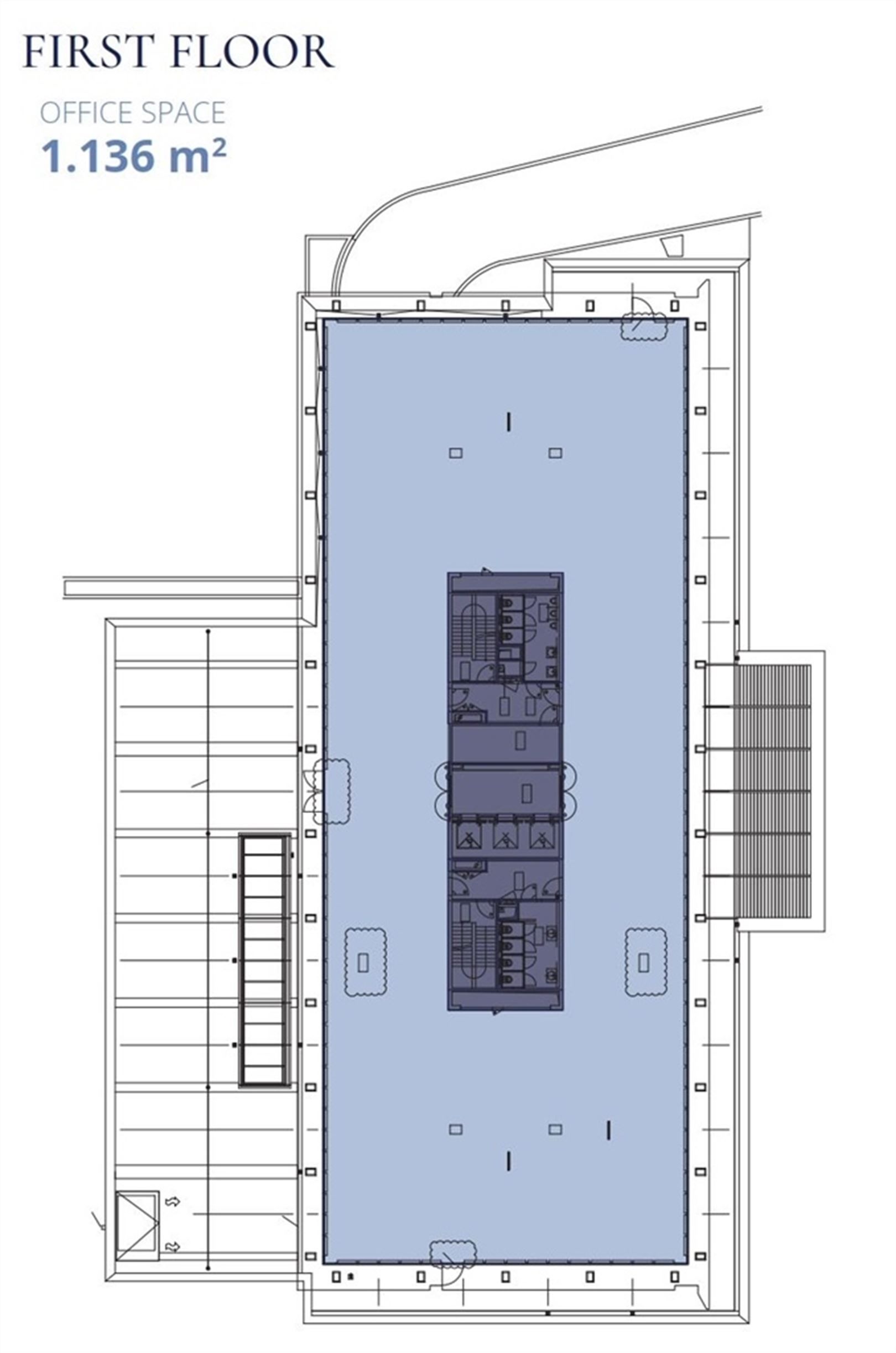
Overzicht
- 452 m² bewoonbaar
Beschrijving
WOLUWE GATE
Is gelegen in een van de meest aangename buurten van Brussel langs de prestigieuze Woluwelaan en Tervurenlaan, tegenover het rustige Woluwepark en het Bronpark.
De Tervurenlaan is de hoofdas naar het hart van de Europese Wijk, de Woluwelaan is een directe connectie naar de ring en Brussels Airport.
Woluwe Gate, dat volledig gerenoveerd werd en geüpdatet is met de laatste technieken, heeft een totale oppervlakte van +/- 8.900 m² kantoren verspreid over een gelijkvloers en 6 ruime, lichtrijke verdiepingen.
Er is veel natuurlijke lichtinval dankzij de ramen over de verschillende gevels. Het gebouw heeft een standingsvolle uitstraling en draagt bij tot een aangename werkomgeving.
Woluwe Gate heeft een uitzonderlijke locatie ten zuid-oosten van de Europese Wijk. Woluwe Gate situeert zicht op de hoek van de Woluwelaan en de Tervurenlaan.
U kan files richting Brussel centrum vermijden door de Woluwelaan te nemen en parking zoeken is geen stresserende ervaring dankzij de ruime ondergrondse parking.
Met een tramhalte voor het gebouw, kan men het gebouw gemakkelijk bereiken op 5 minuten wandelen of het centrum van Brussel intrekken. Deze locatie naast de Tervurenlaan zorgt ervoor dat het centrum van Brussel gemakkelijk te bereiken is via metro Montgomery.
In de dichte nabijheid vindt men meerdere bars, restaurants en supermarkten. Het gekende Woluwe Shopping ligt op slechts 1 km van Woluwe Gate. Het Woluwepark en het Bronpark bieden een groene omgeving waar men kan wandelen of lopen.
Provisie gemeenschappelijke lasten: 39€/m²/jaar (receptie service, onderhoud parking, sneeuwruimen, groenonderhoud, onderhoud van ramen, onderhoud van technische installaties, brandveiligheid, afvalinzameling, energieverbruik van gemeenschappelijke ruimtes, brandverzekering).
Provisie onroerende voorheffing: 33€/m²/jaar
Provisie regionale belasting: 11€/m²/jaar
Provisie stedelijke belasting: 7€/m²/jaar
***********
Niet wat u zoekt?
Bezoek onze website: www.ceusters.be of contacteer ons onmiddellijk om een gepersonaliseerde selectie te ontvangen: 02/511.05.60 - office@ceusters.be
***********
Energie
- E-peil: E0
- Beglazing: Onbekend
Op de kaart

Financieel
Maandelijkse kosten | € 0 |
---|---|
Kadastraal inkomen (niet geïndexeerd) | € 0 |
Kadastraal inkomen (geïndexeerd) | € 0 |
Bijkomende info
Gebouw
Bouwcertificaat | Nee |
---|---|
Bewoonbaar (m²) | 452 |
Verdieping | 0 |
Badkamers | 0 |
Slaapkamers | 0 |
Verdiepingen | 0 |
Garages | 0 |
Parkeerplaatsen | 0 |
Doucheruimtes | 0 |
Toiletten | 0 |
Faciliteiten
Elektrisch keuringsattest | Ja |
---|
Perceel
Overstromingsgevoelig | Geen |
---|---|
Voorkeurrecht | Nee |
Bebouwde oppervlakte (m²) | 0 |
Tuin oppervlakte (m²) | 0 |
Oppervlakte terras (m²) | 0 |
Uitrusting
Investeringspand | Nee |
---|---|
Geschikt voor praktijk | Nee |
Parking | Nee |
Garage | Nee |
Thuiskantoor | Nee |
Kelder | Nee |
Zolder | Nee |
Tuin | Nee |
Terras | Nee |
Lift | Nee |
Rioolaansluiting | Ja |
Gasaansluiting | Ja |
Wateraansluiting | Ja |
Elektriciteitsaansluiting | Ja |
TV aansluiting | Ja |
Internetaansluiting | Ja |
Telefoonaansluiting | Ja |
Appartementsblok
Naam residentie | WOLUWE GATE |
---|---|
Lift | Nee |