WOOD HUB - vanaf 306 m²
Een pand van CEUSTERS
Jouw zoektocht
Overzicht
- 531.53 m² bewoonbaar
Beschrijving
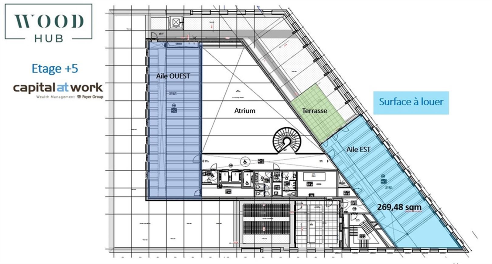
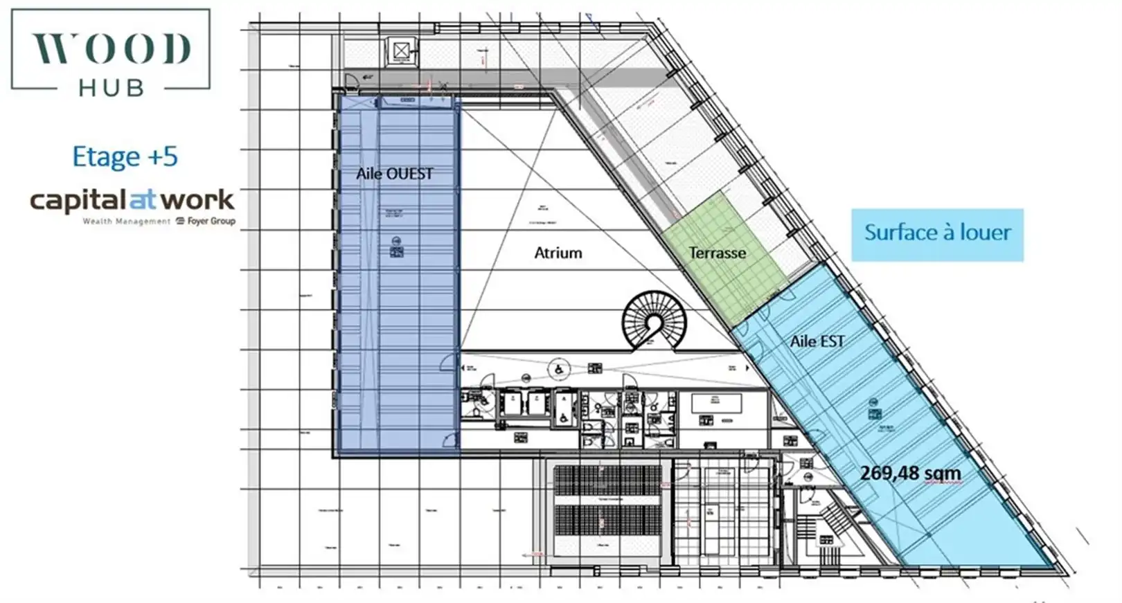
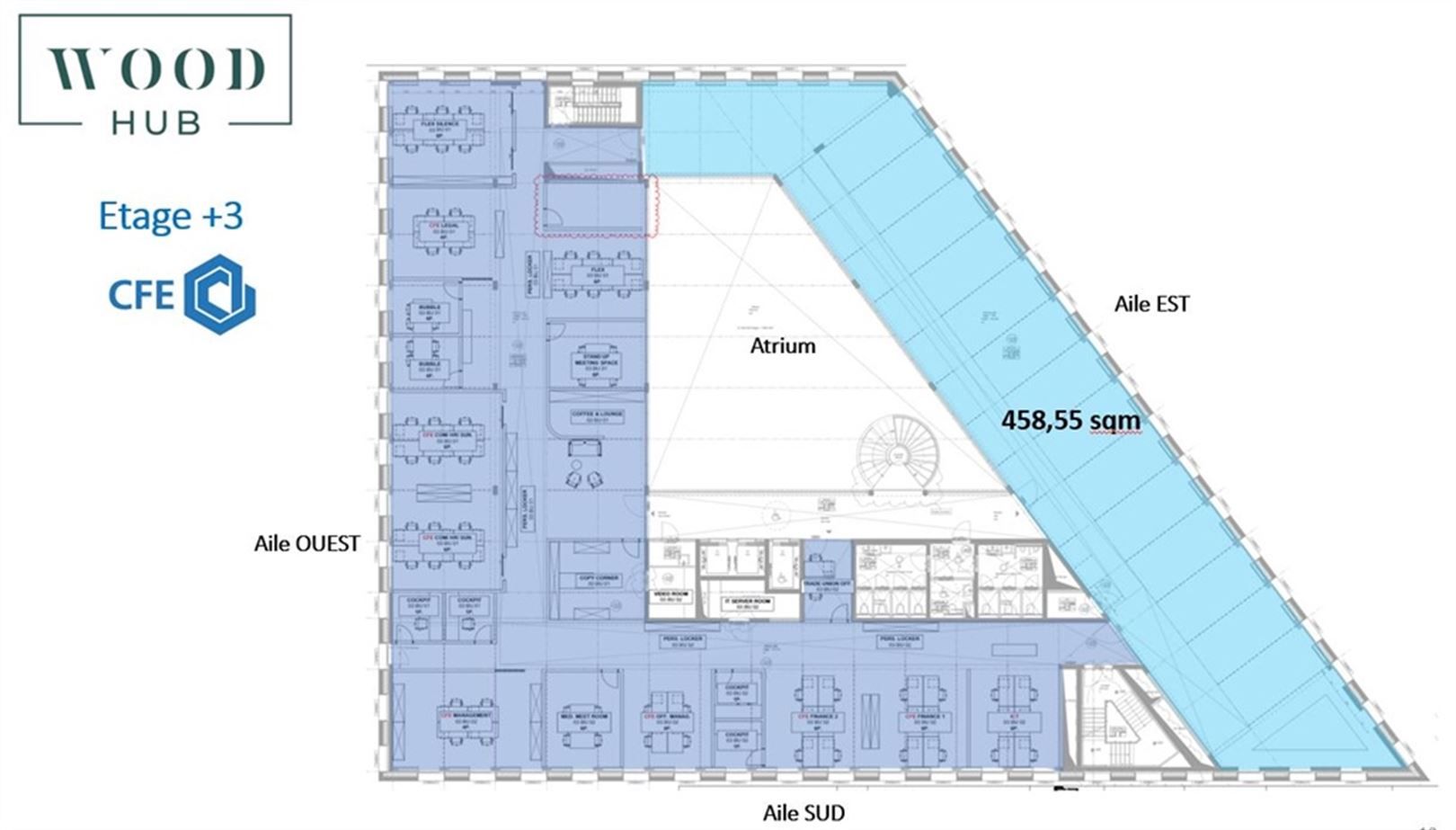
WOOD HUB
Een kantorencomplex in de laatste bouwfase, gelegen aan de ingang van Brussel in de buurt van Herrmann Debroux (aflevering in 2023).
Het complex bestaat uit ongeveer 6.700m² gemengd hout/beton kantoorruimte rond een centraal atrium en heeft een iconische, eigentijdse architectuur (Architect: Archi 2000).
Het zal voldoen aan alle nieuwe milieunormen, bijvoorbeeld door een 'NZEB' (Nearly Zero Energy) gebouw te zijn, d.w.z. zonder fossiele brandstoffen, dat voldoet aan de criteria van de toekomst en de meest veeleisende certificeringen dankzij een innovatief ontwerp en geothermische energie.
Certificaten: BREEAM outstanding & WELL Platinum.
Verkeersverbindingen: Metrostation aan de voet van het gebouw (DEMEY), gedeelde parkeerplaatsen, gedeelde elektrische auto's, fietsenstalling, stadsingang via de ringweg en de E-411.
Diensten: Een gedeelde dienstenruimte op de begane grond: vergaderzalen, multifunctionele ruimte, co-working, restaurant, buitenterras ...en beheerd door een gespecialiseerd bedrijf.
Omgeving: Tal van winkels, diensten en groene ruimten in de buurt (winkels, restaurants, park Rouge Cloître, bos van Soignes, enz.).
*********
Niet wat u zoekt ?
Bezoek onze website: www.ceusters.be of contacteer ons onmiddellijk om een gepersonaliseerde selectie te ontvangen: office@ceusters.be
*********
Energie
- E-peil: E0
- Beglazing: Onbekend
Op de kaart

Financieel
| Prijs | |
|---|---|
| Maandelijkse kosten | € 0 |
| Kadastraal inkomen (niet geïndexeerd) | € 0 |
| Kadastraal inkomen (geïndexeerd) | € 0 |
Bijkomende info
Gebouw
| Bouwcertificaat | Nee |
|---|---|
| Bewoonbaar (m²) | 531.53 |
| Verdieping | 0 |
| Badkamers | 0 |
| Slaapkamers | 0 |
| Verdiepingen | 0 |
| Garages | 0 |
| Parkeerplaatsen | 0 |
| Doucheruimtes | 0 |
| Toiletten | 0 |
Faciliteiten
| Elektrisch keuringsattest | Nee |
|---|
Perceel
| Overstromingsgevoelig | Geen |
|---|---|
| Voorkeurrecht | Ja |
| Bebouwde oppervlakte (m²) | 0 |
| Tuin oppervlakte (m²) | 0 |
| Oppervlakte terras (m²) | 0 |
Vergunning
| Vergunning | Geen beschikbaar |
|---|---|
| Verkavelingsvergunning | Geen beschikbaar |
Uitrusting
| Investeringspand | Nee |
|---|---|
| Geschikt voor praktijk | Nee |
| Parking | Nee |
| Garage | Nee |
| Thuiskantoor | Nee |
| Kelder | Nee |
| Zolder | Nee |
| Tuin | Nee |
| Terras | Nee |
| Lift | Nee |
| Rioolaansluiting | Nee |
| Gasaansluiting | Nee |
| Wateraansluiting | Nee |
| Elektriciteitsaansluiting | Nee |
| TV aansluiting | Nee |
| Internetaansluiting | Nee |
| Telefoonaansluiting | Nee |
Appartementsblok
| Naam residentie | WOOD HUB |
|---|---|
| Lift | Nee |