BRAND WHITLOCK 87: kantoren vanaf 266m²
Prijs op aanvraag
Een pand van CEUSTERS
Jouw zoektocht
Overzicht
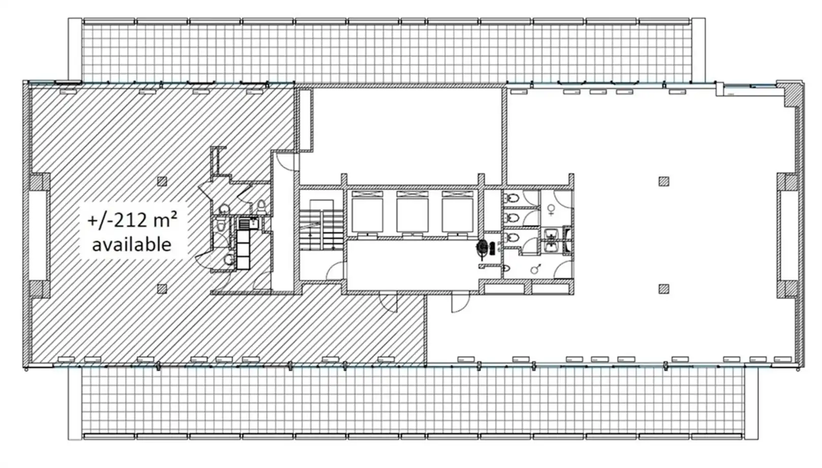
- 291 m² bewoonbaar
Beschrijving
BRAND WHITLOCK 87
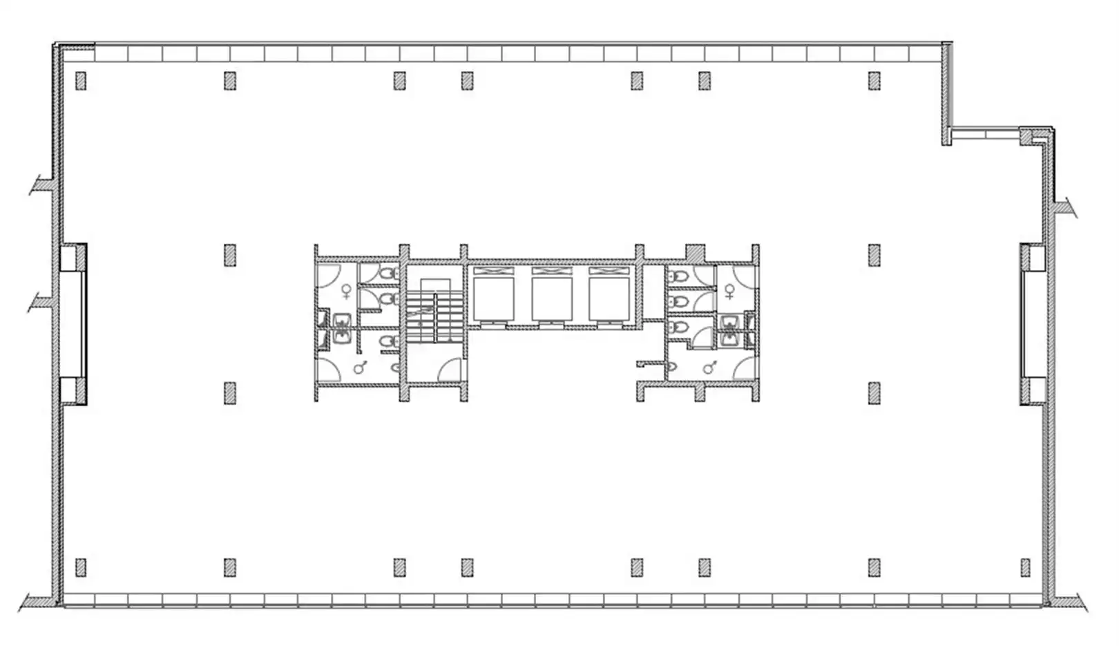
Brand Whitlock 87 is een modern en recent vernieuwd kantoorgebouw op een toplocatie aan de prestigieuze Boulevard Brand Whitlock in Sint-Lambrechts-Woluwe. Het gebouw biedt circa 5.946 m² hoogwaardige kantoorruimte, flexibel opdeelbaar vanaf 207 m² tot 945 m² per verdieping.
De recente renovaties zorgen voor een hedendaagse, comfortabele en energie-efficiënte werkomgeving, met volledige airconditioning, moderne technieken, beveiligde toegangscontrole en een opvallende gevel die uitstekende zichtbaarheid garandeert.
Op de 7e verdieping bevindt zich een kwalitatieve coworkingruimte met vergaderzalen en dagkantoren, ideaal voor bedrijven die flexibiliteit en hybride werken combineren.
Gelegen in een dynamische zakelijke buurt met financiële spelers, business services, technologiebedrijven en Europese instellingen, biedt Brand Whitlock 87 een professionele en toekomstgerichte omgeving voor ambitieuze ondernemingen. Het is een ideale werkomgeving die, dankzij de nabijheid van de Brusselse Ring geniet van een uitstekende bereikbaarheid met de wagen. Brussels Airport ligt op 10 minuten rijden en tram- en bushaltes bevinden zich vlak voor de deur.
Momenteel zijn er beschikbare ruimtes van het 2e tot het 6e verdiep inclusief, vanaf 266m². Op het gelijkvloers is er handelsruimte van 207m². Er is ook voldoende archiefruimte en parking ondergronds.
*********
Bezoek onze website: www.ceusters.be of contacteer ons onmiddellijk voor meer informatie: office@ceusters.be
*********
Energie
![]() |
- E-peil: E0
- Beglazing: Onbekend
Op de kaart

Financieel
| Maandelijkse kosten | € 0 |
|---|---|
| Kadastraal inkomen (niet geïndexeerd) | € 0 |
| Kadastraal inkomen (geïndexeerd) | € 0 |
Bijkomende info
Gebouw
| Bouwcertificaat | Nee |
|---|---|
| Bewoonbaar (m²) | 291 |
| Verdieping | 0 |
| Badkamers | 0 |
| Slaapkamers | 0 |
| Verdiepingen | 0 |
| Garages | 0 |
| Parkeerplaatsen | 0 |
| Doucheruimtes | 0 |
| Toiletten | 0 |
Faciliteiten
| Elektrisch keuringsattest | Ja |
|---|
Perceel
| Overstromingsgevoelig | Geen |
|---|---|
| Voorkeurrecht | Nee |
| Bebouwde oppervlakte (m²) | 0 |
| Tuin oppervlakte (m²) | 0 |
| Oppervlakte terras (m²) | 0 |
Uitrusting
| Investeringspand | Nee |
|---|---|
| Geschikt voor praktijk | Nee |
| Parking | Nee |
| Garage | Nee |
| Thuiskantoor | Nee |
| Kelder | Nee |
| Zolder | Nee |
| Tuin | Nee |
| Terras | Nee |
| Lift | Nee |
| Rioolaansluiting | Nee |
| Gasaansluiting | Nee |
| Wateraansluiting | Nee |
| Elektriciteitsaansluiting | Nee |
| TV aansluiting | Nee |
| Internetaansluiting | Nee |
| Telefoonaansluiting | Nee |
Appartementsblok
| Naam residentie | BRAND WHITLOCK 87-93 |
|---|---|
| Lift | Nee |
