In optie Nieuw
Duplex met 2 ruime slaapkamers, terras en garage
Een pand van Allur vastgoed
Overzicht
- 115 m² bewoonbaar
- 2 Slaapkamer(s)
- 1 Badkamer(s)
- 2 Toilet(ten)
- 1 Garage(s)
Beschrijving
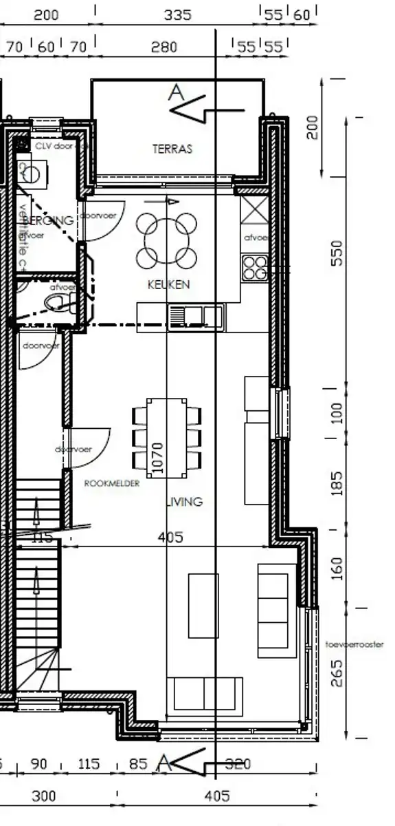
Om een afspraak in te plannen, gelieve uw aanvraag te mailen naar info@allur.be. Residentie Allegria 1: duplex gelegen op de eerste en tweede verdieping van de residentie met afzonderlijke inkom. Het appartement wordt gemeubeld verhuurd. Voor indeling: zie bijgevoegde plannen: traphal met hal en afzonderlijk toilet, leefkamer met open keuken en toegang tot aangenaam terras, berging / wasplaats. Traphal gaande naar verdieping 2 met nachthal die toegang geeft tot de 2 ruime slaapkamers met inbouwkasten en badkamer. Het appartement beschikt nog over een ruime bergzolder, bereikbaar via uittrekbare trap. Op verdieping -1 bevindt zich de gesloten garage. Er is tevens parkeerplaats voor het gebouw. Onmiddellijk beschikbaar, individuele tellers voor nutsvoorzieningen. Gelegen op de Ninoofsesteenweg, met goede verbinding naar buurtwinkels, openbaar vervoer en andere faciliteiten.
Energie
![]() |
- EPC Certificaat: 23016-G-874.1/12/4/240/EP13566/A003/D01/SD001
- Energieverbruik: 95 kWh/m²/jaar
Zelfcheck
Op de kaart

Downloads
Financieel
| Prijs |
|---|
Bijkomende info
Gebouw
| Bouwjaar | 2016 |
|---|---|
| Staat | Goed onderhouden |
| Bewoonbaar (m²) | 115 |
| Verdieping | 1 |
| Gevels | 3 |
| Badkamers | 1 |
| Slaapkamers | 2 |
| Verdiepingen | 2 |
| Garages | 1 |
| Parkeerplaatsen | 0 |
| Toiletten | 2 |
Faciliteiten
| Type vloer | |
|---|---|
| Keuken uitrusting | Goed uitgerust |
Perceel
| Tuin oppervlakte (m²) | 0 |
|---|---|
| Oriëntatie terras | Zuid |
Vergunning
| Vergunning | Geen beschikbaar |
|---|---|
| Verkavelingsvergunning | Geen beschikbaar |
Uitrusting
| Parking | Nee |
|---|---|
| Garage | Ja |
| Tuin | Nee |
| Terras | Ja |
| Gasaansluiting | Ja |
| Wateraansluiting | Ja |
| Elektriciteitsaansluiting | Ja |
| TV aansluiting | Ja |
| Telefoonaansluiting | Ja |
Een pand van
Allur vastgoed
Passie voor vastgoed en mensen
allur verkoopt geen huis, wel een thuis...
Welkom bij allur vastgoed, een residentieel vastgoedkantoor met een eigentijdse, persoonlijke, efficiënte aanpak en een focus op de vastgoedmarkt in de westrand rond Brussel.
Discretie, transparante communicatie, ervaring, marktkennis en een persoonlijke benadering zorgen voor een succesvolle vastgoedsamenwerking.
Wenst u te kopen, verkopen, huren of verhuren? Bij allur bent u aan het juiste adres voor een professionele begeleiding van A tot Z.
Leer meer over vastgoed
26 October 2025
Fake huuradvertenties op Facebook
06 July 2025
Wie betaalt herstellingen aan de huurwoning?
01 July 2025
Ik wil mijn huurcontract opzeggen. Hoe doe ik dit?
20 April 2025
