UNIEKE KANTOREN MET PARKING EN VERSCHILLENDE OPPERVLAKTES
Een pand van Delestré Immobiliën
Favoriet
Jouw zoektocht
Jouw scoretabel voor dit pand
Aan het laden...
Jouw geplande bezichtigingen
Aan het laden...
Overzicht
Beschrijving
Op zoek naar een inspirerende werkplek met uitstraling? Dit uitzonderlijk commercieel gebouw langsheen de E40 (vlakbij ESSO GROOT-BIJGAARDEN ZUID) werd ontworpen door een gerenommeerde architect.
Dit complex werd recent hoogwaardig en dynamisch compleet GERENOVEERD.
WIJ BIEDEN OPLOSSINGEN OP MAAT VAN UW ONDERNEMING: de beschikbare kantoorruimtes zijn flexibel opdeelbaar en variëren tussen 200 m² en 1.405 m², waardoor het gebouw geschikt is voor zowel kleine als grotere ondernemingen die op zoek zijn naar een kwalitatieve en toegankelijke werkomgeving.
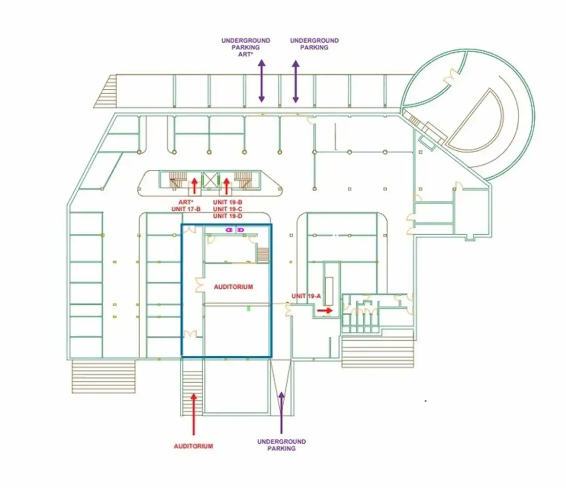
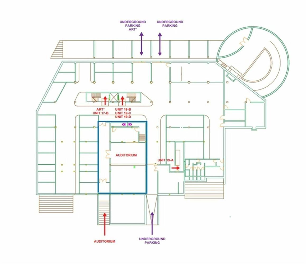
Het pand biedt kantoren, polyvalente ruimtes met een makkelijke bereikbaarheid, ruime parking met 40 plaatsen, logistieke OPSLAGmogelijkheden én een stijlvol AUDITORIUM met geavanceerde voorzieningen, ideaal voor presentaties, meetings en evenementen. De ruimtes kenmerken zich door een hedendaagse uitstraling met een spel van transparantie en flexibiliteit dankzij innovatieve oplossingen zoals verstelbare glazen wanden.
Beschikbare units variëren in afmetingen met combinatiemogelijkheden en parkeerplaatsen zowel op het dak als in een ondergrondse garage zijn mogelijk.
De strategische ligging vlak bij het knooppunt van de Brusselse Ring en de E40 zorgt voor uitstekende zichtbaarheid en bereikbaarheid.
Kortom, dit gebouw is méér dan zomaar kantoorruimte; het biedt een unieke omgeving die representatief, functioneel én comfortabel is, aangepast aan hedendaagse bedrijfsnoden.
- Zonnepanelen.
- Nieuwe ramen met HR BEGLAZING.
- Volledig vernieuwd elektriciteitsnetwerk.
- Efficiënte verwarmings- en koelsystemen.
Dit complex werd recent hoogwaardig en dynamisch compleet GERENOVEERD.
WIJ BIEDEN OPLOSSINGEN OP MAAT VAN UW ONDERNEMING: de beschikbare kantoorruimtes zijn flexibel opdeelbaar en variëren tussen 200 m² en 1.405 m², waardoor het gebouw geschikt is voor zowel kleine als grotere ondernemingen die op zoek zijn naar een kwalitatieve en toegankelijke werkomgeving.
Het pand biedt kantoren, polyvalente ruimtes met een makkelijke bereikbaarheid, ruime parking met 40 plaatsen, logistieke OPSLAGmogelijkheden én een stijlvol AUDITORIUM met geavanceerde voorzieningen, ideaal voor presentaties, meetings en evenementen. De ruimtes kenmerken zich door een hedendaagse uitstraling met een spel van transparantie en flexibiliteit dankzij innovatieve oplossingen zoals verstelbare glazen wanden.
Beschikbare units variëren in afmetingen met combinatiemogelijkheden en parkeerplaatsen zowel op het dak als in een ondergrondse garage zijn mogelijk.
De strategische ligging vlak bij het knooppunt van de Brusselse Ring en de E40 zorgt voor uitstekende zichtbaarheid en bereikbaarheid.
Kortom, dit gebouw is méér dan zomaar kantoorruimte; het biedt een unieke omgeving die representatief, functioneel én comfortabel is, aangepast aan hedendaagse bedrijfsnoden.
- Zonnepanelen.
- Nieuwe ramen met HR BEGLAZING.
- Volledig vernieuwd elektriciteitsnetwerk.
- Efficiënte verwarmings- en koelsystemen.
Energie
- E-peil: E0
- Beglazing: Standaard dubbel
Op de kaart

Financieel
| Prijs | |
|---|---|
| Maandelijkse kosten | € 0 |
Bijkomende info
Gebouw
| Renovatie jaar | 2024 |
|---|---|
| Staat | Goed onderhouden |
| Verdieping | 0 |
| Badkamers | 0 |
| Slaapkamers | 0 |
| Verdiepingen | 0 |
| Garages | 0 |
| Parkeerplaatsen | 40 |
| Toiletten | 0 |
Faciliteiten
| Beglazing | Standaard dubbel |
|---|---|
| Septische tank | Nee |
Perceel
| Bebouwde oppervlakte (m²) | 0 |
|---|
Vergunning
| Verkavelingsvergunning | Geen beschikbaar |
|---|
Uitrusting
| Investeringspand | Nee |
|---|---|
| Parking | Ja |
| Garage | Nee |
| Lift | Ja |
| Rioolaansluiting | Ja |
| Gasaansluiting | Nee |
| Wateraansluiting | Ja |
| Elektriciteitsaansluiting | Ja |
| Internetaansluiting | Ja |
| Telefoonaansluiting | Ja |
| Zonnepanelen | Nee |
| Zonneboiler | Nee |
| Alarm | Nee |
| Videofoon | Nee |
| Grondwaterput | Nee |
Appartementsblok
| Lift | Ja |
|---|---|
| Intercom | Nee |
Een pand van
Delestré Immobiliën
Vastgoedkantoor Delestré Immo
Delestré Immobiliën is een vastgoedkantoor met vestigingen te Ninove en Aalst en is al meer dan 30 jaar actief op de vastgoedmarkt en dit over heel België wat de verkoop en de verhuur van zowel commercieel als residentieel vastgoed betreft.
Van marktconforme waardebepaling tot actieve opvolging, al het nodige wordt gedaan voor een vlotte verkoop of verhuur van uw eigendom tegen de beste prijs.
Steeds grondig, degelijk en met kennis van zaken.
Onze jarenlange ervaring garandeert een succesvolle afloop van elk vastgoedverhaal.
Wilt u uw commercieel, residentieel vastgoed of nieuwbouw verkopen of verhuren?
Of bent u op zoek naar een nieuwe woonst of een nieuwe vestiging voor uw onderneming?
Neem dan vandaag vrijblijvend contact op.
Wij beantwoorden al uw vragen met plezier!
Ontdek ons op deze portaalsite maar ook op http://www.immodelestre.be of https://www.facebook.com/delestreimmo/
T: +32 (0)54 33 62 52 of e-mail: info@immodelestre.be
spir7615
Leer meer over vastgoed
04 January 2026
Zoek je een kantoor, een magazijn of… iets ertussenin? Bedrijfsvastgoed uitgelegd
05 November 2024
Bedrijfsvastgoed in transitie: ontdek de toekomst van werkplekken
16 October 2024
Opbrengsteigendom: een slim pad naar passief inkomen en vermogensgroei
09 September 2024