Nieuw Virtual tour
TERNAT: Woning met 2 slpks, pal in het centrum
Een pand van Immo-Expert & Co
Overzicht
- 141.01 m² bewoonbaar
- 72 m² grond
- 2 Slaapkamer(s)
- 1 Badkamer(s)
- 2 Toilet(ten)
Beschrijving
Welkom in deze charmante woning in Ternat, die comfort en stijl perfect combineert. Deze prachtige woning biedt een bewoonbare oppervlakte van 141,01 m² op een perceel van 72 m².
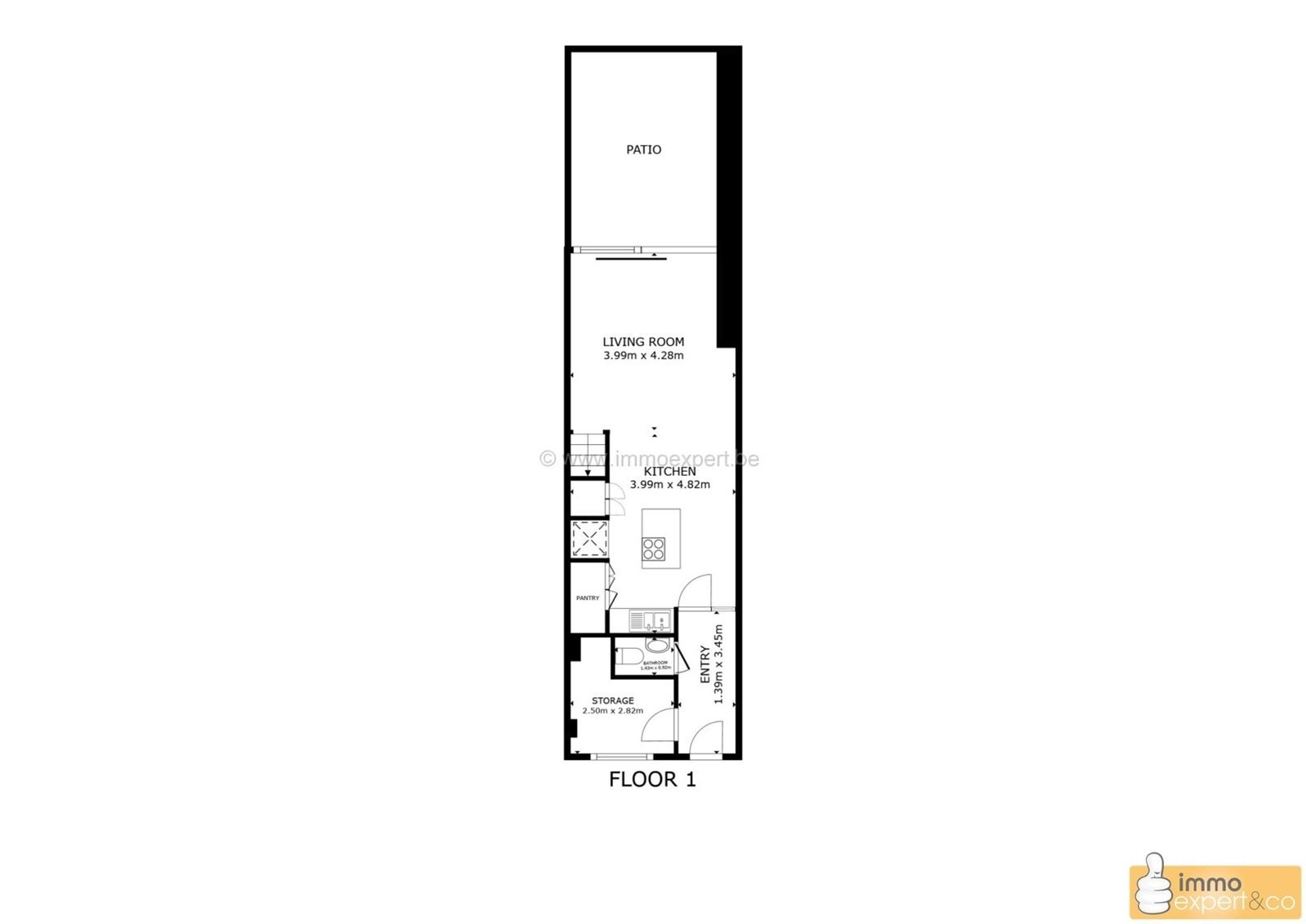
Bij binnenkomst wordt u verwelkomd in een lichte en moderne inkomhal die leidt naar de ruime keuken en woonkamer. De open keuken is voorzien van hoogwaardige inbouwapparatuur en een elegant kookeiland, wat het de perfecte plek maakt voor culinaire liefhebbers. De woonkamer geniet van veel natuurlijk licht dankzij de grote ramen, die tevens toegang bieden tot de rustige patio, ideaal voor buitenontspanning.
De woning beschikt over twee comfortabele slaapkamers. De hoofdslaapkamer, met een handige ingebouwde dressing, bevindt zich op de eerste verdieping naast de stijlvolle badkamer. Deze is uitgerust met een dubbele wastafel, een inloopdouche en een bad, wat voor een luxe ervaring zorgt.
Daarnaast is er op de begane grond een praktische berging en een apart toilet aanwezig.
Met zijn moderne afwerking, functionele indeling en centrale ligging, biedt deze woning een uitstekende woonervaring in Ternat. Mis deze unieke kans niet om in een smaakvolle en gezellige omgeving te wonen! Wil jij de nieuwe huurder zijn, dien dan zeker je kandidatuur in via: https://clee.be/nl/app/kandidaat-stellen/0885889914/380cc262-3074-f011-b481-6045bd878ff4
Bij binnenkomst wordt u verwelkomd in een lichte en moderne inkomhal die leidt naar de ruime keuken en woonkamer. De open keuken is voorzien van hoogwaardige inbouwapparatuur en een elegant kookeiland, wat het de perfecte plek maakt voor culinaire liefhebbers. De woonkamer geniet van veel natuurlijk licht dankzij de grote ramen, die tevens toegang bieden tot de rustige patio, ideaal voor buitenontspanning.
De woning beschikt over twee comfortabele slaapkamers. De hoofdslaapkamer, met een handige ingebouwde dressing, bevindt zich op de eerste verdieping naast de stijlvolle badkamer. Deze is uitgerust met een dubbele wastafel, een inloopdouche en een bad, wat voor een luxe ervaring zorgt.
Daarnaast is er op de begane grond een praktische berging en een apart toilet aanwezig.
Met zijn moderne afwerking, functionele indeling en centrale ligging, biedt deze woning een uitstekende woonervaring in Ternat. Mis deze unieke kans niet om in een smaakvolle en gezellige omgeving te wonen! Wil jij de nieuwe huurder zijn, dien dan zeker je kandidatuur in via: https://clee.be/nl/app/kandidaat-stellen/0885889914/380cc262-3074-f011-b481-6045bd878ff4
Energie
![]() |
- EPC Certificaat: 20250624-0003632372-RES-1
- Energieverbruik: 118 kWh/m²/jaar
- E-peil: E0
- Verwarming: Gas
- Beglazing: Standaard dubbel
Zelfcheck
Op de kaart

Financieel
| Prijs | |
|---|---|
| Maandelijkse kosten | € 0 |
| Kadastraal inkomen (niet geïndexeerd) | € 595 |
| Kadastraal inkomen (geïndexeerd) | € 0 |
Bijkomende info
Gebouw
| Bouwjaar | 1936 |
|---|---|
| Staat | Goed onderhouden |
| Bouwcertificaat | Nee |
| Bewoonbaar (m²) | 141.01 |
| Verdieping | 0 |
| Gevelbreedte | 4.6 |
| Badkamers | 1 |
| Slaapkamers | 2 |
| Verdiepingen | 3 |
| Garages | 0 |
| Parkeerplaatsen | 0 |
| Doucheruimtes | 0 |
| Toiletten | 2 |
Faciliteiten
| Keuken uitrusting | Luxueus uitgerust |
|---|---|
| Materiaal ramenomlijstingen | PVC |
| Beglazing | Standaard dubbel |
| Brandstof primaire verwarming | Gas |
| Elektrisch keuringsattest | Ja |
Perceel
| Overstromingsgevoelig | Geen |
|---|---|
| P-score | A |
| G-score | A |
| Voorkeurrecht | Nee |
| Totale oppervlakte (m²) | 72 |
| Bebouwde oppervlakte (m²) | 60 |
| Tuin oppervlakte (m²) | 0 |
| Oppervlakte terras (m²) | 17 |
| Oriëntatie tuin | Zuidwest |
Vergunning
| Vergunning | Geen beschikbaar |
|---|---|
| Verkavelingsvergunning | Geen beschikbaar |
Uitrusting
| Investeringspand | Nee |
|---|---|
| Geschikt voor praktijk | Nee |
| Parking | Nee |
| Garage | Nee |
| Thuiskantoor | Nee |
| Kelder | Nee |
| Zolder | Ja |
| Tuin | Nee |
| Terras | Ja |
| Lift | Nee |
| Rioolaansluiting | Ja |
| Gasaansluiting | Ja |
| Wateraansluiting | Ja |
| Elektriciteitsaansluiting | Ja |
| TV aansluiting | Ja |
| Internetaansluiting | Ja |
| Telefoonaansluiting | Ja |
Een pand van
Immo-Expert & Co
Uw on(t)roerend goed specialist
Immo Expert & Co is reeds 25 jaar een begrip in Ternat en heeft nu ook een nieuw thuiskantoor geopend in Gooik.
Klanten vertrouwen op ons omwille van onze ongeëvenaarde persoonlijke service en discretie.
Wij doen alles van A tot Z voor de verkoop en verhuur van uw pand.
Hierbij maken we gebruik van de nieuwste digitale technieken om alles in goede banen te leiden. Zo zijn wij het enige kantoor in de ruime regio dat een 3D virtuele toer aanbiedt voor elk pand in de portefeuille. Kandidaat kopers of huurders wandelen als het ware meteen rond in hun droomwoning!
Wenst u een vrijblijvende schatting van uw vastgoed of heeft u een vraag omtrent verkoop of verhuur , contacteer ons dan vandaag nog op 02/5810980 of mail ons op info@immoexpert.be.
GEMEENTEHUISSTRAAT 3 TERNAT
Leer meer over vastgoed
26 October 2025
Fake huuradvertenties op Facebook
06 July 2025
Wie betaalt herstellingen aan de huurwoning?
01 July 2025
Ik wil mijn huurcontract opzeggen. Hoe doe ik dit?
20 April 2025
