Nieuw
Duplex-appartement met extra zolderkamer + garagebox in het centrum!
€ 825 (+€ 75)
Een pand van Structura
Overzicht
- 96 m² bewoonbaar
- 2 Slaapkamer(s)
- 1 Badkamer(s)
- 2 Toilet(ten)
- 1 Garage(s)
Beschrijving
Wenst u een bezoek te brengen aan dit appartement, maak dan enkel een afspraak online 24/24 en 7/7 via de knop: "Bezoek plannen".
(enkel mogelijk op onze website via het 'open afspraken systeem)
Duplex-appartement met terras, 3e zolderkamer (via zoldertrap) en garagebox nabij centrum Opwijk!
Bent u op zoek naar een duplex appartement op een uitstekende locatie nabij het centrum van Opwijk?
Dit appartement biedt een combinatie van comfort, functionaliteit en een ideale ligging.
Eerste verdieping:
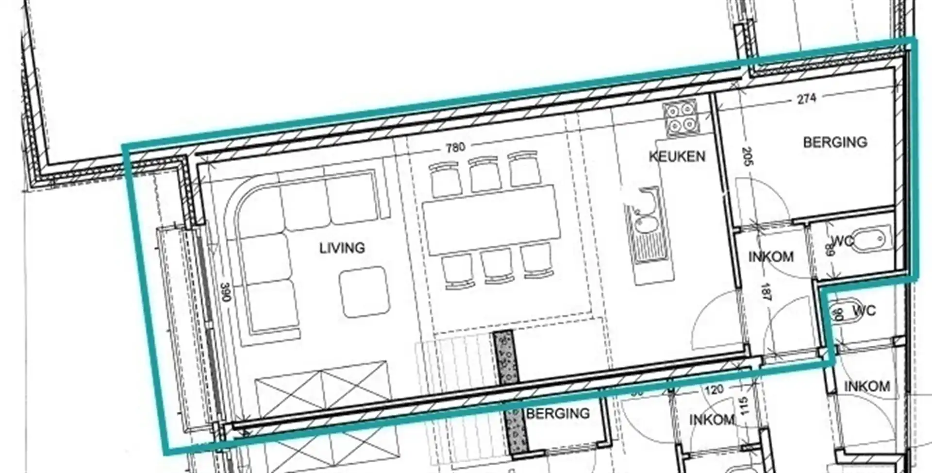
U komt binnen via een inkomhal met een apart gastentoilet en een handige wasberging.
De lichtrijke leefruimte met open keuken vormt het hart van het appartement.
Tweede verdieping:
De nachthal geeft toegang tot twee slaapkamers, een uitgeruste badkamer en een royaal terras waar u heerlijk kunt genieten van de buitenlucht.
Extra ruimte:
Via een zolderluik bereikt u een derde polyvalente, verwarmde ruimte, perfect in te richten als extra (logeer)slaapkamer, bureau of hobbykamer.
Garagebox verplicht bij te huren aan €75/maand. Gemeenschappelijke, provisionele lasten van €75/maand. CV op gas. Onmiddellijk vrij.
Extra troeven:
• Gemeenschappelijke fietsenberging.
• Energiezuinig met een EPC-label B (129).
• Elektriciteit is conform.
• Het appartement werd net volledig in het wit geschilderd!
Grijp deze unieke kans en ontdek de mogelijkheden van dit prachtige duplex appartement!
(enkel mogelijk op onze website via het 'open afspraken systeem)
Duplex-appartement met terras, 3e zolderkamer (via zoldertrap) en garagebox nabij centrum Opwijk!
Bent u op zoek naar een duplex appartement op een uitstekende locatie nabij het centrum van Opwijk?
Dit appartement biedt een combinatie van comfort, functionaliteit en een ideale ligging.
Eerste verdieping:
U komt binnen via een inkomhal met een apart gastentoilet en een handige wasberging.
De lichtrijke leefruimte met open keuken vormt het hart van het appartement.
Tweede verdieping:
De nachthal geeft toegang tot twee slaapkamers, een uitgeruste badkamer en een royaal terras waar u heerlijk kunt genieten van de buitenlucht.
Extra ruimte:
Via een zolderluik bereikt u een derde polyvalente, verwarmde ruimte, perfect in te richten als extra (logeer)slaapkamer, bureau of hobbykamer.
Garagebox verplicht bij te huren aan €75/maand. Gemeenschappelijke, provisionele lasten van €75/maand. CV op gas. Onmiddellijk vrij.
Extra troeven:
• Gemeenschappelijke fietsenberging.
• Energiezuinig met een EPC-label B (129).
• Elektriciteit is conform.
• Het appartement werd net volledig in het wit geschilderd!
Grijp deze unieke kans en ontdek de mogelijkheden van dit prachtige duplex appartement!
Energie
![]() |
- EPC Certificaat: 3424027
- Energieverbruik: 129 kWh/m²/jaar
- E-peil: E0
- Verwarming: Gas
- Beglazing: Standaard dubbel
Zelfcheck
Op de kaart

Financieel
| Prijs | |
|---|---|
| Maandelijkse kosten | € 75 |
| Kadastraal inkomen (niet geïndexeerd) | € 897 |
| Kadastraal inkomen (geïndexeerd) | € 0 |
Bijkomende info
Gebouw
| Bouwjaar | 2004 |
|---|---|
| Staat | Goed onderhouden |
| Bouwcertificaat | Nee |
| Bewoonbaar (m²) | 96 |
| Verdieping | 1 |
| Badkamers | 1 |
| Slaapkamers | 2 |
| Verdiepingen | 2 |
| Garages | 1 |
| Parkeerplaatsen | 0 |
| Doucheruimtes | 0 |
| Toiletten | 2 |
Faciliteiten
| Keuken uitrusting | Luxueus uitgerust |
|---|---|
| Materiaal ramenomlijstingen | PVC |
| Beglazing | Standaard dubbel |
| Brandstof primaire verwarming | Gas |
| Elektrisch keuringsattest | Ja |
Perceel
| Overstromingsgevoelig | Geen |
|---|---|
| P-score | B |
| G-score | B |
| Voorkeurrecht | Nee |
| Bebouwde oppervlakte (m²) | 0 |
| Tuin oppervlakte (m²) | 0 |
| Oppervlakte terras (m²) | 8 |
| Oriëntatie tuin | Zuid |
Vergunning
| Vergunning | Vergunning beschikbaar |
|---|---|
| Verkavelingsvergunning | Geen beschikbaar |
Uitrusting
| Investeringspand | Nee |
|---|---|
| Geschikt voor praktijk | Nee |
| Parking | Nee |
| Garage | Ja |
| Thuiskantoor | Nee |
| Kelder | Nee |
| Zolder | Ja |
| Tuin | Nee |
| Terras | Ja |
| Lift | Nee |
| Rioolaansluiting | Ja |
| Gasaansluiting | Ja |
| Wateraansluiting | Ja |
| Elektriciteitsaansluiting | Ja |
| TV aansluiting | Ja |
| Internetaansluiting | Ja |
| Telefoonaansluiting | Ja |
Appartementsblok
| Naam residentie | ASTRA |
|---|---|
| Aantal verdiepingen | 2 |
| Lift | Nee |
Een pand van
Structura
Jouw regio, ons werkveld.
Als lokale vastgoedexpert kunnen we de regio door en door.
Structura heeft een netwerk van kantoren in Wemmel, Merchtem, Opwijk, Asse, Meise en Aalst.
Daardoor hebben we steeds de vinger aan de pols in jouw buurt en kunnen we perfect inspelen op de wensen en noden van kopers, huurders en verkopers.
HEIRBAAN 49 / 102 OPWIJK
Leer meer over vastgoed
26 October 2025
Fake huuradvertenties op Facebook
06 July 2025
Wie betaalt herstellingen aan de huurwoning?
01 July 2025
Ik wil mijn huurcontract opzeggen. Hoe doe ik dit?
20 April 2025
