LIGHTHOUSE: vanaf 354 m²
Prijs op aanvraag
Een pand van CEUSTERS
Favoriet
Jouw zoektocht
Jouw scoretabel voor dit pand
Aan het laden...
Jouw geplande bezichtigingen
Aan het laden...
Overzicht
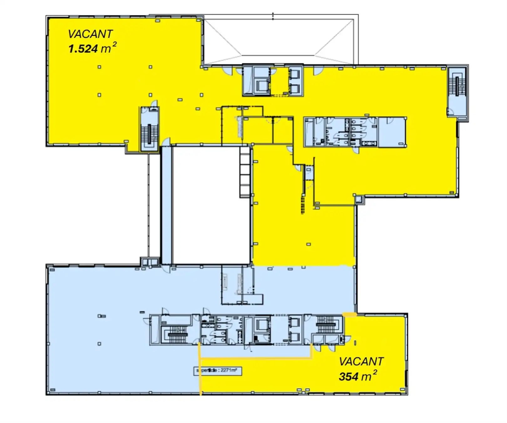
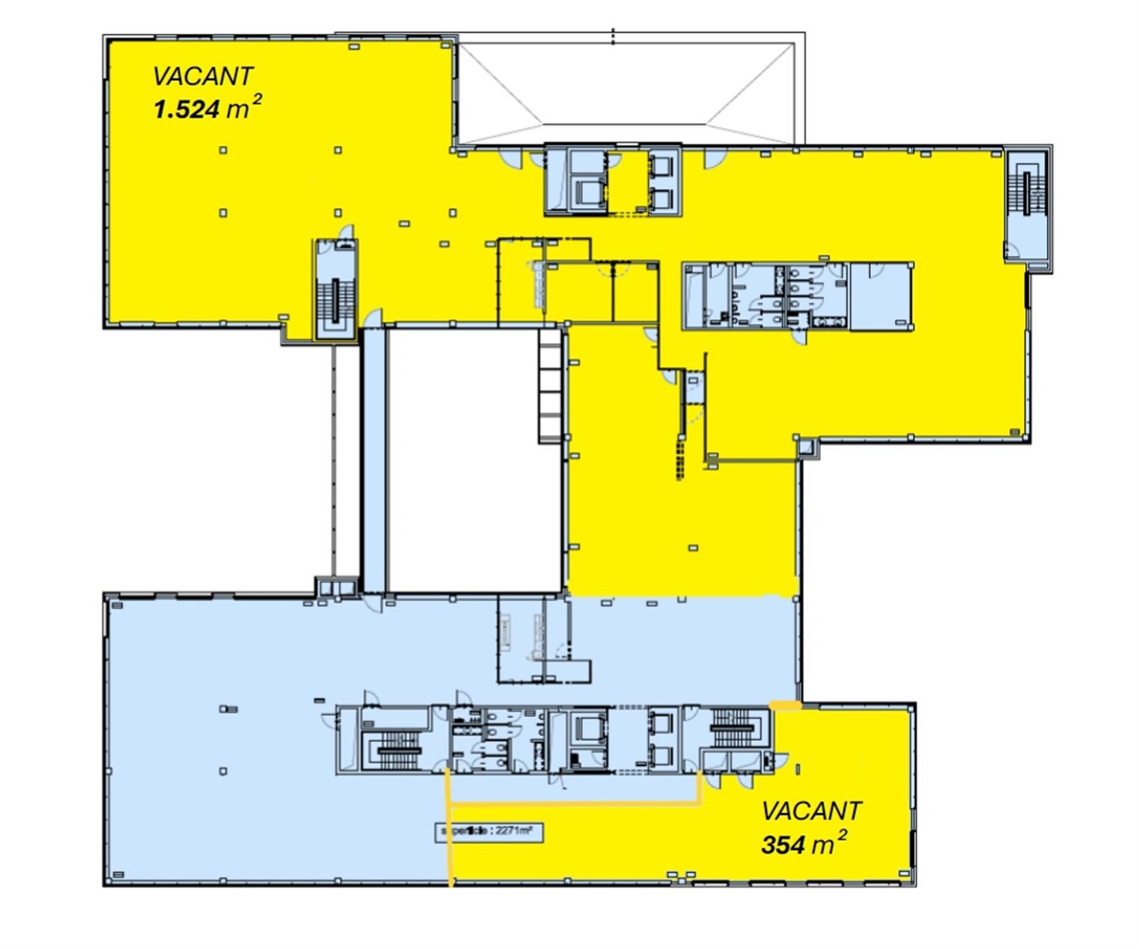
- 1120 m² bewoonbaar
Beschrijving
THE LIGHTHOUSE
Prachtig modern gebouw gelegen op wandelafstand van het station van Diegem.
Het gebouw heeft een zeer goede zichtbaarheid langs de Leopold III-laan, net voor het nieuwe NAVO-hoofdkwartier.
Er zijn gemeenschappelijke vergaderzalen op het gelijkvloers van het gebouw, evenals een bedrijfsrestaurant. Dit laatste heeft ook een buitenterras.
Het gebouw bestaat uit 5 verdiepingen van elk +/- 2.550 m², allemaal georganiseerd rond een mooie ontvangstruimte/atrium.
Momenteel is er kantoorruimte op het 1e verdiep (1.120m²) en op het 2e verdiep (354,7m²).
Diensten:
- Gemeenschappelijke vergaderruimte
- Douches, kluisjes, fietsenrek
- Fitness
- IT-ruimte
- Toegangscontrole gebouw
- Archief
- Restaurant
Technieken:
- Gekoeld plafond
- Kozijnen openen
- Vrije hoogte: 3,80 - 2,75m
- Koelsysteem
*********
Bezoek onze website: www.ceusters.be of neem direct contact op voor meer informatie: office@ceusters.be
*********
Energie
- E-peil: E0
- Beglazing: Onbekend
Op de kaart

Financieel
| Maandelijkse kosten | € 0 |
|---|---|
| Kadastraal inkomen (niet geïndexeerd) | € 0 |
| Kadastraal inkomen (geïndexeerd) | € 0 |
Bijkomende info
Gebouw
| Bouwcertificaat | Nee |
|---|---|
| Bewoonbaar (m²) | 1120 |
| Verdieping | 0 |
| Badkamers | 0 |
| Slaapkamers | 0 |
| Verdiepingen | 0 |
| Garages | 0 |
| Parkeerplaatsen | 0 |
| Doucheruimtes | 0 |
| Toiletten | 0 |
Faciliteiten
| Elektrisch keuringsattest | Nee |
|---|
Perceel
| Overstromingsgevoelig | Geen |
|---|---|
| Voorkeurrecht | Nee |
| Bebouwde oppervlakte (m²) | 0 |
| Tuin oppervlakte (m²) | 0 |
| Oppervlakte terras (m²) | 0 |
Uitrusting
| Investeringspand | Nee |
|---|---|
| Geschikt voor praktijk | Nee |
| Parking | Nee |
| Garage | Nee |
| Thuiskantoor | Nee |
| Kelder | Nee |
| Zolder | Nee |
| Tuin | Nee |
| Terras | Nee |
| Lift | Nee |
| Rioolaansluiting | Nee |
| Gasaansluiting | Nee |
| Wateraansluiting | Nee |
| Elektriciteitsaansluiting | Nee |
| TV aansluiting | Nee |
| Internetaansluiting | Nee |
| Telefoonaansluiting | Nee |
Appartementsblok
| Naam residentie | THE LIGHTHOUSE |
|---|---|
| Lift | Nee |
Een pand van
CEUSTERS
CEUSTERS
Onze experts in property management en vastgoedadvies stellen een kwalitatieve dienstverlening voorop. Creatief en flexibel gaat ons team op zoek naar kansen en oplossingen voor elke klant. Telkens een stapje verder. Naast onze kantoren in Antwerpen, Gent, Brussel, Hasselt en Rotterdam (Nederland), opereert CEUSTERS vanuit zes andere vestigingen verspreid over heel België. In deze snel veranderende wereld staat ons sterk inzicht in de lokale markt garant voor continuïteit.
TELECOMLAAN 5-7 - THE LIGHTHOUSE
Leer meer over vastgoed
04 January 2026
Zoek je een kantoor, een magazijn of… iets ertussenin? Bedrijfsvastgoed uitgelegd
05 November 2024
Bedrijfsvastgoed in transitie: ontdek de toekomst van werkplekken
16 October 2024
Opbrengsteigendom: een slim pad naar passief inkomen en vermogensgroei
09 September 2024