Nieuw
Uniek 2 slpk appart + kelderberging+4 terrassen (Nieuw Zuid)
€ 1.700 (+€ 150)
Jef Cassiersstraat 27 - 2000 Antwerpen
Overzicht
- 108 m² bewoonbaar
- 108 m² grond
- 2 Slaapkamer(s)
- 1 Badkamer(s)
- 1 Toilet(ten)
Beschrijving
PZ D5.02 - De gerenommeerde Italiaanse architect Stefano Boeri - bekend van de 'verticale bossen' in Milaan - ontwerpt voor het eerst een gebouw in ons land. En het zal meteen een landmark worden: Het nieuwe project is namelijk het groenste gebouw van België. Palazzo Verde, zoals het gebouw heet, is gekenmerkt door zijn bijzondere symbiose tussen architectuur en natuur, met onder meer drie daktuinen. In totaal zullen de 86 bomen, 1.000 struiken en 1.200 planten jaarlijks ongeveer 5 ton CO2 zuiveren. De daktuinen zijn toegankelijk voor al de bewoners.
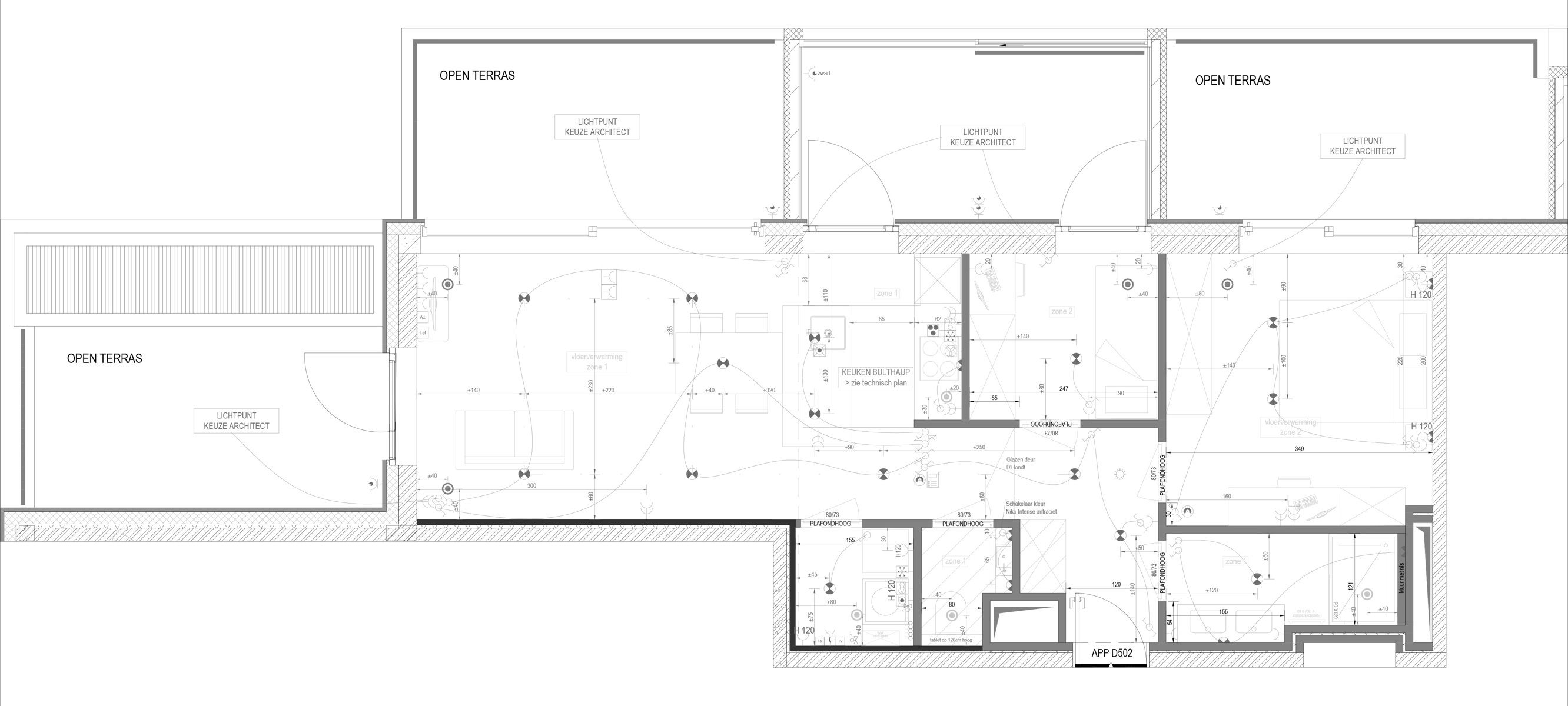
Het appartement van 108m² (volgens EPC) met kelderberging is gelegen op de 5de verdieping van het gebouw. Men treedt het appartement binnen via een inkomhal met apart toilet en aparte berging met was/droogmachine. Verder de open leefruimte die dat toegang geeft tot de 3 mooie terrassen. Dankzij de oost-oriëntatie van de 4 terrassen, geniet je volop van uitzonderlijke uitzichten op de stad en prachtige zonsopgang. De Bulthaup-keuken is volledig uitgerust. Er zijn twee slaapkamers, waarvan een met terras en een badkamer. Het hele appartement is van top tot teen hoogwaardig afgewerkt met stijlvol maatwerk, veel inbouwkasten, mooie parketvloeren en vloerverwarming. Een stijlvol instapklaar appartement.
De gemeenschappelijke kosten bedragen 150€ per maand. De meters van het appartement zijn apart. Het is mogelijk om een parkeerplaats in het gebouw te huren voor 125€/maand.
Het appartement van 108m² (volgens EPC) met kelderberging is gelegen op de 5de verdieping van het gebouw. Men treedt het appartement binnen via een inkomhal met apart toilet en aparte berging met was/droogmachine. Verder de open leefruimte die dat toegang geeft tot de 3 mooie terrassen. Dankzij de oost-oriëntatie van de 4 terrassen, geniet je volop van uitzonderlijke uitzichten op de stad en prachtige zonsopgang. De Bulthaup-keuken is volledig uitgerust. Er zijn twee slaapkamers, waarvan een met terras en een badkamer. Het hele appartement is van top tot teen hoogwaardig afgewerkt met stijlvol maatwerk, veel inbouwkasten, mooie parketvloeren en vloerverwarming. Een stijlvol instapklaar appartement.
De gemeenschappelijke kosten bedragen 150€ per maand. De meters van het appartement zijn apart. Het is mogelijk om een parkeerplaats in het gebouw te huren voor 125€/maand.
PZ D5.02 - De gerenommeerde Italiaanse architect Stefano Boeri - bekend van de 'verticale bossen' in Milaan - ontwerpt voor het eerst een gebouw in ons land. En het zal meteen een landmark worden: Het nieuwe project is namelijk het groenste gebouw van België. Palazzo Verde, zoals het gebouw heet, is gekenmerkt door zijn bijzondere symbiose tussen architectuur en natuur, met onder meer drie daktuinen. In totaal zullen de 86 bomen, 1.000 struiken en 1.200 planten jaarlijks ongeveer 5 ton CO2 zuiveren. De daktuinen zijn toegankelijk voor al de bewoners.
Het appartement van 108m² (volgens EPC) met kelderberging is gelegen op de 5de verdieping van het gebouw. Men treedt het appartement binnen via een inkomhal met apart toilet en aparte berging met was/droogmachine. Verder de open leefruimte die dat toegang geeft tot de 3 mooie terrassen. Dankzij de oost-oriëntatie van de 4 terrassen, geniet je volop van uitzonderlijke uitzichten op de stad en prachtige zonsopgang. De Bulthaup-keuken is volledig uitgerust. Er zijn twee slaapkamers, waarvan een met terras en een badkamer. Het hele appartement is van top tot teen hoogwaardig afgewerkt met stijlvol maatwerk, veel inbouwkasten, mooie parketvloeren en vloerverwarming. Een stijlvol instapklaar appartement.
De gemeenschappelijke kosten bedragen 150€ per maand. De meters van het appartement zijn apart. Het is mogelijk om een parkeerplaats in het gebouw te huren voor 125€/maand.
Het appartement van 108m² (volgens EPC) met kelderberging is gelegen op de 5de verdieping van het gebouw. Men treedt het appartement binnen via een inkomhal met apart toilet en aparte berging met was/droogmachine. Verder de open leefruimte die dat toegang geeft tot de 3 mooie terrassen. Dankzij de oost-oriëntatie van de 4 terrassen, geniet je volop van uitzonderlijke uitzichten op de stad en prachtige zonsopgang. De Bulthaup-keuken is volledig uitgerust. Er zijn twee slaapkamers, waarvan een met terras en een badkamer. Het hele appartement is van top tot teen hoogwaardig afgewerkt met stijlvol maatwerk, veel inbouwkasten, mooie parketvloeren en vloerverwarming. Een stijlvol instapklaar appartement.
De gemeenschappelijke kosten bedragen 150€ per maand. De meters van het appartement zijn apart. Het is mogelijk om een parkeerplaats in het gebouw te huren voor 125€/maand.
Energie
![]() |
- EPC Certificaat: 20240701-0003299070-RES-1
- Energieverbruik: 93 kWh/m²/jaar
Zelfcheck
Financieel
Prijs | |
---|---|
Maandelijkse kosten | € 150 |
Bijkomende info
Gebouw
Bouwjaar | 2019 |
---|---|
Staat | Nieuw |
Bewoonbaar (m²) | 108 |
Verdieping | 5 |
Gevels | 2 |
Gevelbreedte | 14 |
Badkamers | 1 |
Slaapkamers | 2 |
Verdiepingen | 6 |
Garages | 0 |
Parkeerplaatsen | 1 |
Doucheruimtes | 1 |
Toiletten | 1 |
Faciliteiten
Type vloer | Hout |
---|---|
Keuken uitrusting | Luxueus uitgerust |
Elektrisch keuringsattest | Ja |
Perceel
P-score | C |
---|---|
G-score | C |
Totale oppervlakte (m²) | 108 |
Bebouwde oppervlakte (m²) | 108 |
Tuin oppervlakte (m²) | 0 |
Oriëntatie terras | Oost |
Vergunning
Vergunning | Geen beschikbaar |
---|---|
Verkavelingsvergunning | Geen beschikbaar |
Uitrusting
Geschikt voor rolstoelgebruikers | Nee |
---|---|
Parking | Nee |
Garage | Nee |
Tuin | Nee |
Terras | Ja |
Lift | Ja |
Gasaansluiting | Ja |
Wateraansluiting | Ja |
Elektriciteitsaansluiting | Ja |
TV aansluiting | Ja |
Zwembad | Nee |
Zwemvijver | Nee |
Videofoon | Ja |
Leer meer over vastgoed
06 July 2025
Wie betaalt herstellingen aan de huurwoning?
01 July 2025
Ik wil mijn huurcontract opzeggen. Hoe doe ik dit?
20 April 2025
Huren in de stad: Nika vond haar eerste appartement met de reistijdplanner
06 December 2024