Prachtig 1-kamer appartement met TERRAS
€ 895 (+€ 100)
Tunnelplaats 8 - 2000 Antwerpen
Jouw zoektocht
Overzicht
- 52 m² bewoonbaar
- 52 m² grond
- 1 Slaapkamer(s)
- 1 Badkamer(s)
- 1 Toilet(ten)
- 1 Garage(s)
Beschrijving
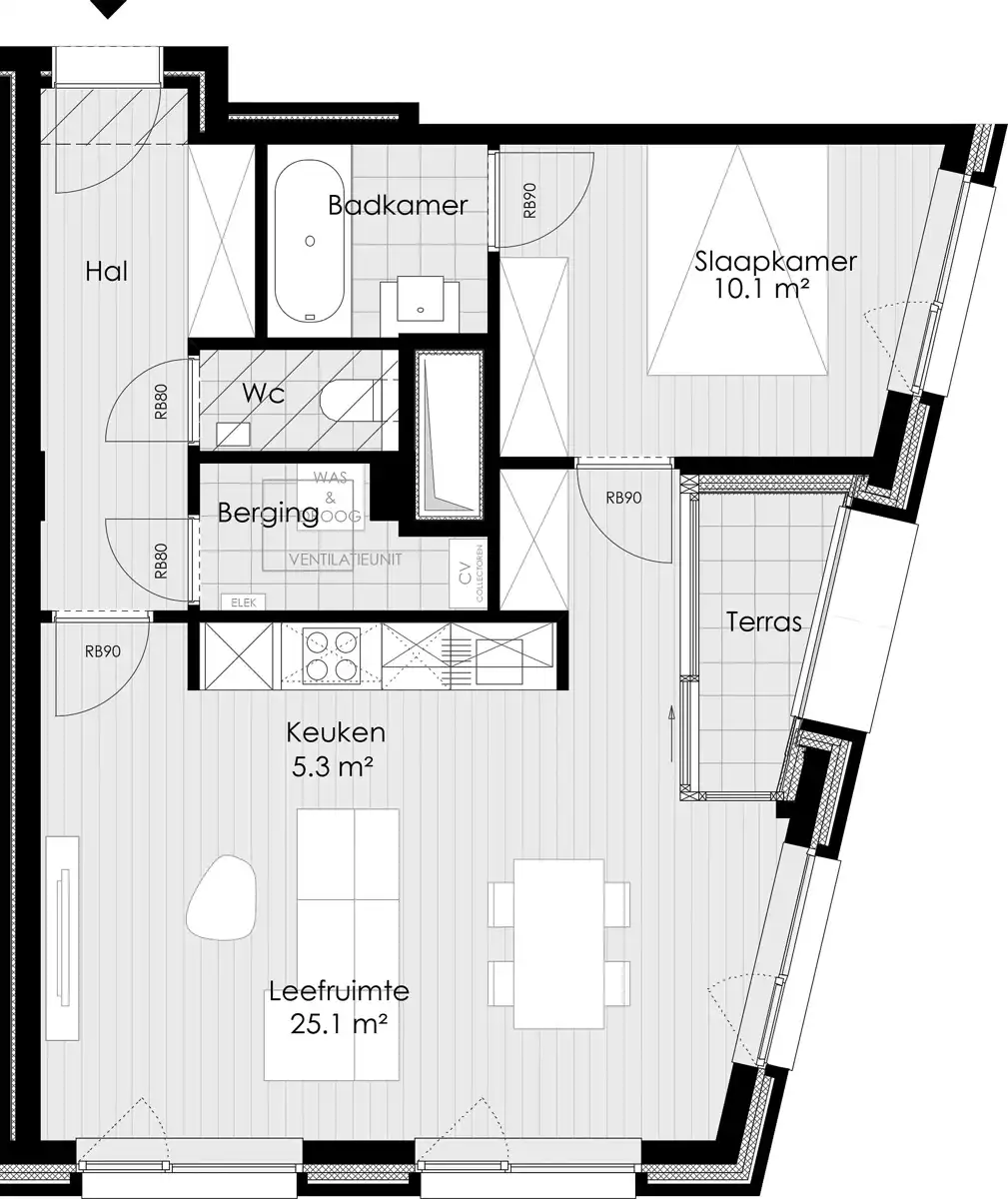
Het appartement is gelegen op de 7de verdieping. Men treedt het appartement binnen in een inkomhal met vestiaire, appart toilet en berging met alle nodige aansluitingen voor wasmachine en droogkast. Verder de ruime leefruimte met open keuken. Hiernaast een aangenaam terras met mooi zicht op het stad. Verder de slaapkamer met en-suite douchekamer.
De provisie voor gemeenschappelijke lasten bedragen 100€/maand. Nutvoorzieningen, water, verwarming en elektriciteit zijn apart te betalen. Er is een gemeenschappelijke fietsenberging. Mogelijkheid om een parkeerplaats in het gebouw te huren voor 125€/maand.
Residentie Eilandje werd naar de Noorse zeemanskerk toe afgeschuind en geeft daardoor ruimte aan de kerktoren en het achterliggende stadsplein. Tussen de twee bouwvolumes werd het ‘groene’ centrale gedeelte verlaagd en open gewerkt. Het gebouw vormt een landmerk aan de ingang van de tunnelverbinding ter hoogte van de overgang tussen de wijken Binnenstad, Eilandje en Wijk 2060.
Het appartement is gelegen op de 7de verdieping. Men treedt het appartement binnen in een inkomhal met vestiaire, appart toilet en berging met alle nodige aansluitingen voor wasmachine en droogkast. Verder de ruime leefruimte met open keuken. Hiernaast een aangenaam terras met mooi zicht op het stad. Verder de slaapkamer met en-suite douchekamer.
De provisie voor gemeenschappelijke lasten bedragen 100€/maand. Nutvoorzieningen, water, verwarming en elektriciteit zijn apart te betalen. Er is een gemeenschappelijke fietsenberging. Mogelijkheid om een parkeerplaats in het gebouw te huren voor 125€/maand.
Energie
![]() |
- EPC Certificaat: 11002-G-2014-165472/EP16983/A001/D01/SD026
- Energieverbruik: 83 kWh/m²/jaar
Zelfcheck
Financieel
| Prijs | |
|---|---|
| Maandelijkse kosten | € 100 |
Bijkomende info
Gebouw
| Bouwjaar | 2021 |
|---|---|
| Staat | Nieuw |
| Bewoonbaar (m²) | 52 |
| Verdieping | 8 |
| Gevels | 2 |
| Gevelbreedte | 7 |
| Badkamers | 1 |
| Slaapkamers | 1 |
| Verdiepingen | 12 |
| Garages | 1 |
| Parkeerplaatsen | 1 |
| Doucheruimtes | 1 |
| Toiletten | 1 |
Faciliteiten
| Type vloer | Hout |
|---|---|
| Keuken uitrusting | Luxueus uitgerust |
| Elektrisch keuringsattest | Ja |
Perceel
| Overstromingsgevoelig | Geen |
|---|---|
| Totale oppervlakte (m²) | 52 |
| Bebouwde oppervlakte (m²) | 52 |
| Tuin oppervlakte (m²) | 0 |
Vergunning
| Vergunning | Geen beschikbaar |
|---|---|
| Verkavelingsvergunning | Geen beschikbaar |
Uitrusting
| Geschikt voor rolstoelgebruikers | Nee |
|---|---|
| Parking | Ja |
| Garage | Nee |
| Kelder | Nee |
| Zolder | Nee |
| Tuin | Nee |
| Terras | Ja |
| Lift | Ja |
| Gasaansluiting | Ja |
| Wateraansluiting | Ja |
| Elektriciteitsaansluiting | Ja |
| TV aansluiting | Ja |
| Telefoonaansluiting | Ja |
| Zwembad | Nee |
| Zwemvijver | Nee |
| Videofoon | Ja |
| Regenwaterput | Nee |
