Moderne kantoren te huur vlakbij "'nieuw Zuid"
Prijs op aanvraag
Een pand van CEUSTERS
Jouw zoektocht
Overzicht
- 311 m² bewoonbaar
Overstromingsgevaar gebouw
Overstromingsgevaar perceel
Beschrijving
Modern kantoorgebouw aan het "Nieuw Zuid".
Deze trendy buurt heeft heel veel leuke drank -, en eetgelegenheden in de directe omgeving. U bevindt zicht eveneens vlakbij het Justitiepaleis.
Technische kenmerken:
- verhoogde vloer
- koelplafond
- toegangscontrole via badge
- parkingratio 1/50
- state-of-the-art gebouw
- modulatie op 1,35m
- zonnewering
Huur parkeerplaats: 1.290 EUR/jaar/staanplaats
Onroerende voorheffing: 18 EUR/m²/jaar
Gemeenschappelijke kosten: 37 EUR/m²/jaar
Kantoren:
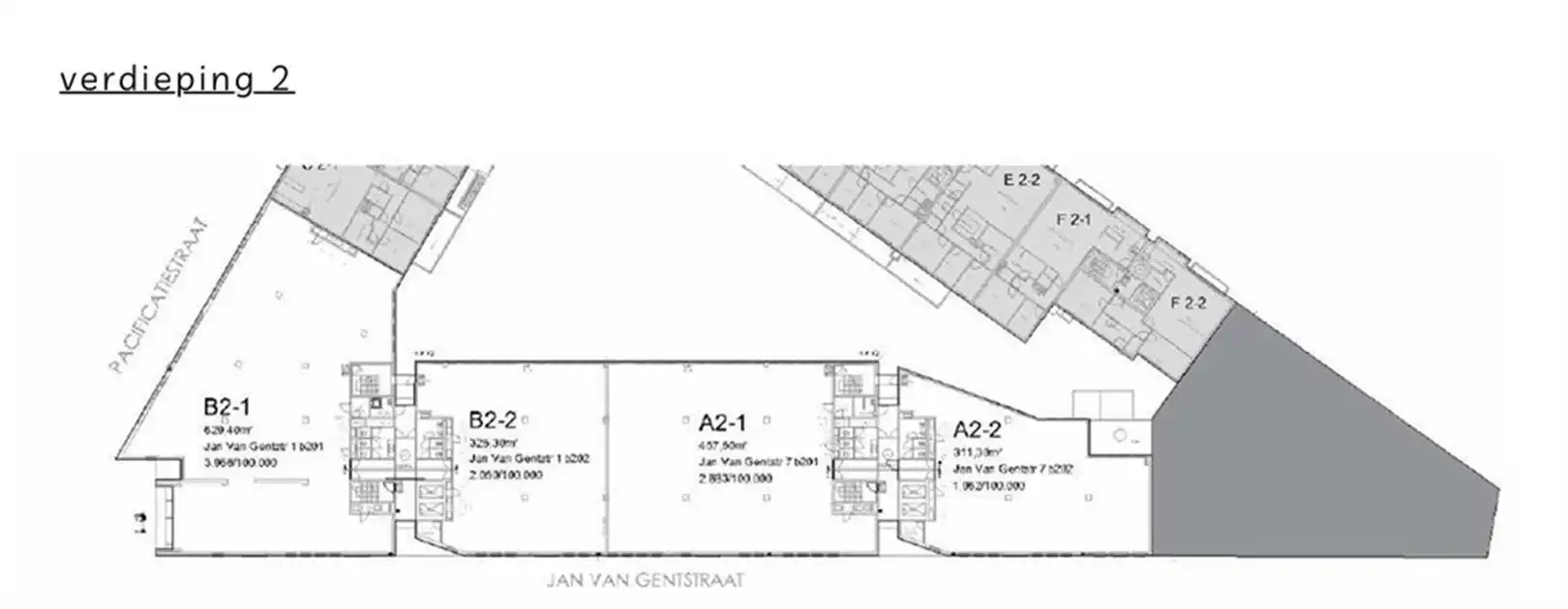
NZ Blok A Jan Van Gentstraat 7 - 5 verdiepen - beschikbaar: 2e verdiep (458m² en 311m²)
NZ Blok B Jan Van Gentstraat 1 - 5 verdiepen - geen beschikbaarheden
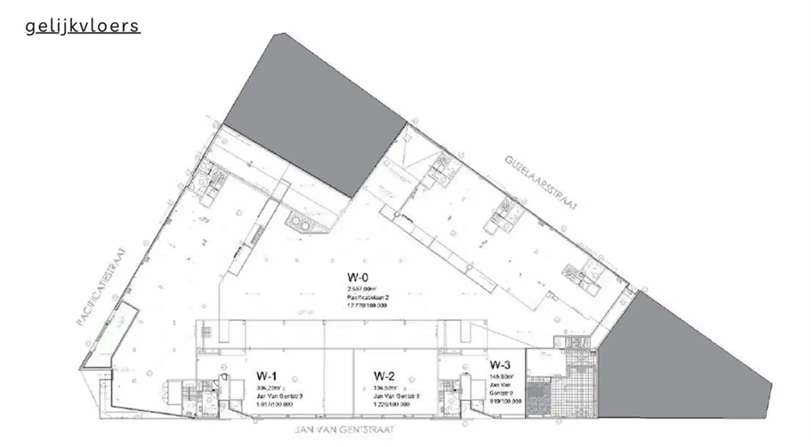
NZ W1 Jan Van Gentstraat 3 - gelijkvloers/retail - geen beschikbaarheden
NZ W2 Jan Van Gentstraat 5 - gelijkvloers/retail - geen beschikbaarheden
NZ W3 Jan Van Gentstraat 9 - gelijkvloers/retail - geen beschikbaarheden
NZ W0 Pacificatiestraat 2 - gelijkvloers/retail - geen beschikbaarheden
Berging en parking in de Pacificatiestraat, ondergronds - 34 parkeerplaatsen beschikbaar, verdeeld over verdiep -1, -2 en -3
Bezoek onze website www.ceusters.be of contacteer ons onmiddellijk voor meer informatie office@ceusters.be
Energie
- E-peil: E0
- Beglazing: Onbekend
Op de kaart

Financieel
| Maandelijkse kosten | € 0 |
|---|---|
| Kadastraal inkomen (niet geïndexeerd) | € 0 |
| Kadastraal inkomen (geïndexeerd) | € 0 |
Bijkomende info
Gebouw
| Bouwcertificaat | Nee |
|---|---|
| Bewoonbaar (m²) | 311 |
| Verdieping | 0 |
| Badkamers | 0 |
| Slaapkamers | 0 |
| Verdiepingen | 0 |
| Garages | 0 |
| Parkeerplaatsen | 0 |
| Doucheruimtes | 0 |
| Toiletten | 0 |
Faciliteiten
| Elektrisch keuringsattest | Ja |
|---|
Perceel
| Overstromingsgevoelig | Geen |
|---|---|
| P-score | D |
| G-score | D |
| Voorkeurrecht | Nee |
| Bebouwde oppervlakte (m²) | 0 |
| Tuin oppervlakte (m²) | 0 |
| Oppervlakte terras (m²) | 0 |
Uitrusting
| Investeringspand | Nee |
|---|---|
| Geschikt voor praktijk | Nee |
| Parking | Nee |
| Garage | Nee |
| Thuiskantoor | Nee |
| Kelder | Nee |
| Zolder | Nee |
| Tuin | Nee |
| Terras | Nee |
| Lift | Nee |
| Rioolaansluiting | Nee |
| Gasaansluiting | Nee |
| Wateraansluiting | Nee |
| Elektriciteitsaansluiting | Nee |
| TV aansluiting | Nee |
| Internetaansluiting | Nee |
| Telefoonaansluiting | Nee |
Appartementsblok
| Naam residentie | NIEUW ZUID - Jan Van Gent/Pacificatie |
|---|---|
| Lift | Nee |