Kantoorverdieping met authentiek karakter te huur
Prijs op aanvraag
Een pand van CEUSTERS
Overzicht
- 885 m² bewoonbaar
Overstromingsgevaar gebouw
Overstromingsgevaar perceel
Beschrijving
Kantoorverdieping met authentiek karakter te huur
Het Osterriethhuis is een complex herenhuis in rococostijl en werd aangeduid als vastgesteld bouwkundig erfgoed en beschermd monument.
Dit gebouw werd in 1749-1750 tot omgevormd tot zijn huidige vorm naar ontwerp van Jan Pieter van Baurscheit de Jonge.
Het hotel werd in 1874 aangekocht door Jacques Ernest Osterrieth, in de latere jaren 1890 verbouwd door Joseph Hertogs en vervolgens in 1955-1956 uitgebreid tot de Bank van Parijs en de NEderlanden door Hugo Van Kuyck.
Het gebouw werd in detail gerestaureerd en het authentieke karakter wordt bewaard dankzij de parketvloeren en houten balkenstructuur van het dak.
Met respect voor de authenticiteit en erfgoedwaarde zijn er ook enkele moderne accenten verwerkt in dit voormalig hotel.
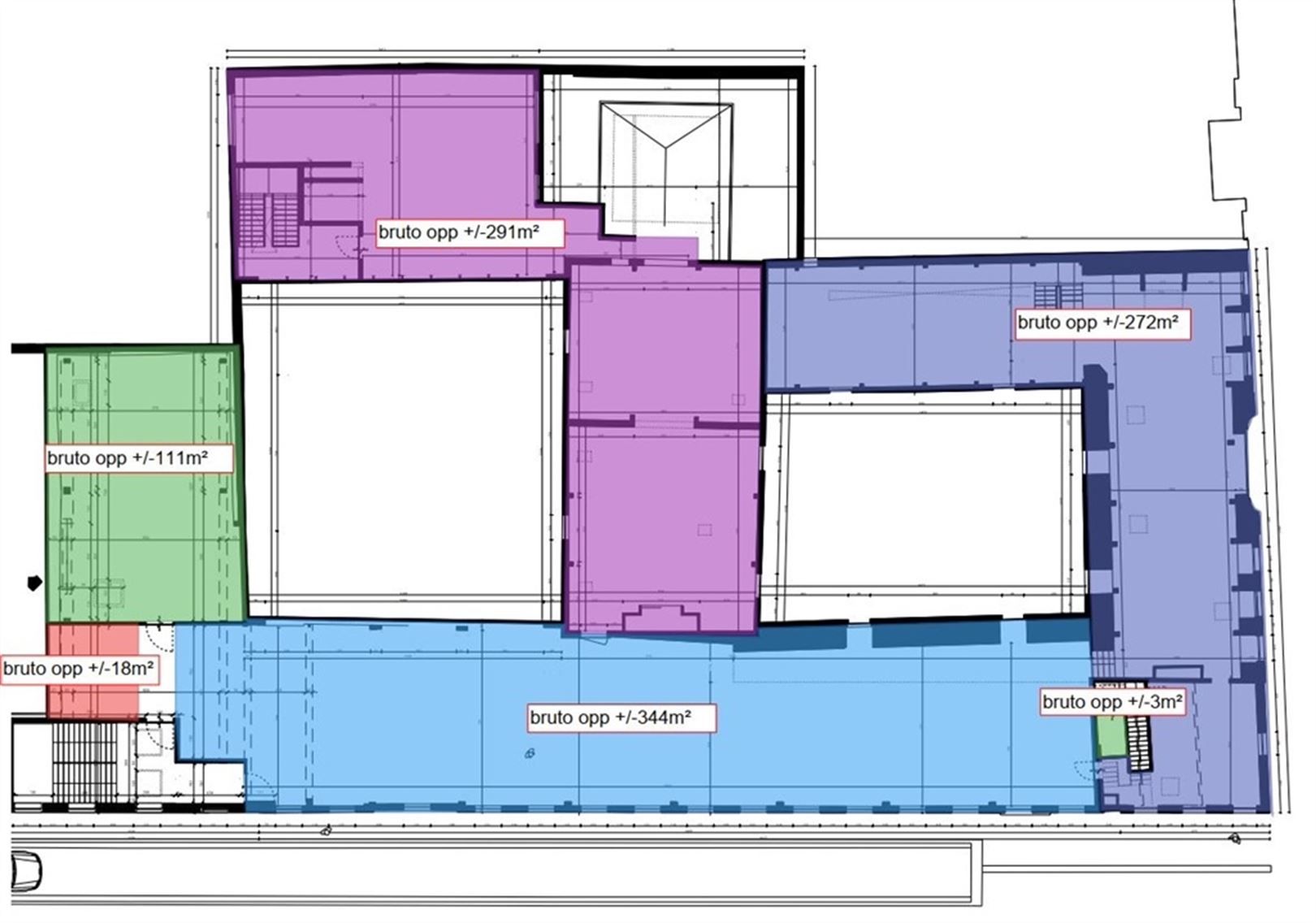
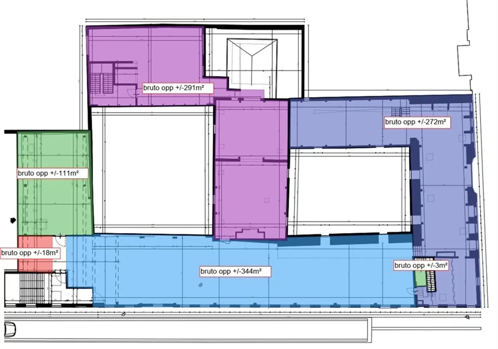
De beschikbare kantoorverdieping bevindt zich op de tweede verdieping en bedraagt een oppervlakte van 885 m².
Opsplitsing mogelijk vanaf ca. 260 m².
Gemeenschappelijke kosten bedragen €7.500/jaar.
Onroerende voorheffing €13.828,99.
*********
Bezoek onze website: www.ceusters.be of contacteer ons om een gepersonaliseerde selectie te ontvangen: office@ceusters.be
*********
Energie
- E-peil: E0
- Beglazing: Onbekend
Op de kaart

Financieel
| Maandelijkse kosten | € 0 |
|---|---|
| Kadastraal inkomen (niet geïndexeerd) | € 0 |
| Kadastraal inkomen (geïndexeerd) | € 0 |
Bijkomende info
Gebouw
| Bouwcertificaat | Nee |
|---|---|
| Bewoonbaar (m²) | 885 |
| Verdieping | 0 |
| Badkamers | 0 |
| Slaapkamers | 0 |
| Verdiepingen | 0 |
| Garages | 0 |
| Parkeerplaatsen | 0 |
| Doucheruimtes | 0 |
| Toiletten | 0 |
Faciliteiten
| Elektrisch keuringsattest | Nee |
|---|
Perceel
| Overstromingsgevoelig | Geen |
|---|---|
| P-score | D |
| G-score | D |
| Voorkeurrecht | Nee |
| Bebouwde oppervlakte (m²) | 0 |
| Tuin oppervlakte (m²) | 0 |
| Oppervlakte terras (m²) | 0 |
Vergunning
| Vergunning | Vergunning beschikbaar |
|---|
Uitrusting
| Investeringspand | Nee |
|---|---|
| Geschikt voor praktijk | Nee |
| Parking | Nee |
| Garage | Nee |
| Thuiskantoor | Nee |
| Kelder | Nee |
| Zolder | Nee |
| Tuin | Nee |
| Terras | Nee |
| Lift | Nee |
| Rioolaansluiting | Ja |
| Gasaansluiting | Ja |
| Wateraansluiting | Ja |
| Elektriciteitsaansluiting | Ja |
| TV aansluiting | Ja |
| Internetaansluiting | Ja |
| Telefoonaansluiting | Ja |
Appartementsblok
| Naam residentie | MEIR 85 |
|---|---|
| Lift | Nee |