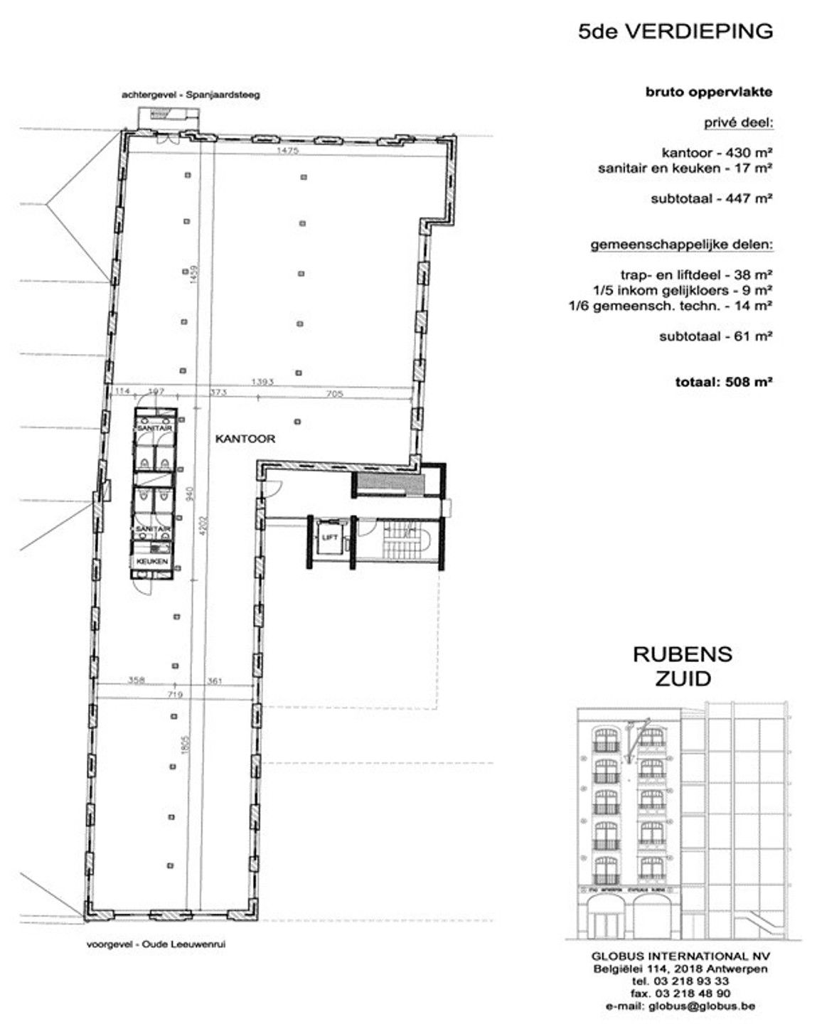
Kantoor 508m² te huur
€ 6.537,5
Een pand van OREON PROPERTIES
Favoriet
Jouw zoektocht
Jouw scoretabel voor dit pand
Aan het laden...
Jouw geplande bezichtigingen
Aan het laden...
Overzicht
- 508 m² bewoonbaar
- 508 m² grond
Beschrijving
Kantoor 508m² te huur op 'Het Eilandje'
ALGEMEEN
Industriële kantoren/showroom te huur in Antwerpen.De kantoren zijn zeer mooi afgewerkt.
De GLV en de eerste verdieping kunnen samen verhuurd worden, maar er kunnen ook afzonderlijke kantoren van gemaakt worden.
Alle kantoren hebben eigen sanitair.
Mogelijkheid tot bijhuren parkeerplaatsen.
Lift aanwezig.
Top locatie dichtbij het Mas.
HUURLASTEN
Kantoor/ Showroom 508m² - maandelijkse huurprijs : 6.350€
Huurprijs : 150EUR/m²/jaar
Provisie kosten: 13EUR/m²
Onroerende voorheffing: 7,50EUR/m²
Parkings : 24 plaatsen (p/plaats 170€) -
Energie
Op de kaart

Financieel
| Prijs |
|---|
Bijkomende info
Gebouw
| Bewoonbaar (m²) | 508 |
|---|---|
| Verdieping | 5 |
| Badkamers | 0 |
| Slaapkamers | 0 |
| Verdiepingen | 5 |
| Parkeerplaatsen | 0 |
Faciliteiten
| Type vloer |
|---|
Perceel
| Totale oppervlakte (m²) | 508 |
|---|---|
| Tuin oppervlakte (m²) | 0 |
Vergunning
| Vergunning | Geen beschikbaar |
|---|---|
| Verkavelingsvergunning | Geen beschikbaar |
Uitrusting
| Parking | Nee |
|---|---|
| Garage | Nee |
| Tuin | Nee |
| Terras | Nee |
| Lift | Ja |
Een pand van
OREON PROPERTIES
Oreon Properties
Vastgoedmakelaar Oreon Properties is uw expert op het vlak van (ver)huur of (ver)koop van kantoren, logistiek of industrieel vastgoed, investeren in vastgoed en vastgoedbeheer. Investeerders en ondernemingen die op zoek zijn naar kantoren, logistiek of industrieel vastgoed kunnen bij Oreon Properties aankloppen voor professioneel advies op maat en begeleiding bij al hun investeringen en vastgoedtransacties.
5480431
Leer meer over vastgoed
04 January 2026
Zoek je een kantoor, een magazijn of… iets ertussenin? Bedrijfsvastgoed uitgelegd
05 November 2024
Bedrijfsvastgoed in transitie: ontdek de toekomst van werkplekken
16 October 2024
Opbrengsteigendom: een slim pad naar passief inkomen en vermogensgroei
09 September 2024