Nieuwbouwappartement met luxe terras
€ 1.180 (+€ 190)
Een pand van Immo Vasta
Overzicht
- 103 m² bewoonbaar
- 2 Slaapkamer(s)
- 1 Badkamer(s)
- 1 Toilet(ten)
Beschrijving
Als bewoner in dit recente gebouw krijg je heel wat waar voor je geld: een instapklare plek, veel licht, twéé terrassen met panoramisch zicht. Extra’s: de gemeenschappelijke fitness en zonneterras van het hotel!
Verplicht parkingplaats bij te huren aan € 110,-/maand.
Wie de buurt wat kent, zag het voorbije jaar hier op de hoek van de Provinciestraat met de Plantin en Morteuslei dit imposante hoekgebouw met z’n kenmerkende zachtgele gevelsteen en strakke balustrades uit de grond rijzen. Alles is hier dus nog fonkelnieuw én dat betekent ook energiezunig, natuurlijk!
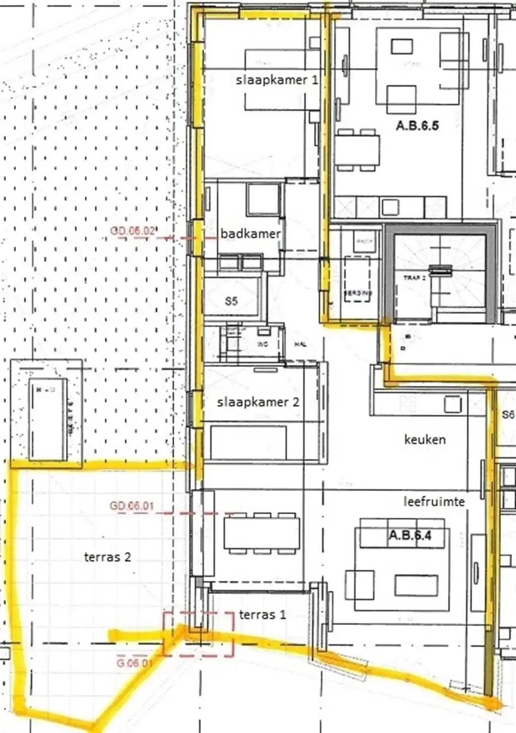
Met de lift ga je naar het zesde, waar je het appartement door de veiligheidsdeur binnenstapt in de inkomhal. De mooie lichtgrijze tegelvloer die je hier ziet, loopt door over het hele appartement, waardoor alle ruimtes subtiel met mekaar in verbinding staan.
Vijfsterren panoramisch zicht & kwaliteit
De leefruimte is enorm, met een ruimtegevoel en een lichtinval om u tegen te zeggen. Je hebt hier dan ook heel wat grote schuiframen, en toegang tot maar liefst twéé terrassen: een dat overdekt is, en een enorm zonneterras. Dat wordt hier zonder twijfel een zalige, lange zomer!
De open keuken is elegant en tijdloos, met z’n witte kastfrontjes en zwarte composiet werkblad. Aan de toog zet je makkelijk enkele krukjes voor een snel ontbijt of apero met zicht op de chef van dienst. Je vindt hier een inductievuur, een ingewerkte dampkap, spoelbak, koelkast, combi-oven, vaatwasser en heel wat kastruimte. Alle toestellen zijn van Siemens, pure kwaliteit dus.
Naast de keuken is er plaats voor een grote eettafel, waar je eet met een vijfsterren panoramisch zicht over Antwerpen. Je salon kan je makkelijk kwijt in de toffe open ruimte ernaast, van waaruit je toegang hebt tot beide terrassen. Met enkele grote planten - een olijfboom in een bak bijvoorbeeld – en een fancy buitensalon waan je je hier een beetje op vakantie. Weer in de hal heb je een apart toilet met lavabo, een eerste slaapkamer en een betegelde badkamer. Die is uitgerust met een ruime inloopdouche, een dubbele lavabo met spiegel, verlichting en grote hangkasten eronder, met nog een aparte kast.
De master bedroom bevindt zich aan de andere kant van het appartement, met twee grote ramen en een zee van licht. Gordijnen en verlichting hoef je hier alvast niet meer te kopen, want die zitten mee in de prijs. Handig en je spaart er meteen heel wat centen mee uit.
Supercentraal, met alles in de buurt
Het is hier zalig wonen, zo op het snijpunt van de Provinciestraat met de Plantin en Moretuslei. De stad ligt – letterlijk – aan je voeten, met het station en het coole DPG-mediagebouw op wandelafstand, openbaar vervoer en een velostation praktisch voor je deur. Je bent de stad zo in, maar ook uit, want de Singel en de Ring zijn op enkele minuutjes rijden. Pintjes pakken op de Dageraadplaats kan je na enkele minuten stappen en ook het stadspark is niet veraf.
Energie
![]() |
- EPC Certificaat: 11002-G-OMV_2018050602/EP05954/A002/D01/SD054
- Energieverbruik: 50 kWh/m²/jaar
- E-peil: E34
- Verwarming: Gas
- Beglazing: Hoog efficient driedubbel
Zelfcheck
Op de kaart

Financieel
| Prijs | |
|---|---|
| Maandelijkse kosten | € 190 |
| Kadastraal inkomen (niet geïndexeerd) | € 0 |
| Kadastraal inkomen (geïndexeerd) | € 0 |
Bijkomende info
Gebouw
| Bouwjaar | 2023 |
|---|---|
| Staat | Nieuw |
| Bouwcertificaat | Nee |
| Bewoonbaar (m²) | 103 |
| Verdieping | 6 |
| Badkamers | 1 |
| Slaapkamers | 2 |
| Verdiepingen | 8 |
| Garages | 0 |
| Parkeerplaatsen | 1 |
| Doucheruimtes | 0 |
| Toiletten | 1 |
Faciliteiten
| Keuken uitrusting | Luxueus uitgerust |
|---|---|
| Materiaal ramenomlijstingen | PVC |
| Beglazing | Hoog efficient driedubbel |
| Brandstof primaire verwarming | Gas |
| Elektrisch keuringsattest | Ja |
Perceel
| Overstromingsgevoelig | Geen |
|---|---|
| Voorkeurrecht | Nee |
| Bebouwde oppervlakte (m²) | 0 |
| Tuin oppervlakte (m²) | 0 |
| Oppervlakte terras (m²) | 26 |
Uitrusting
| Investeringspand | Nee |
|---|---|
| Geschikt voor praktijk | Nee |
| Parking | Ja |
| Garage | Nee |
| Thuiskantoor | Nee |
| Kelder | Nee |
| Zolder | Nee |
| Tuin | Nee |
| Terras | Ja |
| Lift | Ja |
| Rioolaansluiting | Nee |
| Gasaansluiting | Nee |
| Wateraansluiting | Nee |
| Elektriciteitsaansluiting | Nee |
| TV aansluiting | Nee |
| Internetaansluiting | Nee |
| Telefoonaansluiting | Nee |
Appartementsblok
| Aantal verdiepingen | 8 |
|---|---|
| Lift | Ja |
