Te Huur Magazijn te Antwerpen
€ 14.000
Een pand van CEUSTERS
Overzicht
- 1509 m² bewoonbaar
Beschrijving
Te huur: Moderne commerciële toplocatie met uitstekende zichtbaarheid in Antwerpen
Ontdek deze uitzonderlijke commerciële site op de Noorderlaan in Antwerpen. Dit nieuwbouw pand combineert een strak, eigentijds ontwerp met een veelzijdige indeling, ideaal voor bedrijven die op zoek zijn naar een zichtbare en bereikbare locatie.
Belangrijkste troeven:
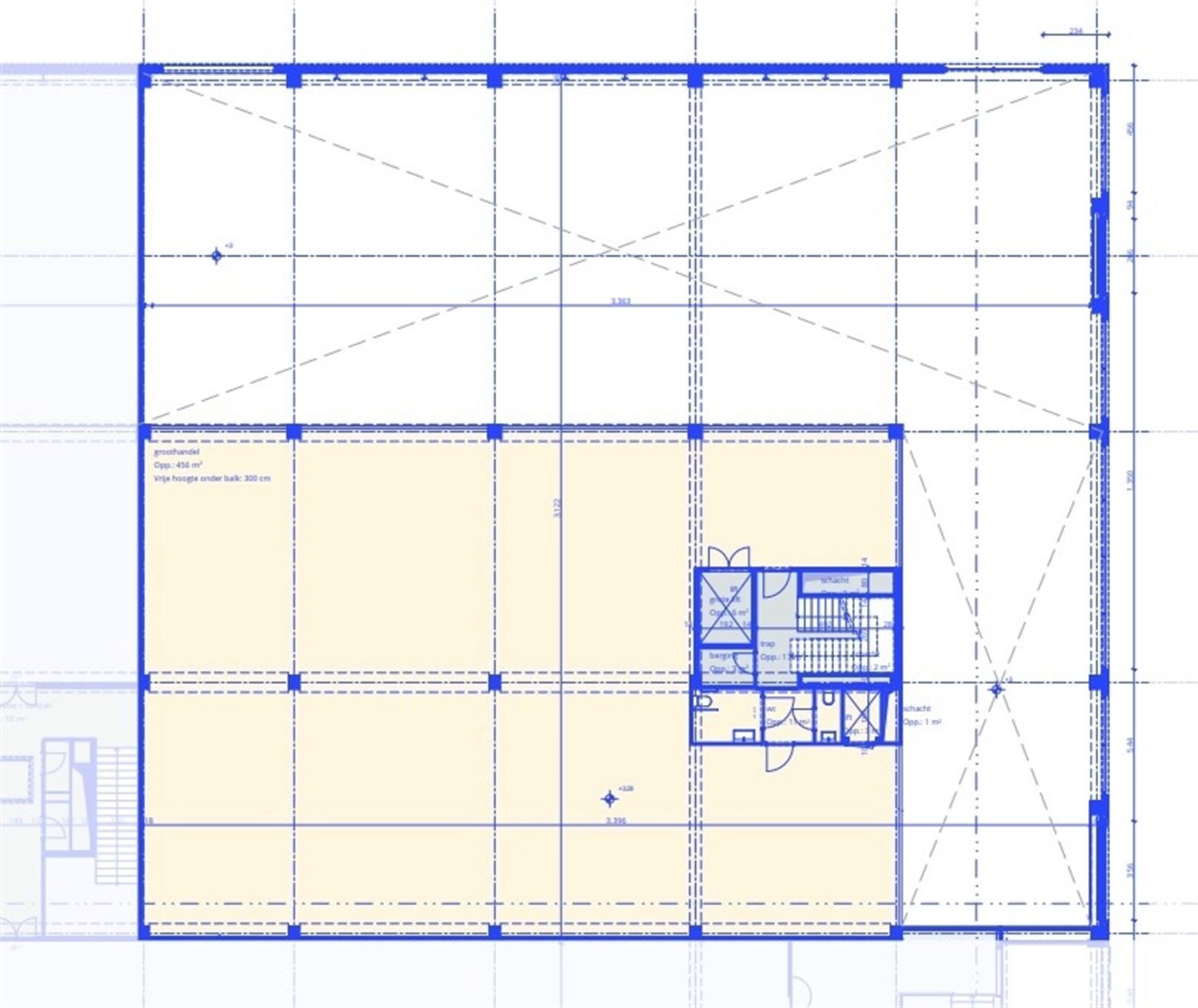
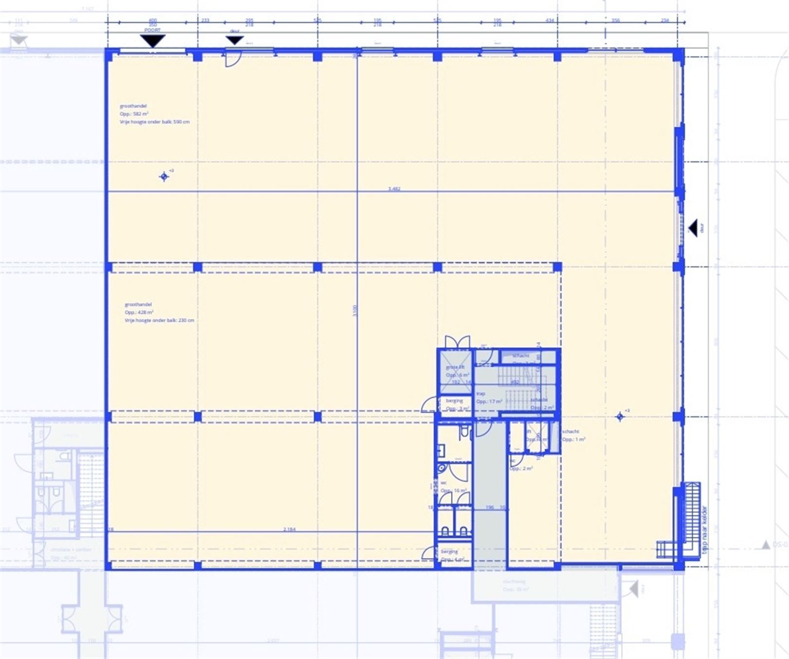
- Frontbreedte van 31 meter zorgt voor een sterke visuele aanwezigheid
- Vrije hoogte open gedeelte: 5,9 m
- Mezzanine: vrije hoogte onder mezzanine 2,3 m, boven mezzanine 3 m perfect voor kantoor of opslagruimte
- Veel natuurlijk licht dankzij grote raampartijen
- Ruime indeling met aanpasbare mezzanine, casco oplevering volgens green lease convenant
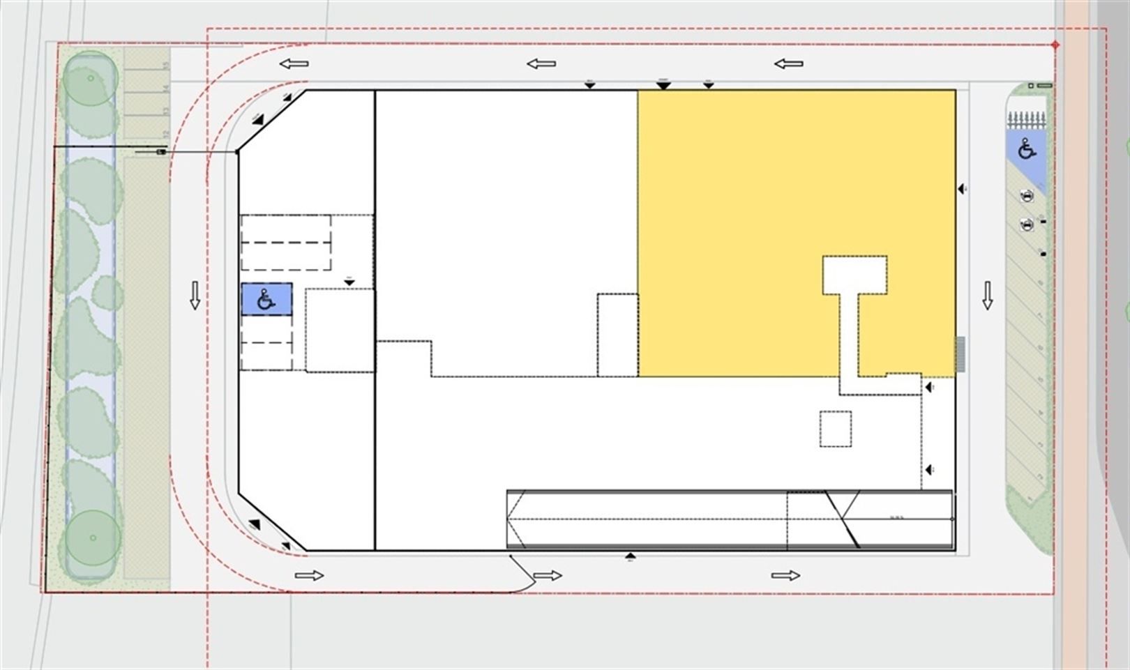
- 10 private parkeerplaatsen vooraan inbegrepen in de huurprijs
- Strategische ligging aan een drukke invalsweg met veel passage en uitstekende bereikbaarheid
Het pand wordt opgeleverd in casco staat en is onderworpen aan een green lease convenant, dat door de huurder dient te worden nageleefd. Er wordt een EPB-bouwattest opgemaakt; een EPC-attest volgt later (nog te bevestigen).
Huurvoorwaarden:
- Huurprijs exclusief 21% btw, onroerende voorheffing en kosten
- Gemeenschappelijke kosten (obv. 25% quotiteit): o.a. onroerende voorheffing, brandverzekering, groenonderhoud, onderhoud van de wegenis,
Neem contact op met Ceusters voor meer informatie of een bezichtiging.
Energie
- E-peil: E0
- Beglazing: Onbekend
Op de kaart

Financieel
| Prijs | |
|---|---|
| Maandelijkse kosten | € 0 |
| Kadastraal inkomen (niet geïndexeerd) | € 0 |
| Kadastraal inkomen (geïndexeerd) | € 0 |
Bijkomende info
Gebouw
| Bouwcertificaat | Nee |
|---|---|
| Bewoonbaar (m²) | 1509 |
| Verdieping | 0 |
| Badkamers | 0 |
| Slaapkamers | 0 |
| Verdiepingen | 0 |
| Garages | 0 |
| Parkeerplaatsen | 0 |
| Doucheruimtes | 0 |
| Toiletten | 0 |
Faciliteiten
| Elektrisch keuringsattest | Nee |
|---|
Perceel
| Overstromingsgevoelig | Geen |
|---|---|
| Voorkeurrecht | Ja |
| Bebouwde oppervlakte (m²) | 0 |
| Tuin oppervlakte (m²) | 0 |
| Oppervlakte terras (m²) | 0 |
Vergunning
| Vergunning | Geen beschikbaar |
|---|---|
| Verkavelingsvergunning | Geen beschikbaar |
Uitrusting
| Investeringspand | Nee |
|---|---|
| Geschikt voor praktijk | Nee |
| Parking | Nee |
| Garage | Nee |
| Thuiskantoor | Nee |
| Kelder | Nee |
| Zolder | Nee |
| Tuin | Nee |
| Terras | Nee |
| Lift | Nee |
| Rioolaansluiting | Nee |
| Gasaansluiting | Nee |
| Wateraansluiting | Nee |
| Elektriciteitsaansluiting | Nee |
| TV aansluiting | Nee |
| Internetaansluiting | Nee |
| Telefoonaansluiting | Nee |
Appartementsblok
| Naam residentie | NOORDERLAAN 81 ANTWERPEN |
|---|---|
| Lift | Nee |
Een pand van
CEUSTERS
CEUSTERS
Onze experts in property management en vastgoedadvies stellen een kwalitatieve dienstverlening voorop. Creatief en flexibel gaat ons team op zoek naar kansen en oplossingen voor elke klant. Telkens een stapje verder. Naast onze kantoren in Antwerpen, Gent, Brussel, Hasselt en Rotterdam (Nederland), opereert CEUSTERS vanuit zes andere vestigingen verspreid over heel België. In deze snel veranderende wereld staat ons sterk inzicht in de lokale markt garant voor continuïteit.
NOORDERLAAN 81 ANTWERPEN
Leer meer over vastgoed
05 November 2024
Bedrijfsvastgoed in transitie: ontdek de toekomst van werkplekken
16 October 2024
Opbrengsteigendom: een slim pad naar passief inkomen en vermogensgroei
09 September 2024
Tijdelijk vastgoed: flexibele oplossingen voor een dynamische markt
12 August 2024