Te Huur groothandelsrumte en 2 KMO units te Antwerpen
€ 1.550
Een pand van CEUSTERS
Jouw zoektocht
Overzicht
- 176 m² bewoonbaar
Beschrijving
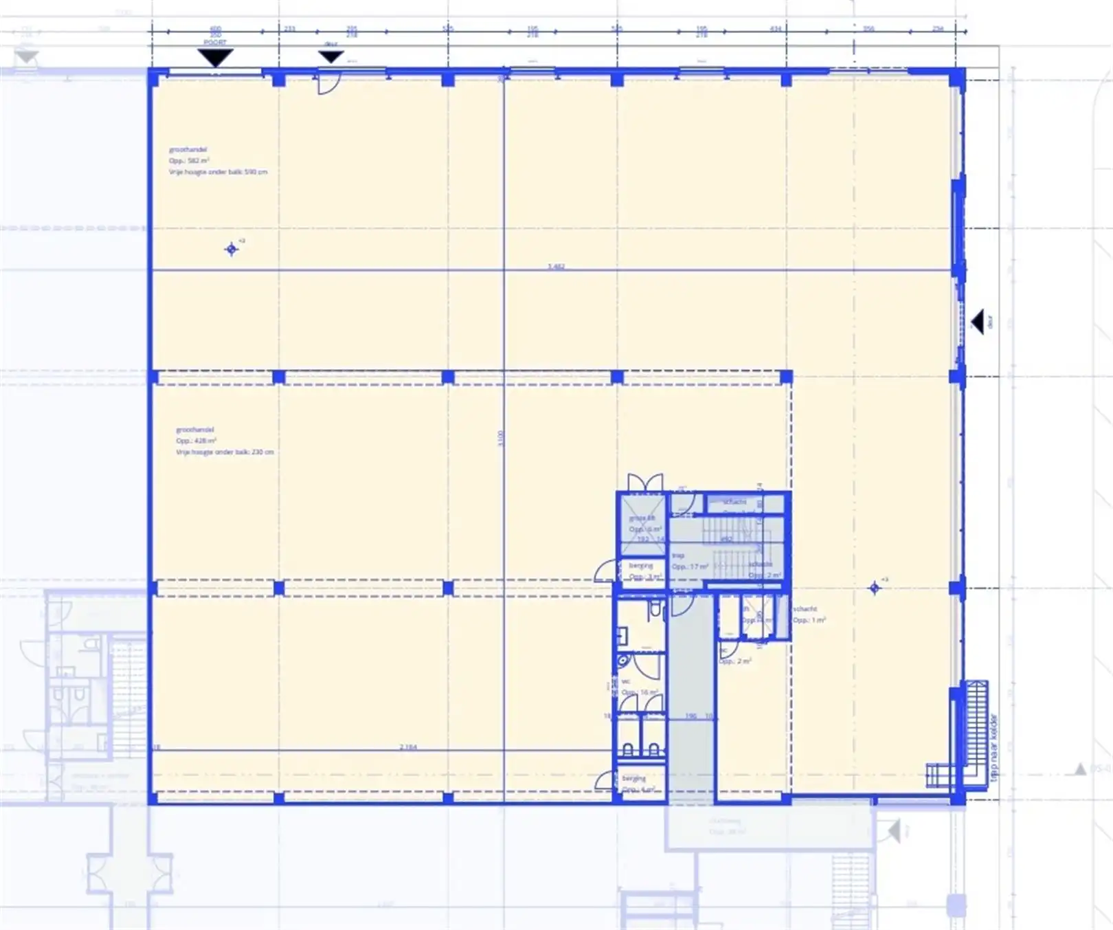
Te huur: Moderne commerciële toplocatie met uitstekende zichtbaarheid in Antwerpen
Ontdek deze uitzonderlijke commerciële site op de Noorderlaan in Antwerpen. Dit nieuwbouw pand combineert een strak, eigentijds ontwerp met een veelzijdige indeling, ideaal voor bedrijven die op zoek zijn naar een zichtbare en bereikbare locatie.
Belangrijkste troeven:
- Frontbreedte van 31 meter zorgt voor een sterke visuele aanwezigheid
- Vrije hoogte open gedeelte: 5,9 m
- Mezzanine: vrije hoogte onder mezzanine 2,3 m, boven mezzanine 3 m perfect voor kantoor of opslagruimte
- Veel natuurlijk licht dankzij grote raampartijen
- Ruime indeling met aanpasbare mezzanine, casco oplevering volgens green lease convenant
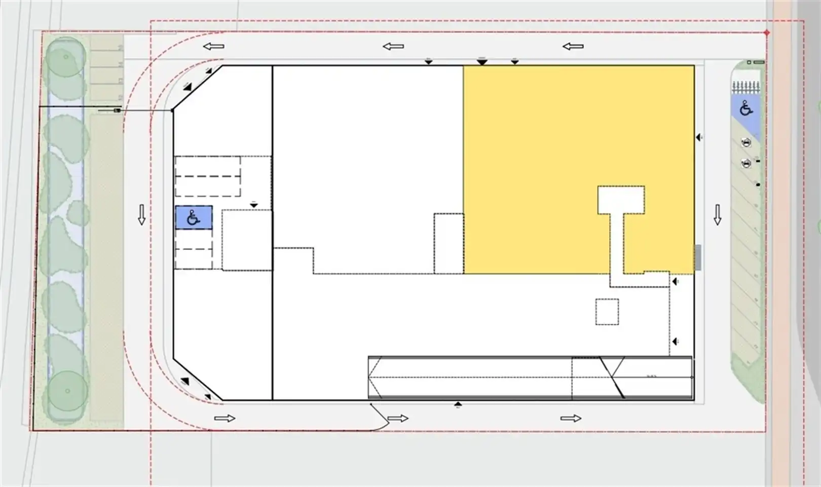
- 13 private parkeerplaatsen inbegrepen in de huurprijs
- Strategische ligging aan een drukke invalsweg met veel passage en uitstekende bereikbaarheid
Het pand wordt opgeleverd in casco staat en is onderworpen aan een green lease convenant, dat door de huurder dient te worden nageleefd. Er wordt een EPB-bouwattest opgemaakt; een EPC-attest volgt later (nog te bevestigen).
Bijkomend te huur: 2 KMO-units
Achter het hoofdgebouw zijn er twee afzonderlijke KMO-units beschikbaar, uitsluitend bestemd voor opslag (geen productie).
- Unit A: 176 m²
- Unit B: 263 m²
- Afwerking: voorzien van verlichting, stopcontacten en een sectionaalpoort
- Vrije hoogte: ca. 6 meter
Deze units bieden een praktische oplossing voor bedrijven die nood hebben aan extra opslagruimte in een goed bereikbare omgeving.
Huurvoorwaarden:
- Huurprijs exclusief 21% btw, onroerende voorheffing en kosten
- Gemeenschappelijke kosten (obv. 25% quotiteit): o.a. onroerende voorheffing, brandverzekering, groenonderhoud, onderhoud van de wegenis,
Neem contact op met Ceusters voor meer informatie.
Energie
- E-peil: E0
- Beglazing: Onbekend
Op de kaart

Financieel
| Prijs | |
|---|---|
| Maandelijkse kosten | € 0 |
| Kadastraal inkomen (niet geïndexeerd) | € 0 |
| Kadastraal inkomen (geïndexeerd) | € 0 |
Bijkomende info
Gebouw
| Bouwcertificaat | Nee |
|---|---|
| Bewoonbaar (m²) | 176 |
| Verdieping | 0 |
| Badkamers | 0 |
| Slaapkamers | 0 |
| Verdiepingen | 0 |
| Garages | 0 |
| Parkeerplaatsen | 0 |
| Doucheruimtes | 0 |
| Toiletten | 0 |
Faciliteiten
| Elektrisch keuringsattest | Nee |
|---|
Perceel
| Overstromingsgevoelig | Geen |
|---|---|
| Voorkeurrecht | Ja |
| Bebouwde oppervlakte (m²) | 0 |
| Tuin oppervlakte (m²) | 0 |
| Oppervlakte terras (m²) | 0 |
Vergunning
| Vergunning | Geen beschikbaar |
|---|---|
| Verkavelingsvergunning | Geen beschikbaar |
Uitrusting
| Investeringspand | Nee |
|---|---|
| Geschikt voor praktijk | Nee |
| Parking | Nee |
| Garage | Nee |
| Thuiskantoor | Nee |
| Kelder | Nee |
| Zolder | Nee |
| Tuin | Nee |
| Terras | Nee |
| Lift | Nee |
| Rioolaansluiting | Nee |
| Gasaansluiting | Nee |
| Wateraansluiting | Nee |
| Elektriciteitsaansluiting | Nee |
| TV aansluiting | Nee |
| Internetaansluiting | Nee |
| Telefoonaansluiting | Nee |
Appartementsblok
| Naam residentie | NOORDERLAAN 81 ANTWERPEN |
|---|---|
| Lift | Nee |