Kantoor 585m² met magazijn 1.680m² te huur in Kallo
Een pand van OREON PROPERTIES
Overzicht
- 1680 m² bewoonbaar
- 2265 m² grond
Beschrijving
Algemeen:
Nieuwbouw kantoorruimte met magazijn gelegen langs de Nieuwe weg 1, te Beveren – Kallo.
Het kantoor is gelegen op de 2e verdieping en heeft een oppervlakte van 585 m².
De kantoren bevinden zich op de 2e verdieping en zijn uitgerust met vloerverwarming, actieve ventilatie + luchtkoeling en LED – verlichting. De ruimte beschikt over privatieve sanitaire voorzieningen en een terras. De kantoren worden als landschapskantoor ingericht.
Daarnaast zijn er parkeerplaatsen beschikbaar waarbij een aantal plaatsen zijn uitgerust met laadpalen.
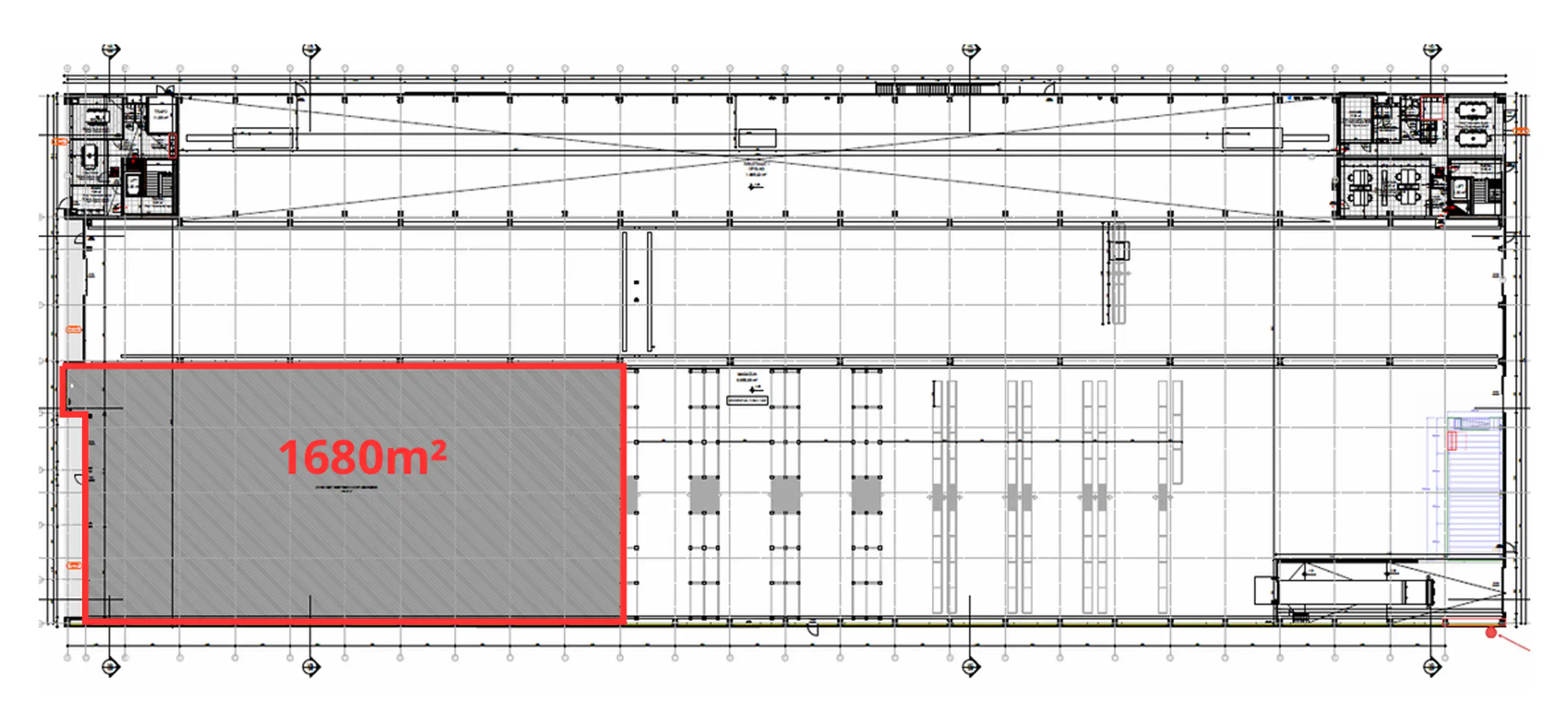
Het magazijn heeft een oppervlakte van 1.680 m² en een vrije hoogte van ca. 10 m. het is uitgerust met een sectionale poort en kan verwarmd worden via warmtepompen. Op die site zijn zonnepanelen geplaats waarbij de groene stroom wordt aangeboden aan 70% van het variabel gedeelde nettarief.
- Wordt afgescheiden van resterend deel
- Eigen sectionale poort + ingang
Dit pand heeft een uitstekende ligging langs de E34. De oprit van de E34 (Zelzate - Antwerpen – Nederland) ligt op 850 m van het pand, de E19 ligt op 10km rijden en de E17 ligt op 5km van het pand wat zorgt voor een zeer vlotte bereikbaarheid voor personeel en bezoeker.
Financieel:
Kantoor:
Huurprijs: € 160/m²/jaar
Huurprijs/maand: € 7.800/maand
Voorshot servicekosten kantoor (incl. OV): € 30/m²/jaar
Forfaitaire servicekosten: € 945,75/maand
Magazijn:
Huurprijs: € 65/m²/jaar
Huurprijs/maand: € 9.100/maand
Huurprijs autostaanplaats: € 600/plaats/jaar
OV: € 516,75/maa,d
Energie
Op de kaart

Financieel
| Prijs |
|---|
Bijkomende info
Gebouw
| Staat | Zo goed als nieuw |
|---|---|
| Bewoonbaar (m²) | 1680 |
| Gevels | 4 |
| Badkamers | 0 |
| Slaapkamers | 0 |
| Parkeerplaatsen | 0 |
Faciliteiten
| Type vloer |
|---|
Perceel
| Totale oppervlakte (m²) | 2265 |
|---|---|
| Tuin oppervlakte (m²) | 0 |
Vergunning
| Vergunning | Geen beschikbaar |
|---|---|
| Verkavelingsvergunning | Geen beschikbaar |
Uitrusting
| Parking | Ja |
|---|---|
| Garage | Nee |
| Tuin | Nee |
| Terras | Nee |