Kantoorruimte te huur
€ 6.975
Een pand van EPMC NV
Favoriet
Jouw zoektocht
Jouw scoretabel voor dit pand
Aan het laden...
Jouw geplande bezichtigingen
Aan het laden...
Overzicht
- 540 m² bewoonbaar
Beschrijving
Naar ontwerp van architect 'POLO.Architects' wordt een nieuw gebouw opgericht van ca 3.000 m², verdeeld over 3 verdiepingen. Het gebouw wordt vervaardigd door aannemer 'Van Laere', die hier zelf haar HQ zal vestigen bij de oplevering (geschat Q4 2022).
Gelegen in Zwijndrecht geniet dit pand van een uitstekende bereikbaarheid door de aanwezigheid van de E17, E34 en de Ring van Antwerpen.
Het gelijkvloers bevat een cafetaria en een polyvalente ruimte, vergaderruimtes en een ruim terras. Door de grote glaspartijen en de houten binnen afwerking geniet u van een warm, modern gebouw.
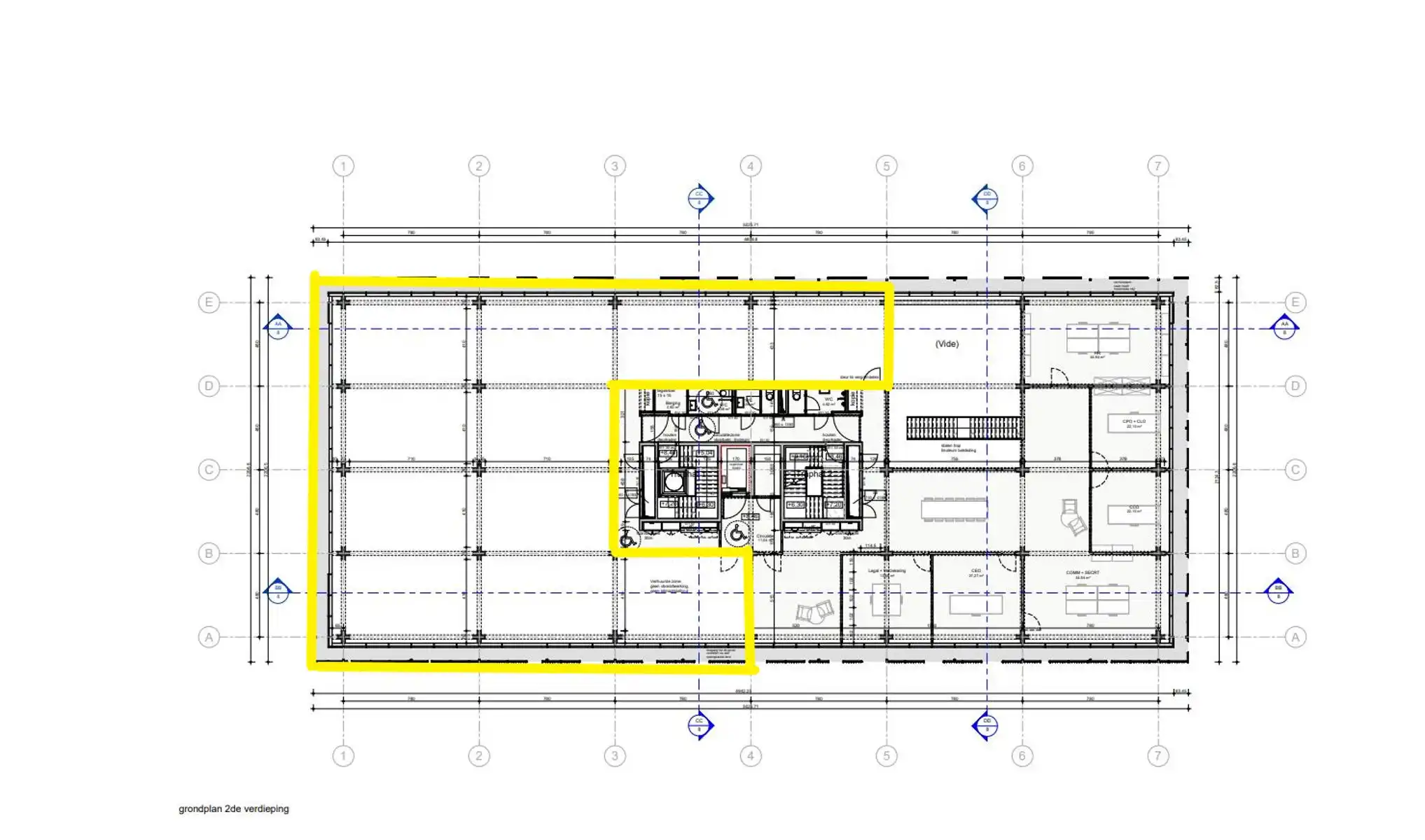
Op tweede verdieping bieden wij een kantoorruimte aan van ca. 540 m².
Verder is er een gunstige parkeerratio van 1/60.
Huurprijzen zijn exclusief BTW, onroerende voorheffing en algemene kosten ten laste van de huurder.
Gelegen in Zwijndrecht geniet dit pand van een uitstekende bereikbaarheid door de aanwezigheid van de E17, E34 en de Ring van Antwerpen.
Het gelijkvloers bevat een cafetaria en een polyvalente ruimte, vergaderruimtes en een ruim terras. Door de grote glaspartijen en de houten binnen afwerking geniet u van een warm, modern gebouw.
Op tweede verdieping bieden wij een kantoorruimte aan van ca. 540 m².
Verder is er een gunstige parkeerratio van 1/60.
Huurprijzen zijn exclusief BTW, onroerende voorheffing en algemene kosten ten laste van de huurder.
Energie
Op de kaart

Financieel
| Prijs |
|---|
Bijkomende info
Gebouw
| Staat | Nieuw |
|---|---|
| Bewoonbaar (m²) | 540 |
| Verdieping | 2 |
| Badkamers | 0 |
| Slaapkamers | 0 |
| Parkeerplaatsen | 0 |
Faciliteiten
| Type vloer |
|---|
Perceel
| Tuin oppervlakte (m²) | 0 |
|---|
Vergunning
| Vergunning | Geen beschikbaar |
|---|---|
| Verkavelingsvergunning | Geen beschikbaar |
Uitrusting
| Parking | Nee |
|---|---|
| Garage | Nee |
| Zolder | Nee |
| Tuin | Nee |
| Terras | Nee |
| Zonnepanelen | Ja |
Een pand van
EPMC NV
EPMC : Ondernemers in Vastgoed!
Welkom bij de Ondernemers in Vastgoed
EPMC is reeds 40 jaar toonaangevend expert in de verkoop en verhuur van bedrijfsmatig vastgoed op de Antwerpse markt.
Wij focussen op industriële, administratieve en commerciële panden.
Leer meer over vastgoed
04 January 2026
Zoek je een kantoor, een magazijn of… iets ertussenin? Bedrijfsvastgoed uitgelegd
05 November 2024
Bedrijfsvastgoed in transitie: ontdek de toekomst van werkplekken
16 October 2024
Opbrengsteigendom: een slim pad naar passief inkomen en vermogensgroei
09 September 2024