Gelijkvloers app.
€ 875 (+€ 15)
Een pand van Immo Vasta
Overzicht
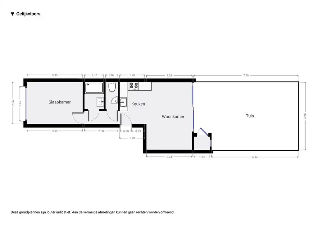
- 46 m² bewoonbaar
- 1 Slaapkamer(s)
- 1 Badkamer(s)
- 1 Toilet(ten)
- 1 Tuin
Beschrijving
Instapklaar, tot in de puntjes verzorgd en op een fijne Borgerhoutse locatie, dat is jouw nieuwe appartement in een notendop. Inpakken, verhuizen, uitpakken en genieten maar!
Van je nieuwe plekje, en van de stadstuin natuurlijk!
Je ziet het al meteen aan de verzorgde bakstenen gevel met nieuwe blauwgrijze pvc-ramen: dit pand werd met zorg vernieuwbouwd. Je komt binnen via de lichte, gemeenschappelijke hal, met z’n cementtegel met retromotief en de mooie afgeschuurde houten trap als eyecatchers.
Zon op je terras en in je tuin
Het gelijkvloers appartement heeft al meteen een binnenkomer van jewelste: de leefruimte met een schuifraam van muur tot muur, dat uitgeeft op de fijne stadstuin. Denk: een écht stuk gazon, een lichtgrijze terrastegel en witgekalkte muren die het licht mooi weerkaatsen. Vanuit je zithoek, of vanuit de open keuken kijk je hier zo op je stukje groen.
Bovendien is je tuintje zuidwest georiënteerd, dus je pakt hier lekker veel zon binnen. Je terras is ook voor een stukje overdekt; goed voor regenachtige dagen waarop je toch even buiten wilt.
Ook handig: de tuinberging, met aansluiting voor je wasmachine of plaats voor je grasmachine en ander tuingereedschap. De witte crepi achtergevel zorgt voor een ruimtegevoel.
De open keuken is volledig uitgerust met kwaliteitstoestellen en heeft een moderne look: greeploze witte kasten, stenen werkblad, onderhoudsvriendelijk inductievuur, dampkap, afwasmachine, combi-oven, koelkast en diepvriezer.
De prachtige tegelparket verbindt alle ruimtes naadloos met mekaar: van de woonkamer en de keuken achteraan, tot de gang en de fijne slaapkamer vooraan. In het midden van het appartement heb je een apart toilet met lavabo en afzuigsysteem, en een gloednieuwe badkamer op een mooie marmertegel, met een ruime inloopdouche met regenkop, lavabo met spiegelkast en een grote handdoekendroger. Nog een bonus: de vele stopcontacten die overal werden voorzien!
Residentiële Borgerhoutse wijk
Je woont hier in een rustige wijk in Borgerhout, op enkele straten van de Singel en de Plantin en Moretuslei, met allerlei supermarkten, buurtwinkeltjes en zelfs een apotheek op wandelafstand. Ook de velo-stations zijn hier nooit veraf en uitgaan in de buurt kan op het Moorkensplein.
Energie
![]() |
- EPC Certificaat: 20200913-0002312404-RES-1
- Energieverbruik: 175 kWh/m²/jaar
- E-peil: E0
- Verwarming: Gas
- Beglazing: Standaard dubbel
Zelfcheck
Op de kaart

Financieel
| Prijs | |
|---|---|
| Maandelijkse kosten | € 15 |
| Kadastraal inkomen (niet geïndexeerd) | € 0 |
| Kadastraal inkomen (geïndexeerd) | € 0 |
Bijkomende info
Gebouw
| Staat | Goed onderhouden |
|---|---|
| Bouwcertificaat | Nee |
| Bewoonbaar (m²) | 46 |
| Verdieping | 0 |
| Badkamers | 1 |
| Slaapkamers | 1 |
| Verdiepingen | 2 |
| Garages | 0 |
| Parkeerplaatsen | 0 |
| Doucheruimtes | 0 |
| Toiletten | 1 |
Faciliteiten
| Keuken uitrusting | Luxueus uitgerust |
|---|---|
| Materiaal ramenomlijstingen | PVC |
| Beglazing | Standaard dubbel |
| Brandstof primaire verwarming | Gas |
| Elektrisch keuringsattest | Ja |
Perceel
| Overstromingsgevoelig | Geen |
|---|---|
| P-score | A |
| G-score | A |
| Voorkeurrecht | Nee |
| Bebouwde oppervlakte (m²) | 0 |
| Tuin oppervlakte (m²) | 35 |
| Oppervlakte terras (m²) | 0 |
Uitrusting
| Investeringspand | Nee |
|---|---|
| Geschikt voor praktijk | Nee |
| Parking | Nee |
| Garage | Nee |
| Thuiskantoor | Nee |
| Kelder | Nee |
| Zolder | Nee |
| Tuin | Ja |
| Terras | Ja |
| Lift | Nee |
| Rioolaansluiting | Nee |
| Gasaansluiting | Nee |
| Wateraansluiting | Nee |
| Elektriciteitsaansluiting | Nee |
| TV aansluiting | Nee |
| Internetaansluiting | Nee |
| Telefoonaansluiting | Nee |
Appartementsblok
| Aantal verdiepingen | 2 |
|---|---|
| Lift | Nee |
