KANTOREN MET UITSTEKENDE ZICHTBAARHEID
Een pand van CEUSTERS
Overzicht
- 750 m² bewoonbaar
Beschrijving
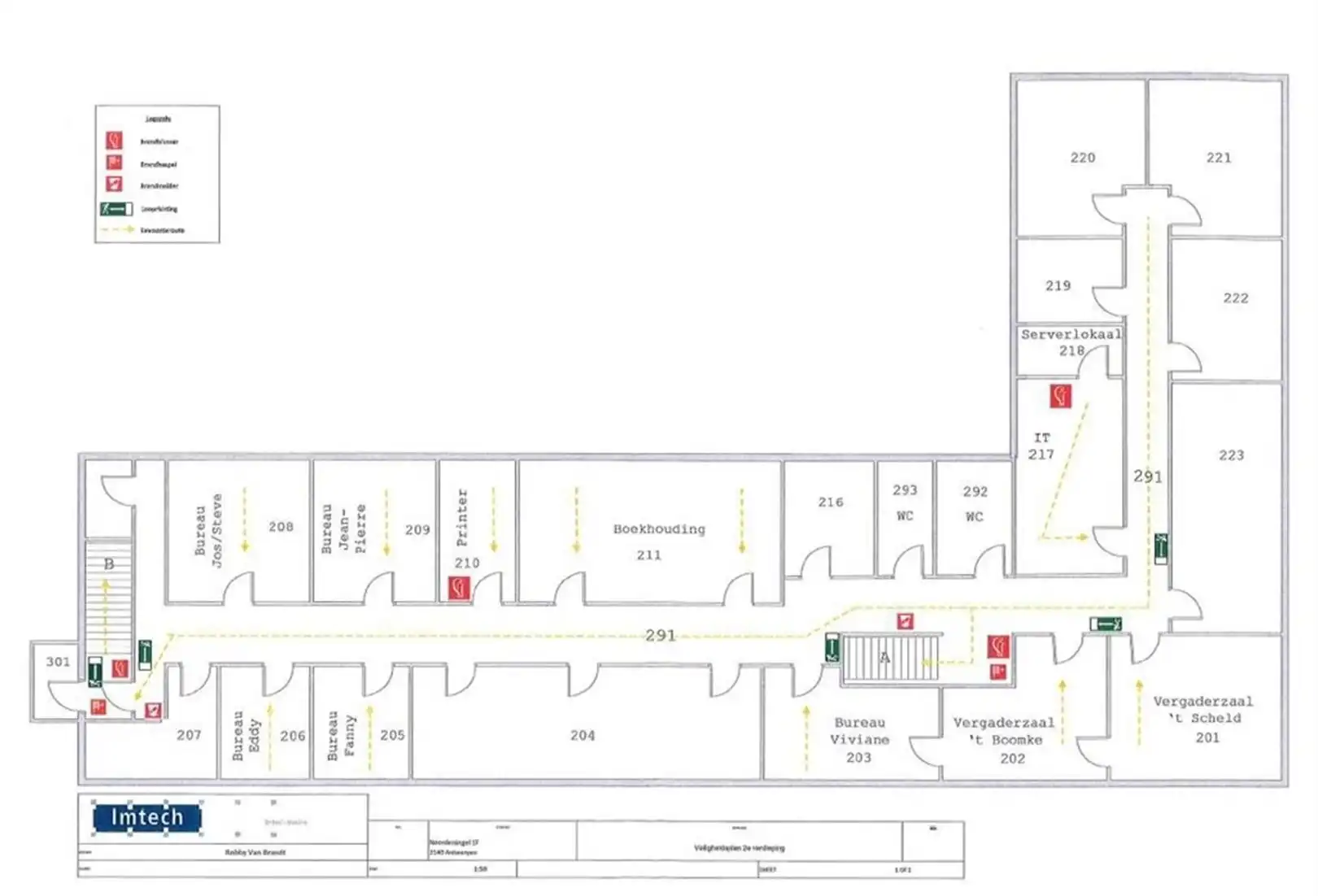
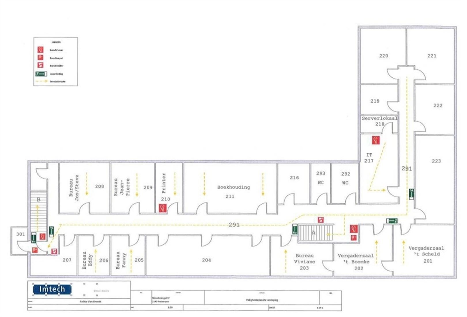
Dit gebouw beschikt over +/- 1780 m² kantoorruimte, verdeeld over het gelijkvloers en twee verdiepingen ( elk plateau +/- 594 m²) .
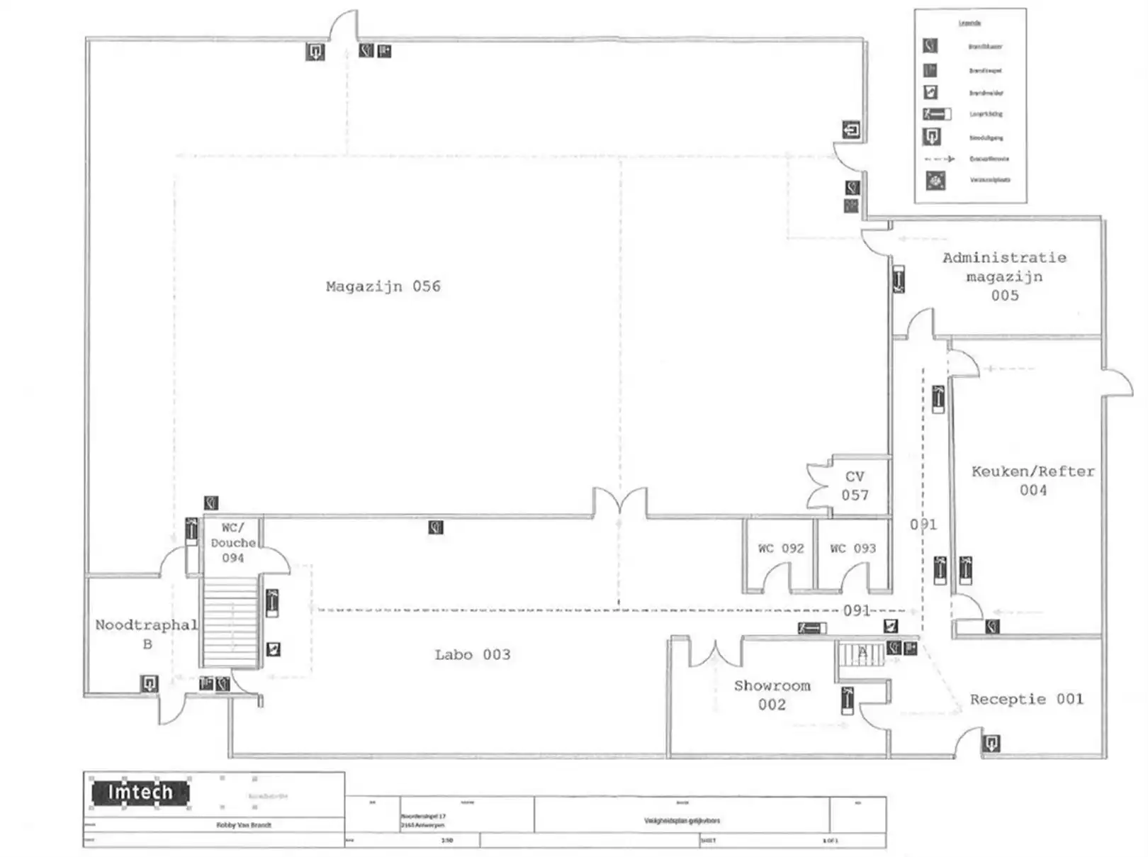
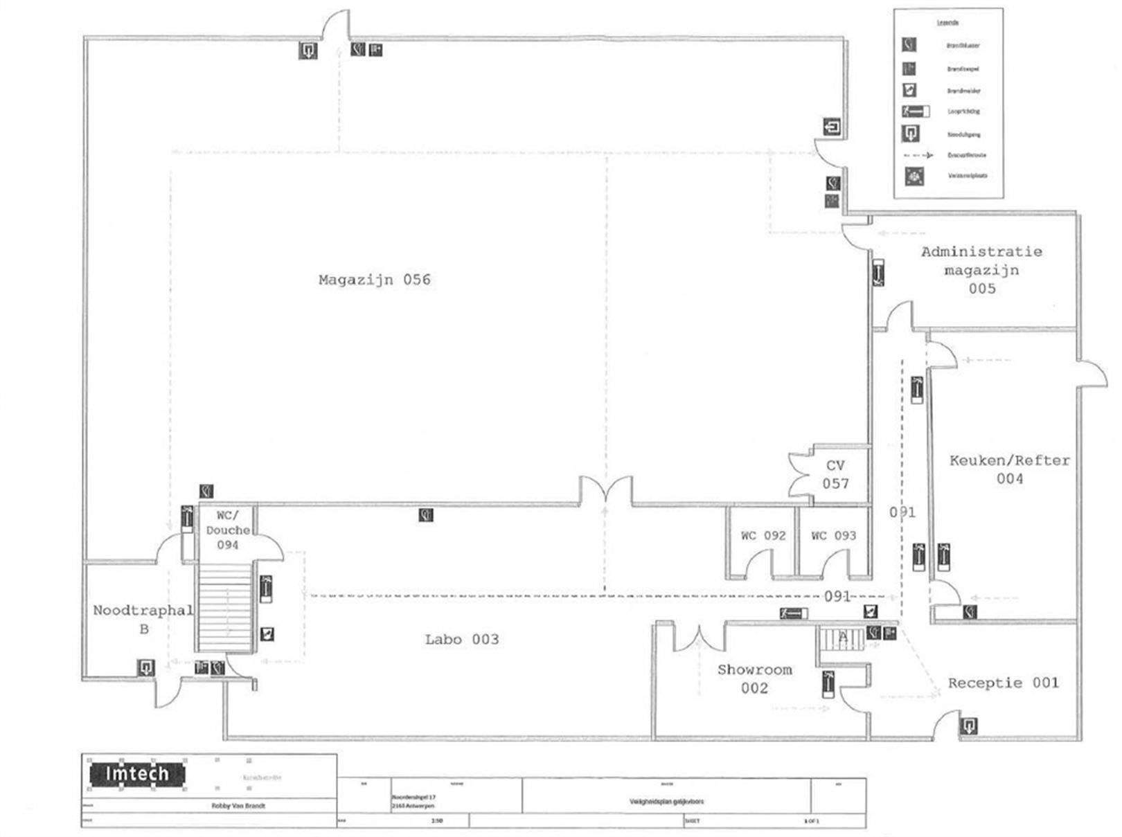
Daarnaast bestaat het gebouw uit een beschikbare magazijnruimte van 751 m² + polyvalente atelierruimte/archiefruimte van 400 m².
Het magazijn + polyvalent atelier kan afzonderlijk gehuurd worden. Verschillende combinaties magazijn en kantoren/showroom zijn mogelijk.
Het gebouw voorziet in alle hedendaagse technische faciliteiten :
- Magazijn : lichtstraten, 1 gelijkvloerse poort (4 x 4,5 m), vrije hoogte 5,5 m, draagkracht polybetonvloer 3T/m².
- Kantoren: AC, vals plafond, databekabeling, zonnewering, sociale ruimtes, keuken, vergaderzaal, ...
De constructie van het kantoorgebouw vooraan betreft er één in cellenbeton. De constructie van het magazijn betreft er één in staal structuur.
Ruime parking aanwezig: grotendeels verhard in asfalt, deels in grint. Vlotte toegang en ruime manoeuvreer mogelijkheden voor vrachtwagens.
-Plannen (PDF) op aanvraag
-EPC : niet van toepassing
-Keuring elektrische installatie: niet van toepassing
Energie
- E-peil: E0
- Beglazing: Onbekend
Op de kaart

Financieel
| Maandelijkse kosten | € 0 | 
|---|---|
| Kadastraal inkomen (niet geïndexeerd) | € 0 | 
| Kadastraal inkomen (geïndexeerd) | € 0 | 
Bijkomende info
Gebouw
| Bouwcertificaat | Nee | 
|---|---|
| Bewoonbaar (m²) | 750 | 
| Verdieping | 0 | 
| Badkamers | 0 | 
| Slaapkamers | 0 | 
| Verdiepingen | 0 | 
| Garages | 0 | 
| Parkeerplaatsen | 0 | 
| Doucheruimtes | 0 | 
| Toiletten | 0 | 
Faciliteiten
| Elektrisch keuringsattest | Nee | 
|---|
Perceel
| Overstromingsgevoelig | Geen | 
|---|---|
| Voorkeurrecht | Nee | 
| Bebouwde oppervlakte (m²) | 0 | 
| Tuin oppervlakte (m²) | 0 | 
| Oppervlakte terras (m²) | 0 | 
Uitrusting
| Investeringspand | Nee | 
|---|---|
| Geschikt voor praktijk | Nee | 
| Parking | Nee | 
| Garage | Nee | 
| Thuiskantoor | Nee | 
| Kelder | Nee | 
| Zolder | Nee | 
| Tuin | Nee | 
| Terras | Nee | 
| Lift | Nee | 
| Rioolaansluiting | Nee | 
| Gasaansluiting | Nee | 
| Wateraansluiting | Nee | 
| Elektriciteitsaansluiting | Nee | 
| TV aansluiting | Nee | 
| Internetaansluiting | Nee | 
| Telefoonaansluiting | Nee | 
Appartementsblok
| Lift | Nee | 
|---|