Magazijn 1020m² met kantoor te huur
Een pand van OREON PROPERTIES
Jouw zoektocht
Overzicht
- 1020 m² bewoonbaar
Beschrijving
Magazijn + kantoor te huur op het industriepark van Heist-op-den-Berg
Gelegen op een strategische locatie binnen het industriepark van Heist-op-den-Berg, bieden wij u een veelzijdige bedrijfsunit aan die zowel opslag- als kantoorruimte combineert.
Magazijnruimte
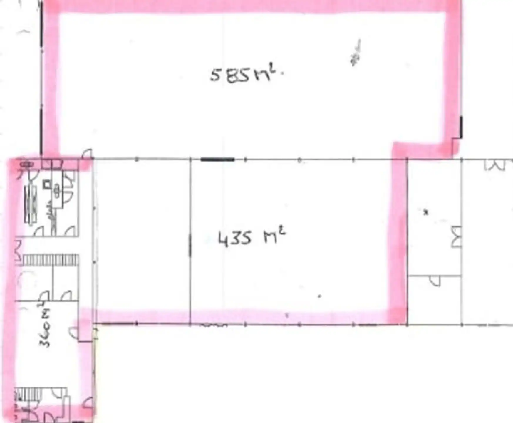
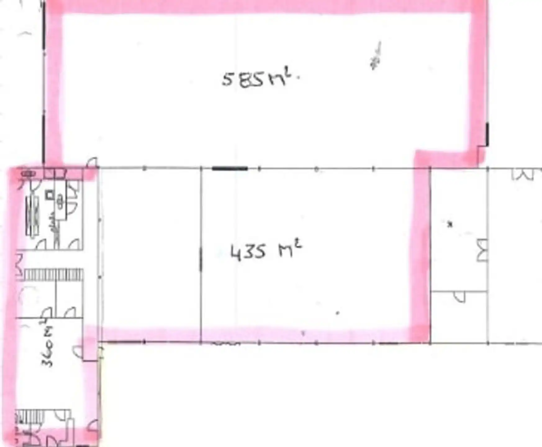
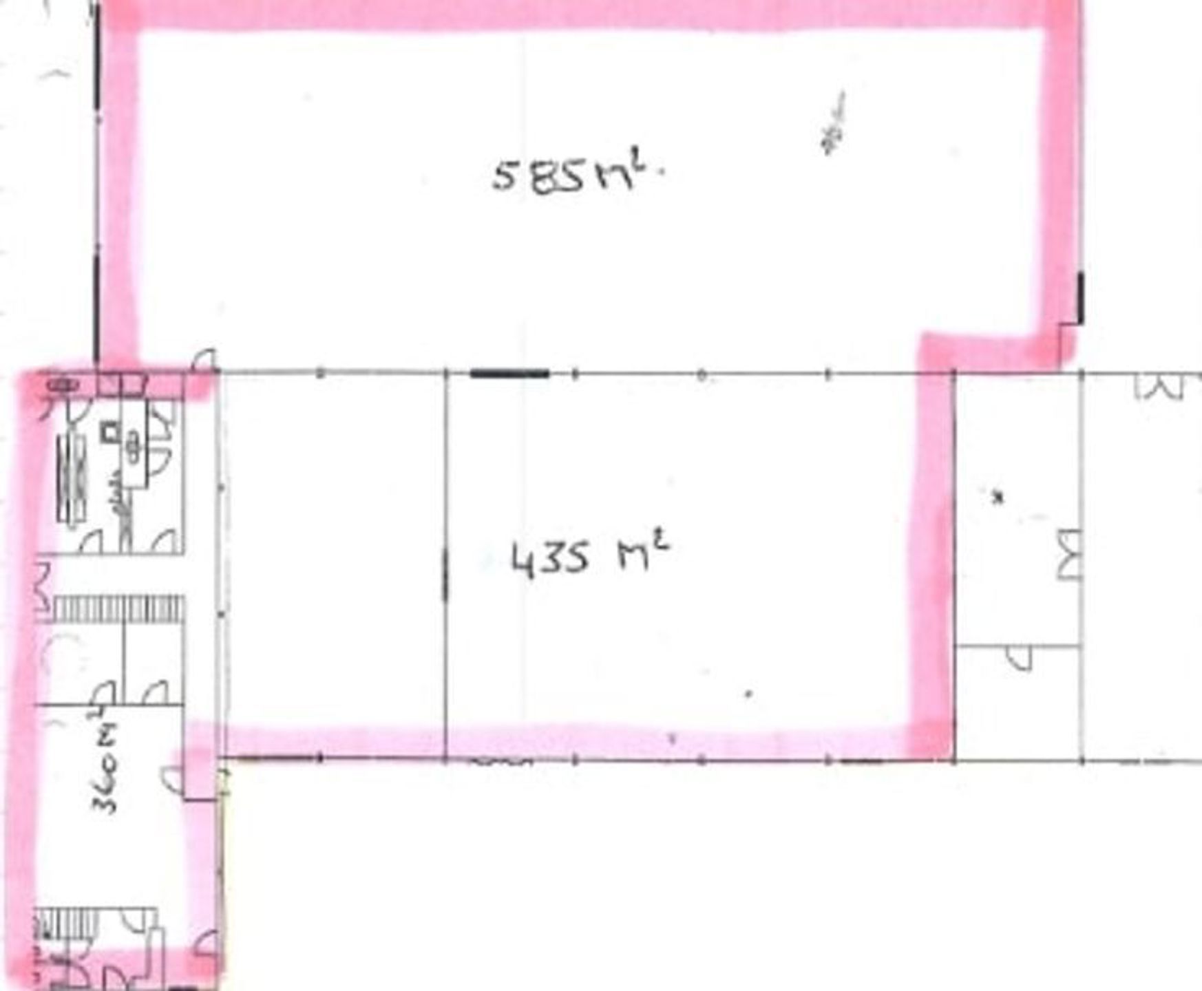
Totale oppervlakte van 1.020 m², met de mogelijkheid tot uitbreiding tot 1.240 m²
2 ruime sectionaalpoorten, ideaal voor vlotte logistiek en toegankelijkheid
Geschikt voor opslag, productie of distributie
Ruimte-invulling bespreekbaar volgens uw noden
Kantoorruimte
Bestaande kantooroppervlakte van 180 m², uitbreidbaar tot 360 m²
Sanitair en een kitchenette zijn reeds voorzien
In te richten naar eigen stijl en gebruik, met potentieel voor ontvangstruimtes, burelen of vergaderruimtes
Extra troeven
Elektriciteitsvoorziening op basis van verbruik (doorrekening)
Aanpasbaar op maat: indeling, afwerking of technische voorzieningen kunnen afgestemd worden op uw specifieke bedrijfsbehoeften
Strategische ligging binnen een bedrijvige zone met goede bereikbaarheid
Beschikbaar vanaf 1 april 2025.
Interesse in aanpassingen op maat? Alles is bespreekbaar in overleg met de eigenaar!
Energie
Op de kaart

Financieel
| Prijs |
|---|
Bijkomende info
Gebouw
| Bewoonbaar (m²) | 1020 |
|---|---|
| Badkamers | 0 |
| Slaapkamers | 0 |
| Parkeerplaatsen | 0 |
Faciliteiten
| Type vloer |
|---|
Perceel
| Tuin oppervlakte (m²) | 0 |
|---|
Vergunning
| Vergunning | Geen beschikbaar |
|---|---|
| Verkavelingsvergunning | Geen beschikbaar |
Uitrusting
| Parking | Nee |
|---|---|
| Garage | Nee |
| Tuin | Nee |
| Terras | Nee |