Moderne KMO-unit te huur in Massenhoven
€ 3.500
Een pand van EPMC NV
Favoriet
Jouw zoektocht
Jouw scoretabel voor dit pand
Aan het laden...
Jouw geplande bezichtigingen
Aan het laden...
Overzicht
- 558 m² bewoonbaar
- 558 m² grond
Beschrijving
Het eigendom is gelegen te Zandhoven (Massenhoven), vlakbij de op- en afrit van de E313 en E34. De site geniet van een vlotte ontsluiting richting Antwerpen, De Kempen, Limburg en Nederland.
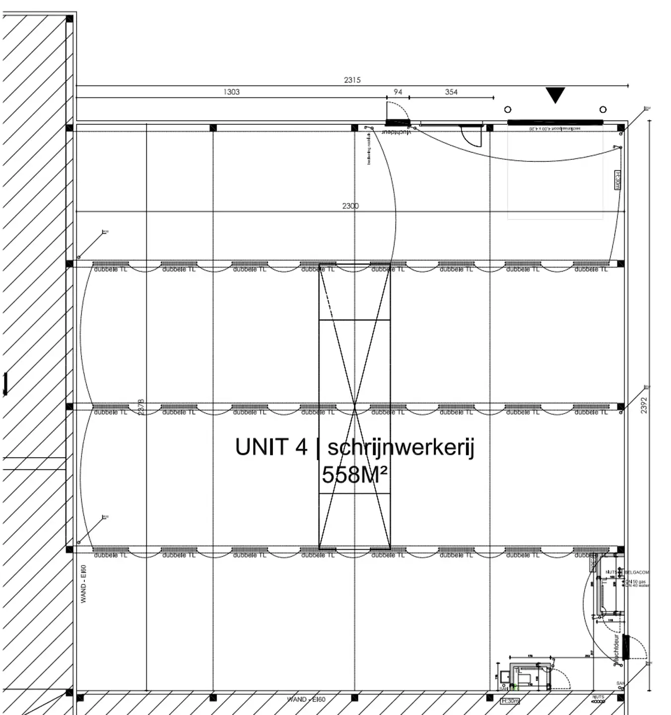
Unit 4 in dit KMO-project beslaat een totale oppervlakte van ca. 558 m² opslagruimte/werkplaats, met een vrije hoogte van ca. 6 meter. Het pand is uitgerust met een rolbrug (hefvermogen 2,5T), persluchtleidingen, afzuiginstallatie en verzwaarde elektriciteit (hoogspanningscabine). Voorts is de unit voorzijn van ledverlichting, een alarmsysteem, rookluiken, brandhaspels en brandblussers.
Op heden is er tevens een kantoorunit aanwezig, met sanitair, een handenwasser en een bureelruimte.
Toegang wordt verleend door middel van een gelijkvloerse sectionaalpoort en twee deuren.
Het pand is tevens voorzien van 6 parkeerplaatsen. Het is mogelijk om 4 bijkomende parkeerplaatsen te huren.
Huurprijs exclusief btw, Onroerende Voorheffing en algemene onkosten ten laste van de huurder.
Gelieve ons te contacteren voor verdere informatie of om een bezoek ter plaatse in te plannen.
Unit 4 in dit KMO-project beslaat een totale oppervlakte van ca. 558 m² opslagruimte/werkplaats, met een vrije hoogte van ca. 6 meter. Het pand is uitgerust met een rolbrug (hefvermogen 2,5T), persluchtleidingen, afzuiginstallatie en verzwaarde elektriciteit (hoogspanningscabine). Voorts is de unit voorzijn van ledverlichting, een alarmsysteem, rookluiken, brandhaspels en brandblussers.
Op heden is er tevens een kantoorunit aanwezig, met sanitair, een handenwasser en een bureelruimte.
Toegang wordt verleend door middel van een gelijkvloerse sectionaalpoort en twee deuren.
Het pand is tevens voorzien van 6 parkeerplaatsen. Het is mogelijk om 4 bijkomende parkeerplaatsen te huren.
Huurprijs exclusief btw, Onroerende Voorheffing en algemene onkosten ten laste van de huurder.
Gelieve ons te contacteren voor verdere informatie of om een bezoek ter plaatse in te plannen.
Het eigendom is gelegen te Zandhoven (Massenhoven), vlakbij de op- en afrit van de E313 en E34. De site geniet van een vlotte ontsluiting richting Antwerpen, De Kempen, Limburg en Nederland.
Unit 4 in dit KMO-project beslaat een totale oppervlakte van ca. 558 m² opslagruimte/werkplaats, met een vrije hoogte van ca. 6 meter. Het pand is uitgerust met een rolbrug (hefvermogen 2,5T), persluchtleidingen, afzuiginstallatie en verzwaarde elektriciteit (hoogspanningscabine). Voorts is de unit voorzijn van ledverlichting, een alarmsysteem, rookluiken, brandhaspels en brandblussers.
Op heden is er tevens een kantoorunit aanwezig, met sanitair, een handenwasser en een bureelruimte.
Toegang wordt verleend door middel van een gelijkvloerse sectionaalpoort en twee deuren.
Het pand is tevens voorzien van 6 parkeerplaatsen. Het is mogelijk om 4 bijkomende parkeerplaatsen te huren.
Huurprijs exclusief btw, Onroerende Voorheffing en algemene onkosten ten laste van de huurder.
Gelieve ons te contacteren voor verdere informatie of om een bezoek ter plaatse in te plannen.
Dit pand wordt tevens te koop aangeboden.
Unit 4 in dit KMO-project beslaat een totale oppervlakte van ca. 558 m² opslagruimte/werkplaats, met een vrije hoogte van ca. 6 meter. Het pand is uitgerust met een rolbrug (hefvermogen 2,5T), persluchtleidingen, afzuiginstallatie en verzwaarde elektriciteit (hoogspanningscabine). Voorts is de unit voorzijn van ledverlichting, een alarmsysteem, rookluiken, brandhaspels en brandblussers.
Op heden is er tevens een kantoorunit aanwezig, met sanitair, een handenwasser en een bureelruimte.
Toegang wordt verleend door middel van een gelijkvloerse sectionaalpoort en twee deuren.
Het pand is tevens voorzien van 6 parkeerplaatsen. Het is mogelijk om 4 bijkomende parkeerplaatsen te huren.
Huurprijs exclusief btw, Onroerende Voorheffing en algemene onkosten ten laste van de huurder.
Gelieve ons te contacteren voor verdere informatie of om een bezoek ter plaatse in te plannen.
Dit pand wordt tevens te koop aangeboden.
Energie
Op de kaart

Financieel
| Prijs |
|---|
Bijkomende info
Gebouw
| Bouwjaar | 2012 |
|---|---|
| Staat | Goed onderhouden |
| Bewoonbaar (m²) | 558 |
| Badkamers | 0 |
| Slaapkamers | 0 |
| Parkeerplaatsen | 6 |
Faciliteiten
| Type vloer | Beton |
|---|
Perceel
| Totale oppervlakte (m²) | 558 |
|---|---|
| Tuin oppervlakte (m²) | 0 |
Vergunning
| Vergunning | Geen beschikbaar |
|---|---|
| Verkavelingsvergunning | Geen beschikbaar |
Uitrusting
| Parking | Nee |
|---|---|
| Garage | Nee |
| Tuin | Nee |
| Terras | Nee |
| Gasaansluiting | Ja |
| Wateraansluiting | Ja |
| Elektriciteitsaansluiting | Ja |
| Telefoonaansluiting | Ja |
| Alarm | Ja |
Een pand van
EPMC NV
EPMC : Ondernemers in Vastgoed!
Welkom bij de Ondernemers in Vastgoed
EPMC is reeds 40 jaar toonaangevend expert in de verkoop en verhuur van bedrijfsmatig vastgoed op de Antwerpse markt.
Wij focussen op industriële, administratieve en commerciële panden.
7344598
Leer meer over vastgoed
04 January 2026
Zoek je een kantoor, een magazijn of… iets ertussenin? Bedrijfsvastgoed uitgelegd
05 November 2024
Bedrijfsvastgoed in transitie: ontdek de toekomst van werkplekken
16 October 2024
Opbrengsteigendom: een slim pad naar passief inkomen en vermogensgroei
09 September 2024