Modern commercieel gelijkvloers op toplocatie in Turnhout
Een pand van Delestré Immobiliën
Favoriet
Jouw zoektocht
Jouw scoretabel voor dit pand
Aan het laden...
Jouw geplande bezichtigingen
Aan het laden...
Overzicht
Beschrijving
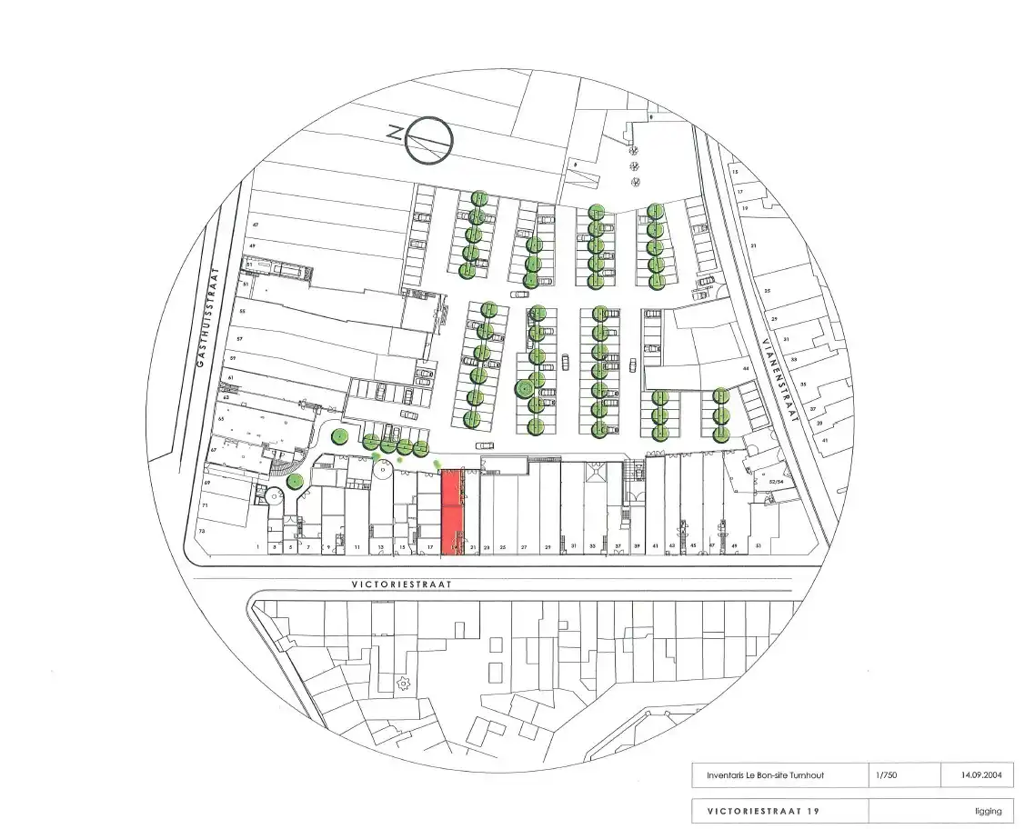
Dit aantrekkelijk commercieel gelijkvloers is gelegen op de bruisende Le Bon-site in Turnhout, vlak bij de winkelstraat Gasthuisstraat en met directe toegang tot een ruime publieke parking van ca. 200 wagens.
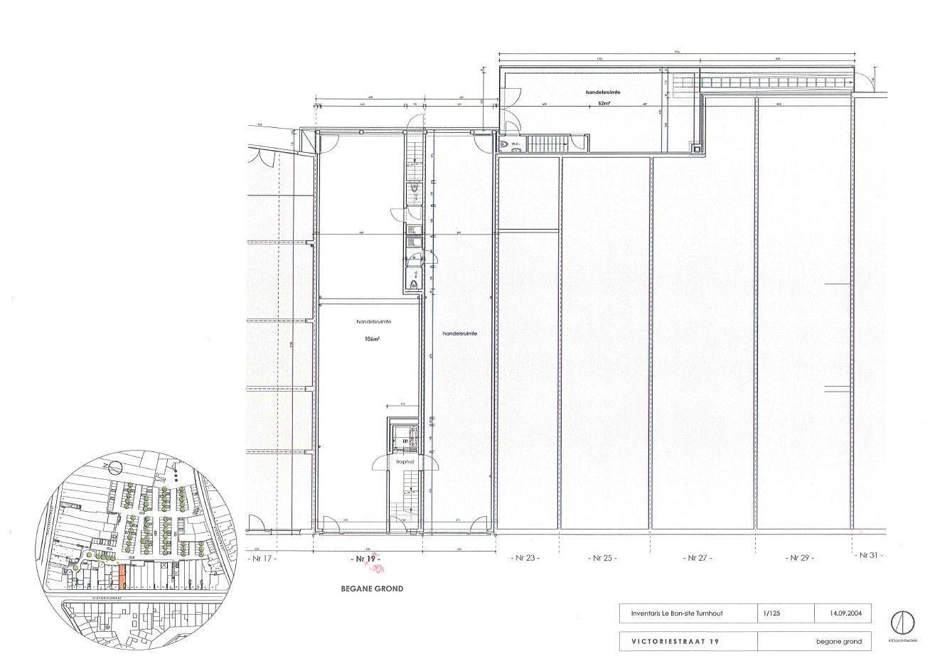
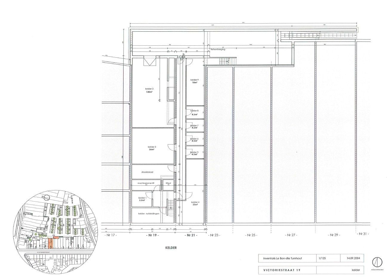
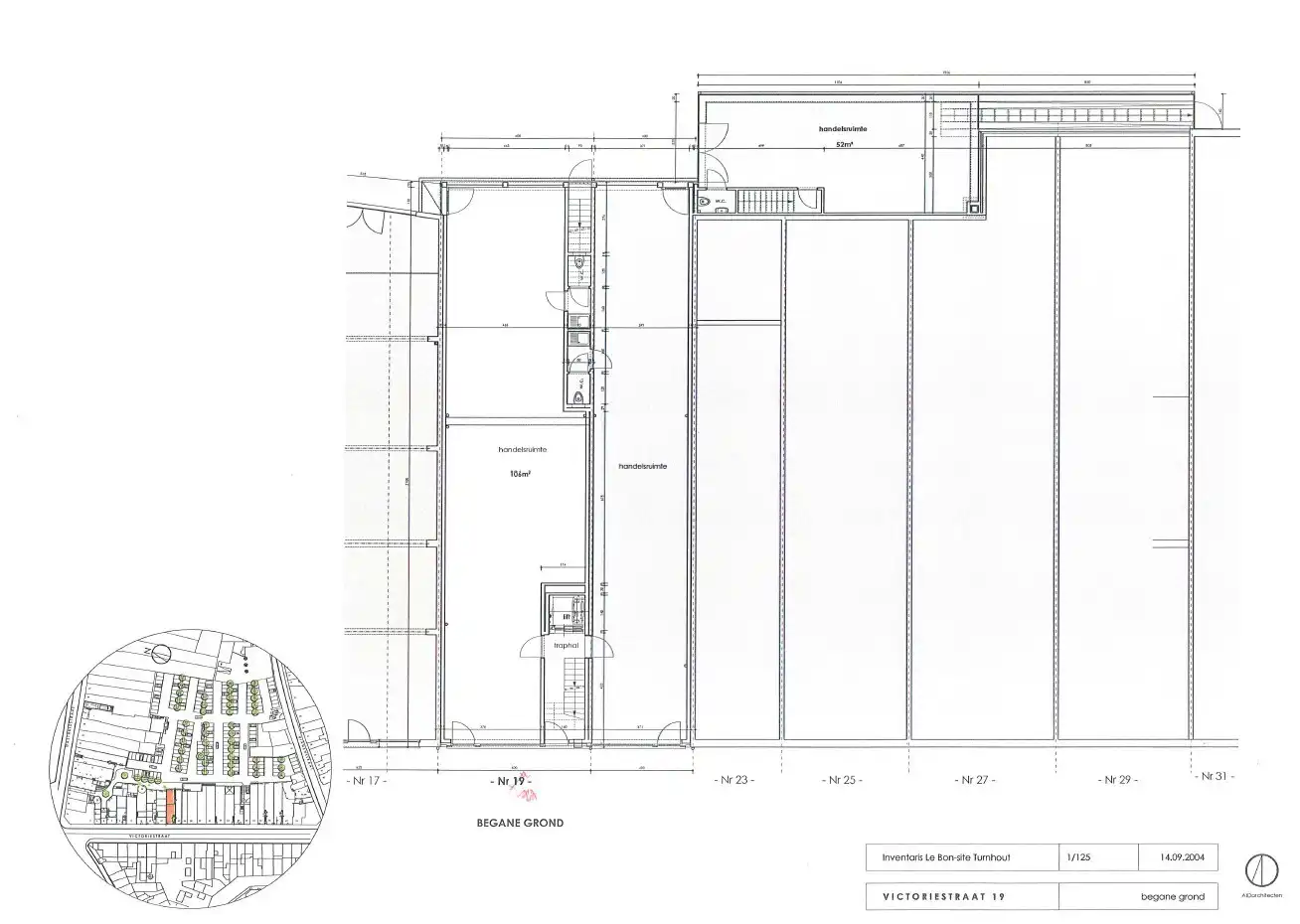
Het pand is toegankelijk via zowel de Victoriestraat als via parking Le Bon. De gevel aan de parkingszijde bestaat volledig uit glas, wat zorgt voor uitstekende zichtbaarheid en een aangename inval van natuurlijk licht. Op de Le Bon-site zijn reeds diverse succesvolle handelszaken gevestigd, waaronder o.a. Atelier Co-pains, Vrolijk, Vita. conceptstore, Studio Ellis, T.O.V.V.V., Candy Factory, Eternelle, Pique-nique, Momkey en Gastrobar Gaston. Verder beschikt het pand over een kelder.
De handelsruimtes Victoriestraat 19 en 21 zijn met elkaar verbonden via een doorgang van ca. 2 meter en kunnen samengevoegd worden tot één grotere ruimte. Dit maakt het geheel bijzonder geschikt voor dienstverlenende activiteiten, zoals een interim- of kantoorfunctie.
Huurprijs: € 1.350/maand. Onroerende voorheffing ten laste van de huurder.
Beschikbaarheid: onmiddellijk
Het pand is toegankelijk via zowel de Victoriestraat als via parking Le Bon. De gevel aan de parkingszijde bestaat volledig uit glas, wat zorgt voor uitstekende zichtbaarheid en een aangename inval van natuurlijk licht. Op de Le Bon-site zijn reeds diverse succesvolle handelszaken gevestigd, waaronder o.a. Atelier Co-pains, Vrolijk, Vita. conceptstore, Studio Ellis, T.O.V.V.V., Candy Factory, Eternelle, Pique-nique, Momkey en Gastrobar Gaston. Verder beschikt het pand over een kelder.
De handelsruimtes Victoriestraat 19 en 21 zijn met elkaar verbonden via een doorgang van ca. 2 meter en kunnen samengevoegd worden tot één grotere ruimte. Dit maakt het geheel bijzonder geschikt voor dienstverlenende activiteiten, zoals een interim- of kantoorfunctie.
Huurprijs: € 1.350/maand. Onroerende voorheffing ten laste van de huurder.
Beschikbaarheid: onmiddellijk
Energie
![]() |
- E-peil: E0
- Beglazing: Standaard dubbel
Op de kaart

Financieel
| Prijs | |
|---|---|
| Maandelijkse kosten | € 0 |
Bijkomende info
Gebouw
| Badkamers | 0 |
|---|---|
| Slaapkamers | 0 |
| Verdiepingen | 0 |
| Garages | 0 |
| Parkeerplaatsen | 0 |
| Toiletten | 0 |
Faciliteiten
| Beglazing | Standaard dubbel |
|---|---|
| Septische tank | Nee |
Perceel
| Bebouwde oppervlakte (m²) | 0 |
|---|
Vergunning
| Verkavelingsvergunning | Geen beschikbaar |
|---|
Uitrusting
| Investeringspand | Nee |
|---|---|
| Parking | Nee |
| Garage | Nee |
| Lift | Nee |
| Rioolaansluiting | Nee |
| Gasaansluiting | Ja |
| Wateraansluiting | Ja |
| Elektriciteitsaansluiting | Ja |
| Internetaansluiting | Ja |
| Telefoonaansluiting | Nee |
| Zonnepanelen | Nee |
| Zonneboiler | Nee |
| Alarm | Nee |
| Videofoon | Nee |
| Grondwaterput | Nee |
Appartementsblok
| Lift | Nee |
|---|---|
| Intercom | Nee |
Een pand van
Delestré Immobiliën
Vastgoedkantoor Delestré Immo
Delestré Immobiliën is een vastgoedkantoor met vestigingen te Ninove en Aalst en is al meer dan 30 jaar actief op de vastgoedmarkt en dit over heel België wat de verkoop en de verhuur van zowel commercieel als residentieel vastgoed betreft.
Van marktconforme waardebepaling tot actieve opvolging, al het nodige wordt gedaan voor een vlotte verkoop of verhuur van uw eigendom tegen de beste prijs.
Steeds grondig, degelijk en met kennis van zaken.
Onze jarenlange ervaring garandeert een succesvolle afloop van elk vastgoedverhaal.
Wilt u uw commercieel, residentieel vastgoed of nieuwbouw verkopen of verhuren?
Of bent u op zoek naar een nieuwe woonst of een nieuwe vestiging voor uw onderneming?
Neem dan vandaag vrijblijvend contact op.
Wij beantwoorden al uw vragen met plezier!
Ontdek ons op deze portaalsite maar ook op http://www.immodelestre.be of https://www.facebook.com/delestreimmo/
T: +32 (0)54 33 62 52 of e-mail: info@immodelestre.be
THGasthuisstraat19Turnhout
Leer meer over vastgoed
04 January 2026
Zoek je een kantoor, een magazijn of… iets ertussenin? Bedrijfsvastgoed uitgelegd
05 November 2024
Bedrijfsvastgoed in transitie: ontdek de toekomst van werkplekken
16 October 2024
Opbrengsteigendom: een slim pad naar passief inkomen en vermogensgroei
09 September 2024
