Gerenoveerd bedrijfsgebouw
Een pand van CEUSTERS
Overzicht
- 786 m² bewoonbaar
Beschrijving
Volledig gerenoveerd bedrijfsgebouw gelegen te Turnhout (IZ Everdongen). De site is volgens het vigerende gewestplan gelegen in Industriegebied |Milieubelastende Industrie (donkerpaars). De site is vlot bereikbaar via de E34 Antwerpen - Eindhoven.
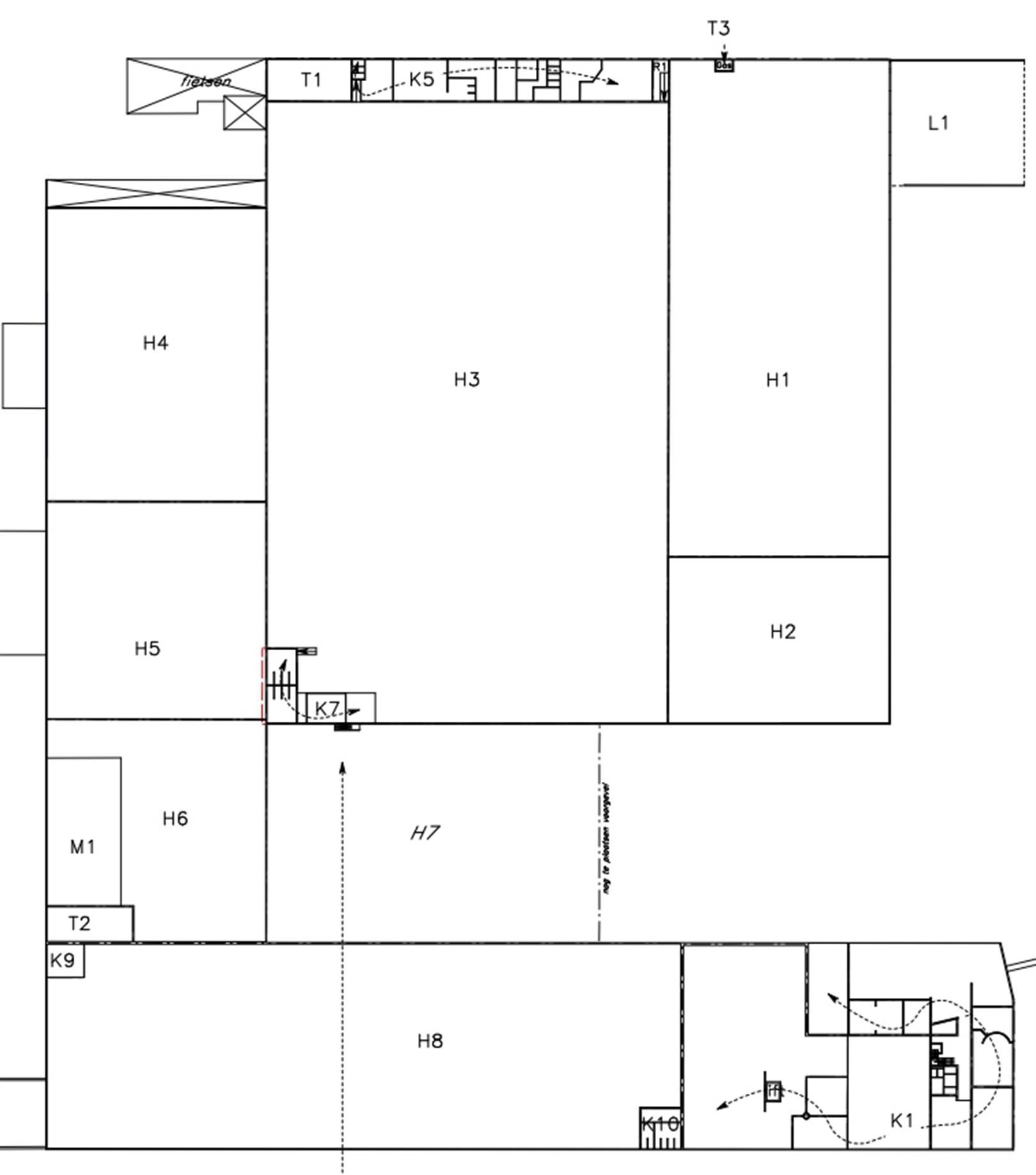
Magazijn:
- vrije hoogte: 3.5-6m
- verwarming
- lichtstraat
- elektrische secionaalpoorten
- LED verlichting
- transfo 1.200 KVA
- grote luifel
Kantoor:
- airco
- LED verlichting
- uitgeruste keuken
- ruime parking
- laadpalen
- fietsenstalling
Technische specificaties en afwerking:
- Veel natuurlijk licht + moderne industriële look
- Behoud atrium + unieke sfeer om in te werken
- Unieke ligging vlak naast autostrade
- Mogelijkheid tot huren van grote tot kleine oppervlaktes
- Koel- en klimaatplafonds
- Zonnepanelen + hybride warmtepomp
- Gebouwbeheersysteem + Toegangscontrolesysteem
- Brand- en inbraakdetectie
- Laadpalen voor elektrische wagens
- Volledige ledverlichting
- Goedkopere groene energie via de zonnepanelen
Bijkomende kosten i.f.v. verhuur:
- Onroerende voorheffing: op aanvraag
- Eigen verbruik nutsvoorzieningen: gas, water, elektriciteit, data,...
- Plannen (PDF) op aanvraag
Energie
- E-peil: E0
- Beglazing: Onbekend
Op de kaart

Financieel
| Maandelijkse kosten | € 0 |
|---|---|
| Kadastraal inkomen (niet geïndexeerd) | € 0 |
| Kadastraal inkomen (geïndexeerd) | € 0 |
Bijkomende info
Gebouw
| Bouwcertificaat | Nee |
|---|---|
| Bewoonbaar (m²) | 786 |
| Verdieping | 0 |
| Badkamers | 0 |
| Slaapkamers | 0 |
| Verdiepingen | 0 |
| Garages | 0 |
| Parkeerplaatsen | 0 |
| Doucheruimtes | 0 |
| Toiletten | 0 |
Faciliteiten
| Elektrisch keuringsattest | Nee |
|---|
Perceel
| Overstromingsgevoelig | Geen |
|---|---|
| Voorkeurrecht | Nee |
| Bebouwde oppervlakte (m²) | 0 |
| Tuin oppervlakte (m²) | 0 |
| Oppervlakte terras (m²) | 0 |
Uitrusting
| Investeringspand | Nee |
|---|---|
| Geschikt voor praktijk | Nee |
| Parking | Nee |
| Garage | Nee |
| Thuiskantoor | Nee |
| Kelder | Nee |
| Zolder | Nee |
| Tuin | Nee |
| Terras | Nee |
| Lift | Nee |
| Rioolaansluiting | Nee |
| Gasaansluiting | Nee |
| Wateraansluiting | Nee |
| Elektriciteitsaansluiting | Nee |
| TV aansluiting | Nee |
| Internetaansluiting | Nee |
| Telefoonaansluiting | Nee |
Appartementsblok
| Naam residentie | EVERDONGENLAAN 23 |
|---|---|
| Lift | Nee |
Een pand van
CEUSTERS
CEUSTERS
Onze experts in property management en vastgoedadvies stellen een kwalitatieve dienstverlening voorop. Creatief en flexibel gaat ons team op zoek naar kansen en oplossingen voor elke klant. Telkens een stapje verder. Naast onze kantoren in Antwerpen, Gent, Brussel, Hasselt en Rotterdam (Nederland), opereert CEUSTERS vanuit zes andere vestigingen verspreid over heel België. In deze snel veranderende wereld staat ons sterk inzicht in de lokale markt garant voor continuïteit.
EVERDONGENLAAN 23 TURNHOUT
Leer meer over vastgoed
05 November 2024
Bedrijfsvastgoed in transitie: ontdek de toekomst van werkplekken
16 October 2024
Opbrengsteigendom: een slim pad naar passief inkomen en vermogensgroei
09 September 2024
Tijdelijk vastgoed: flexibele oplossingen voor een dynamische markt
12 August 2024